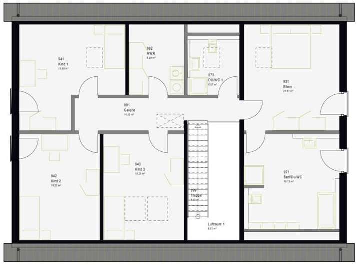
Unser FamilyStyle bietet auf einer Nettogrundfläche von 264 m² viel Raum für unterschiedlichste Wohnideen - vom Mehrgenerationenwohnen bis zur vermieteten Einliegerwohnung als Finanzierungshilfe. Möglich macht dies die Aufteilung des Hauses in eine komplette, separate Wohnung im Erdgeschoss - und das eineinhalbgeschossige Wohnen der Bauherrenfamilie, das das Erdgeschoss ausschließlich dem Lebensmittelpunkt im offen angelegten Wohn-, Ess- und Küchenbereich vorbehält. Im Obergeschoss gestatten 127 m² großzügiges Wohnen in drei Kinderzimmern samt eigenem Kinderbad sowie im Elternzimmer mit direkt angegliederter Wellness-Oase.
Platz für eine große Familie und mit großzügiger Einliegerwohnung!
56379 Winden
Die vollständige Adresse der Immobilie erhalten Sie vom Anbieter.
Auf Karte anzeigen
Die vollständige Adresse der Immobilie erhalten Sie vom Anbieter.
Finanzierungszertifikat
In nur zwei Minuten zu Ihrem persönlichen Finanzierungszertifkat.
Infos
| Etagenzahl | 2 |
|---|---|
| Wohnfläche ca. | 250 m2 |
| Grundstücksfläche | 660 m2 |
| Zimmer | 8 |
| Schlafzimmer | 6 |
| Badezimmer | 3 |
Kosten
| Kaufpreis |
499.000 € |
|---|
Finanzierungsrechner:
Kaufpreis:
600.000 €
Eigenkapital:
600.000 €
Monatliche Rate
0 €
Effektiver Jahreszins
0 %
Sollzinsbindung
10 Jahre
Bausubstanz & Energieausweis
| Baujahr | unbekannt |
|---|---|
| Bauphase | Haus in Planung (projektiert) |
| Qualität der Austattung | Gehoben |
| Heizungsart | Wärmepumpe |
Beschreibung des Objekts
Ausstattung
Ausstattung und im Preis enthalten:
- Ausbauhaus mit Klima-Plus-Wand
- massa Freiraum = Wohnraumhöhe 2,75 m serienmäßig
- KfW Effizienzhaus 55 mit hochwertigen 3-fach-verglasten Wärmeschutzfenster
- inklusive Architekten- und Ingenieurleistungen (Genehmigungsplanung, Bauantrag,
Statik, Wärmebedarfsberechnungen usw.)
- massa Bodenplatte
Ein Keller ist gegen Aufpreis möglich!
- Bodengutachten für die Untersuchung des Baugrundes
- Luft-Wasser-Wärmepumpe (deutscher Markenhersteller)
- Fußbodenheizung
- Photovoltaikanlage mit Stromspeicher optional
- Kontrollierte Be- und Entlüftungsanlage für perfektes Wohlfühlklima inkl.
Wärmerückgewinnung
- umfangreiche Elektroausstattung inkl. Installation
- Sanitär-Rohinstallation für alle Bäder und Küche
- Alu-Rollläden für alle Fenster und moderne Haustüre zur Auswahl
- Dachrinne und Fallrohre aus Zink
- 15 Monate Festpreisgarantie
- Bezahlung des Hauses erst nach Baufortschritt (Abnahme der Leistungen)
Der genannte Preis versteht sich zuzüglich Bemusterungspaket (komplette Innenausstattung wie z.B. Fliesen, Türen, Sanitärobjekte, Bodenbeläge, usw.), Lohnkosten für den Trocken- und Innenausbau, Baunebenkosten (Erdarbeiten, Hausanschluss, Baustelleneinrichtung usw.), Außenanlage, Grunderwerbsteuer und Notarkosten.
Das abgebildete Haus kann aufpreispflichtige Sonderbauteile enthalten.
Lage
Winden ist eine malerische Gemeinde in Deutschland, umgeben von einer reizvollen Landschaft. Die Lage bietet eine ruhige Wohnatmosphäre, ideal für Familien und Naturliebhaber. Die Infrastruktur ist gut entwickelt, mit Einkaufsmöglichkeiten, Schulen und Ärzten in der Nähe. Die Verkehrsanbindung ist günstig, da Winden über eine Anbindung an die Autobahn verfügt, was eine schnelle Erreichbarkeit benachbarter Städte ermöglicht. Zudem sind öffentliche Verkehrsmittel, wie Busse und Bahnen, gut ausgebaut, was die Mobilität der Bewohner erhöht. Die Kombination aus ländlichem Charme und guter Erreichbarkeit macht Winden zu einem attraktiven Wohnort
Sonstige Angaben
Wir leben Tag für Tag unsere Begeisterung, Menschen auf ihrem individuellen Weg ins Eigenheim zu unterstützen - und das erfolgreich seit 1978. Als "Ausbauhaus-Pionier" verfügt massa haus über ein großes Bau-Know-how und über eine moderne Produktion mit nachhaltiger Qualität - und das zu einem außergewöhnlichen Preis-Leistungs-Verhältnis unserer Häuser.
Preis und Leistung müssen stimmen, das ist uns wichtig. Wir verbinden unseren hohen Qualitätsanspruch aber auch mit ökologischer und sozialer Verantwortung. Nachhaltigkeit ist für uns kein Trend, sondern langfristige Unternehmensphilosophie. Deshalb wissen wir, woher das Holz kommt, das wir verbauen, achten auf die Beschaffenheit unserer Baumaterialien, legen großen Wert auf komfortables und gesundes Wohnen und möchten einen Beitrag zu mehr Klimaschutz und Energieeffizienz leisten.
Tatsächlich können wir mit unseren Hauskonzepten viel für Umwelt und Gesellschaft tun. Die innovativen Häuser von massa haus schonen nicht nur Ressourcen und treiben mit zukunftsorientierten Technologien die Energiewende im Eigenheimsektor voran, sondern bringen über unser Ausbausystem auch möglichst viele Familien in die eigenen vier Wände. Und ein Eigenheim ist bekanntlich die beste Altersvorsorge.
Grundriss
EG
>
>
DG
>
>
Adresse
56379 Winden
Interessante Orte
Preis- und Lageinformationen
Preistrend für Bestandsimmobilien in Winden