Diese gepflegte Doppelhaushälfte aus dem Jahr 1937 überzeugt durch ihre solide Bauweise, den durchdachten Grundriss und eine umfassende Modernisierung im Jahr 2009. Auf ca. 110 m² Wohnfläche, verteilt auf zwei Etagen, bietet sie ein komfortables Zuhause für Paare oder kleine Familien. Das Grundstück mit einer Größe von ca. 539 m² bietet zudem viel Platz im Außenbereich.
Im Erdgeschoss befindet sich ein großzügiger Wohn- und Essbereich, der viel Tageslicht bietet und genügend Raum für individuelle Einrichtungsideen lässt. Die vorhandene Einbauküche ist funktional gestaltet und Bestandteil des Angebots. Das Badezimmer wurde 2009 vollständig renoviert und präsentiert sich in zeitgemäßem Zustand.
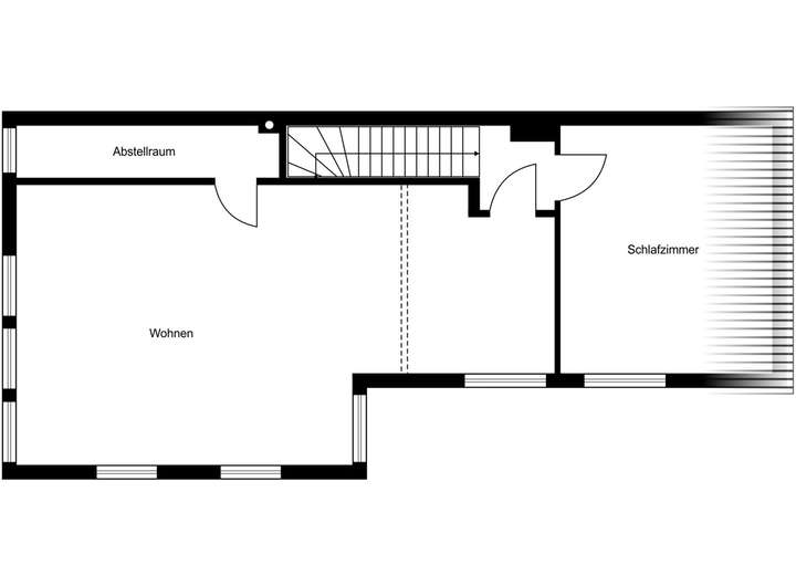
Das ausgebaute Dachgeschoss bietet zusätzlichen Wohnraum und kann flexibel genutzt werden – ob als Schlafzimmer, Büro oder Hobbybereich. Im Zuge der Modernisierung im Jahr 2009 wurden neben dem Dachgeschossausbau auch die Elektrik erneuert sowie eine Gasheizung installiert. Die Kunststofffenster mit Doppelverglasung befinden sich ebenfalls in gutem Zustand. Die Bodenbeläge aus Laminat und Fliesen unterstreichen den gepflegten Gesamteindruck.
Ein ca. 8 m² großer Kellerraum bietet praktischen Stauraum. Im Außenbereich lädt eine ca. 20 m² große Terrasse mit nordwestlicher Ausrichtung zu entspannten Stunden ein. Der Garten verfügt über ein Gartenhaus und bietet vielfältige Nutzungsmöglichkeiten. Für Fahrzeuge stehen ein Carport sowie ein Außenstellplatz zur Verfügung.
Diese Immobilie kombiniert den Charme eines älteren Hauses mit den Vorteilen moderner Ausstattung – und ist sofort bezugsfertig.
Modernisierte Doppelhaushälfte mit Garten und Carport
26160 Bad Zwischenahn
Die vollständige Adresse der Immobilie erhalten Sie vom Anbieter.
Auf Karte anzeigen
Die vollständige Adresse der Immobilie erhalten Sie vom Anbieter.
Finanzierungszertifikat
In nur zwei Minuten zu Ihrem persönlichen Finanzierungszertifkat.
Infos
| Haustyp | Doppelhaushaelfte |
|---|---|
| Etagenzahl | 2 |
| Wohnfläche ca. | 109 m2 |
| Grundstücksfläche | 539 m2 |
| Bezugsfrei ab | nach Rücksprache |
| Zimmer | 4 |
| Badezimmer | 1 |
| Garage/Stellplatz | Carport |
| Anzahl Garage/Stellplatz | 1 |
Kosten
| Kaufpreis |
229.000 € |
|---|---|
| Provision |
3,57 % inkl. MwSt. |
Finanzierungsrechner:
Kaufpreis:
600.000 €
Eigenkapital:
600.000 €
Monatliche Rate
0 €
Effektiver Jahreszins
0 %
Sollzinsbindung
10 Jahre
Bausubstanz & Energieausweis
| Baujahr | 1937 |
|---|---|
| Objektzustand | Gepflegt |
| Heizungsart | Gas-Heizung |
| Wesentliche Energieträger | Erdgas leicht |
| Energieausweis | liegt vor |
| Energieausweistyp | Bedarfsausweis |
| Energieverbrauchskennwert | 144,5 kWh/(m²*a) |
| Energieeffizienzklasse | E |
144,5
kWh/(m²*a)
Energieeffizienzklasse E
- A+
- A
- B
- C
- D
- E
- F
- G
- H
- 0
- 25
- 50
- 75
- 100
- 125
- 150
- 175
- 200
- 225
- >250
Beschreibung des Objekts
Ausstattung
Einen ersten Eindruck des Objektes erhalten Sie in folgendem Video: https://youtu.be/iee-eBNrrYw
Lage
Die Immobilie befindet sich in einer ruhigen Wohngegend der Gemeinde Bad Zwischenahn, im Ortsteil Rostrup, der für seine hohe Lebensqualität und die Nähe zur Natur bekannt ist. Die Umgebung ist geprägt von gepflegten Einfamilien- und Doppelhäusern sowie einer angenehmen Nachbarschaft.
Das Zentrum von Bad Zwischenahn mit seinen vielfältigen Einkaufsmöglichkeiten, Restaurants, Cafés und Dienstleistungen ist in wenigen Minuten erreichbar. Hier finden sich auch Schulen, Kindergärten, Ärzte und alle Einrichtungen des täglichen Bedarfs. Die Nähe zum Zwischenahner Meer, dem bekannten Binnensee der Region, bietet zahlreiche Freizeit- und Erholungsmöglichkeiten – von Spaziergängen und Fahrradtouren bis hin zu Wassersport und Ausflügen in die umliegende Natur.
Die Verkehrsanbindung ist sehr gut: Über die nahe gelegene Bundesstraße B401 sowie die Autobahn A28 sind sowohl Oldenburg als auch Leer schnell erreichbar. Auch der öffentliche Nahverkehr ist gut ausgebaut, sodass Pendler und Schüler gleichermaßen profitieren.
Die Kombination aus naturnahem Wohnen, guter Infrastruktur und einer entspannten Atmosphäre macht diese Lage besonders attraktiv – sowohl für Familien als auch für Paare oder Einzelpersonen, die Wert auf eine ausgewogene Mischung aus Ruhe, Freizeitangeboten und Anbindung legen.
Sonstige Angaben
Bitte haben Sie Verständnis, dass wir nur Anfragen mit vollständig angegebenem Namen, Adresse und Telefonnummer bearbeiten können.
Sämtliche Fotos, Texte und grafische Darstellungen (Grundrisse) sind Eigentum von der Firma KAVEH Immobilien und dürfen nicht von Dritten verwendet oder weitergegeben werden.
Es gelten unsere Allgemeinen Geschäftsbedingungen.
Alle Angaben sind ohne Gewähr und basieren ausschließlich auf Informationen, die uns von unserem Auftraggeber zur Verfügung gestellt wurden. Wir übernehmen keine Gewähr für die Vollständigkeit, Richtigkeit und Aktualität dieser Angaben.
Adresse
26160 Bad Zwischenahn
Interessante Orte
Preis- und Lageinformationen
Preistrend für Bestandsimmobilien in Bad Zwischenahn