Ein Bungalow verkörpert nicht nur eine architektonische Form, sondern auch eine Lebensphilosophie des entschleunigten Wohnens. Mit seiner flachen, ausgedehnten Struktur streckt er sich sanft aus, als würde er sich in die Umarmung der Natur legen. Die Magie eines Bungalows liegt in seiner Einfachheit und der Verbindung von Innen- und Außenraum, die ein Gefühl von Freiheit und Harmonie schafft.
Ein Bungalow ist nicht nur ein Haus, sondern ein Zuhause, das eine Verbindung zur Umgebung und zur eigenen inneren Ruhe herstellt. Die ebenerdige Bauweise macht ihn zugänglich für Menschen jeden Alters, betont die Gemeinschaft und ermutigt dazu, das Leben in vollen Zügen zu genießen. Ein Bungalow ist ein Ort, an dem Erinnerungen entstehen, Familien zusammenkommen und der Alltag in einer behaglichen Atmosphäre verschmilzt.
Als Ausbauhaus Plus geplant, können Sie sich bereits jetzt auf Ihr neues und schickes Haus freuen. Zahlreiche Gestaltungsmöglichkeiten und Optionen finden Sie bei www.livinghaus.de !
Sichern Sie sich bereits für heute einen Energiestandard für die Zukunft dank I-KON!
Gerne berate ich Sie in einem persönlichen Gespräch und zeige Ihnen den Weg in Ihr neues Zuhause.
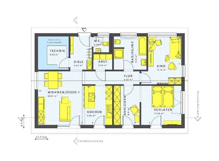
Ihr Traumhaus auf einer Ebene: Bungalow mit Wohlfühlgarantie! 18 Monate Festpreisgarantie!
61381 Friedrichsdorf
Die vollständige Adresse der Immobilie erhalten Sie vom Anbieter.
Auf Karte anzeigen
Die vollständige Adresse der Immobilie erhalten Sie vom Anbieter.
Finanzierungszertifikat
In nur zwei Minuten zu Ihrem persönlichen Finanzierungszertifkat.
Infos
| Haustyp | Einfamilienhaus |
|---|---|
| Wohnfläche ca. | 101 m2 |
| Grundstücksfläche | 603 m2 |
| Zimmer | 4 |
| Badezimmer | 1 |
Kosten
| Kaufpreis |
871.793 € |
|---|
Finanzierungsrechner:
Kaufpreis:
600.000 €
Eigenkapital:
600.000 €
Monatliche Rate
0 €
Effektiver Jahreszins
0 %
Sollzinsbindung
10 Jahre
Bausubstanz & Energieausweis
| Baujahr | 2026 |
|---|---|
| Qualität der Austattung | Gehoben |
| Heizungsart | Zentralheizung |
| Energieausweis | liegt vor |
| Energieausweistyp | Bedarfsausweis |
| Energieverbrauchskennwert | 18,0 kWh/(m²*a) |
| Energieeffizienzklasse | A+ |
18,0
kWh/(m²*a)
Energieeffizienzklasse A+
- A+
- A
- B
- C
- D
- E
- F
- G
- H
- 0
- 25
- 50
- 75
- 100
- 125
- 150
- 175
- 200
- 225
- >250
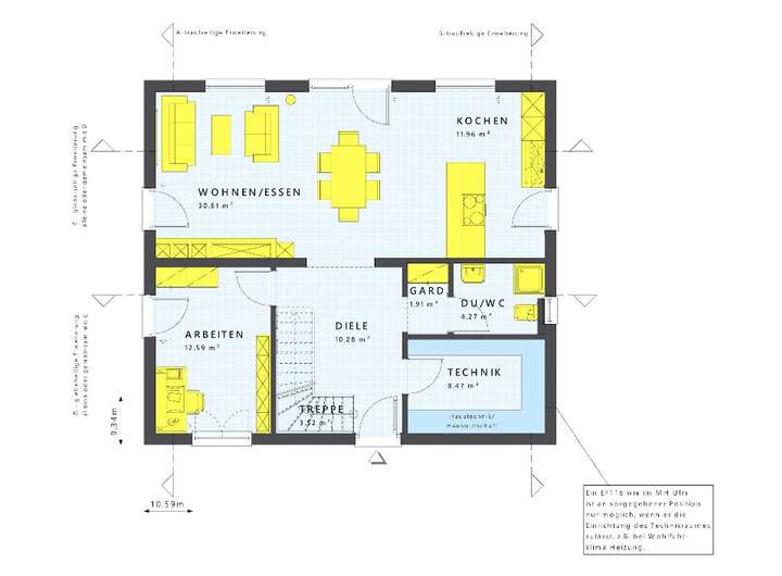
Beschreibung des Objekts
Ausstattung
Willkommen zu einem Zuhause, das nicht nur aus Wänden und Dächern besteht, sondern aus Träumen und Wünschen, die Wirklichkeit werden. Hier erwartet Sie mehr als nur ein Immobilieninserat - es ist eine Einladung, Ihre Vorstellungskraft zu entfalten und Ihr Leben in einem Ort zu gestalten, der auf Ihre Bedürfnisse zugeschnitten ist.
In diesem Angebot enthalten sind:
- Eine individuell geplante Küche mit Kochinsel, Softclose, Induktion, Spülmaschine und mehr.
- Ein Haus als Plusenergiehaus mit Kühlfunktion.
- Bodenplatte, Fenster, Außenfensterbänke, Rollladenführungsschienen und -endleisten in RAL Farbe.
- Eine Photovoltaikanlage und Stromspeicher VARTA pulse neo 6.
- Elektroinstallation, Sanitärrohinstallation, Dämmung und Beplankung durch Living Haus.
- Estricharbeiten durch Living Haus.
- Hochwertiges Finish-Material für Boden- und Wandbeläge, Innentüren, Sanitärobjekte und mehr.
- Ein Ausbaucoach für 3 Tage auf Ihrer eigenen Baustelle (DiY - Academy).
- Architektenleistung und Finanzierungsservice mit Sonderkonditionen.
- Baucockpit App, um die nächsten Schritte im Blick zu behalten.
- DGNB Zertifikat in GOLD.
Ein Ort, der nicht nur ein Haus ist, sondern ein Zuhause. Willkommen in Ihrem neuen Leben. Willkommen zu Ihrem neuen Zuhause.
Lage
Das hier berücksichtigte Baugrundstück befindet sich in Friedrichsdorf, einer charmanten Stadt im Hochtaunuskreis nördlich von Frankfurt am Main. Friedrichsdorf überzeugt durch seine ruhige, familienfreundliche Atmosphäre, idyllische Wohngebiete und eine attraktive Mischung aus Natur und urbaner Infrastruktur. Umgeben von Wäldern, Feldern und Parks lädt der Ort zu Spaziergängen, Radtouren und erholsamen Stunden im Freien ein. Trotz der naturnahen Lage ist Friedrichsdorf hervorragend an das Verkehrsnetz angebunden. Die nahegelegene Autobahn A5 ermöglicht schnelle Verbindungen in Richtung Frankfurt, Wiesbaden oder Darmstadt, während die S-Bahnlinie S5 einen direkten Zugang zur Frankfurter Innenstadt bietet. Friedrichsdorf ist besonders familienfreundlich und bietet eine hervorragende Infrastruktur mit Kindergärten, Schulen, Sportvereinen und zahlreichen Freizeitmöglichkeiten. Einkaufsmöglichkeiten, Restaurants und Dienstleistungen sind bequem in der Stadt selbst oder in den nahegelegenen Städten Bad Homburg und Frankfurt erreichbar. Da das Grundstück überwiegend eben ist, entscheiden Sie, ob Sie einen Keller wollen oder auf einer Bodenplatte bauen möchten.
Sonstige Angaben
Natürlich sind unsere Häuser mit den besten Energiekennwerten der heutigen Zeit ausgestattet. Gerne berate ich Sie auch hier über die vielen Möglichkeiten und wie wir gemeinsam dazu beitragen können, unseren Planeten zu schützen. Das Erfüllen der Anforderungen für ein Zertifikat der Deutschen Gesellschaft für nachhaltiges Bauen (DGNB) ist für uns ein Lebensauftrag! Für Sie und auch für uns alle ist es unser Ziel, unsere Welt besser zu machen!
Darüber hinaus bieten wir auch Unterstützung bei der Erfüllung von Förderprogrammen und anderen Möglichkeiten zur finanziellen Unterstützung an. Uns ist es wichtig, Ihnen dabei zu helfen, nicht nur ein umweltfreundliches Zuhause zu besitzen, sondern auch von finanziellen Vorteilen zu profitieren.
Adresse
61381 Friedrichsdorf
Interessante Orte
Preis- und Lageinformationen
Preistrend für Bestandsimmobilien in Friedrichsdorf