Leben, lieben, lachen und natürlich auch genießen - das SUNSHINE 143 ist ein Haus zum Glücklichsein. Die große Wohneinheit aus Wohn- und Esszimmer mit offener Küche im Erdgeschoss ist das Herz des Hauses und Anlaufstelle für deine ganze Familie. Hier kocht und esst ihr zusammen, feiert Feste und genießt gemütliche Stunden auf dem Sofa. Und das Obergeschoss bietet alles, was zum Relaxen und Abschalten wichtig ist: Privatsphäre und Ruhe in den Schlafzimmern für Eltern und Kinder und ein großes Bad inklusive Badewanne für Wellnessstunden in den eigenen vier Wänden. Zudem bieten Dachvarianten und Architektur-Accessoires flexible Gestaltungsmöglichkeiten.
Zahlreiche Gestaltungsmöglichkeiten und Optionen finden Sie bei www.livinghaus.de !
Sichern Sie sich bereits für heute einen Energiestandard für die Zukunft dank I-KON!
Gerne berate ich Sie in einem persönlichen Gespräch und zeige Ihnen den Weg in Ihr neues Zuhause.
Ihr neues Traumhaus! 18 Monate Festpreisgarantie!
65719 Hofheim am Taunus
Die vollständige Adresse der Immobilie erhalten Sie vom Anbieter.
Auf Karte anzeigen
Die vollständige Adresse der Immobilie erhalten Sie vom Anbieter.
Finanzierungszertifikat
In nur zwei Minuten zu Ihrem persönlichen Finanzierungszertifkat.
Infos
| Haustyp | Einfamilienhaus |
|---|---|
| Wohnfläche ca. | 143 m2 |
| Grundstücksfläche | 414 m2 |
| Zimmer | 6 |
| Badezimmer | 1 |
Kosten
| Kaufpreis |
773.539 € |
|---|
Finanzierungsrechner:
Kaufpreis:
600.000 €
Eigenkapital:
600.000 €
Monatliche Rate
0 €
Effektiver Jahreszins
0 %
Sollzinsbindung
10 Jahre
Bausubstanz & Energieausweis
| Baujahr | 2026 |
|---|---|
| Qualität der Austattung | Gehoben |
| Heizungsart | Zentralheizung |
| Energieausweis | liegt vor |
| Energieausweistyp | Bedarfsausweis |
| Energieverbrauchskennwert | 18,0 kWh/(m²*a) |
| Energieeffizienzklasse | A+ |
18,0
kWh/(m²*a)
Energieeffizienzklasse A+
- A+
- A
- B
- C
- D
- E
- F
- G
- H
- 0
- 25
- 50
- 75
- 100
- 125
- 150
- 175
- 200
- 225
- >250
Beschreibung des Objekts
Ausstattung
Willkommen zu einem Zuhause, das nicht nur aus Wänden und Dächern besteht, sondern aus Träumen und Wünschen, die Wirklichkeit werden. Hier erwartet Sie mehr als nur ein Immobilieninserat - es ist eine Einladung, Ihre Vorstellungskraft zu entfalten und Ihr Leben in einem Ort zu gestalten, der auf Ihre Bedürfnisse zugeschnitten ist.
In diesem Angebot enthalten sind:
- Eine individuell geplante Küche mit Kochinsel, Softclose, Induktion, Spülmaschine und mehr.
- Ein Haus als Plusenergiehaus mit Kühlfunktion.
- Bodenplatte, Fenster, Außenfensterbänke, Rollladenführungsschienen und -endleisten in RAL Farbe.
- Eine Photovoltaikanlage und Stromspeicher VARTA pulse neo 6.
- Elektroinstallation, Sanitärrohinstallation, Dämmung und Beplankung durch Living Haus.
- Estricharbeiten durch Living Haus.
- Hochwertiges Finish-Material für Boden- und Wandbeläge, Innentüren, Sanitärobjekte und mehr.
- Ein Ausbaucoach für 3 Tage auf Ihrer eigenen Baustelle (DiY - Academy).
- Architektenleistung und Finanzierungsservice mit Sonderkonditionen.
- Baucockpit App, um die nächsten Schritte im Blick zu behalten.
- DGNB Zertifikat in GOLD.
Ein Ort, der nicht nur ein Haus ist, sondern ein Zuhause. Willkommen in Ihrem neuen Leben. Willkommen zu Ihrem neuen Zuhause.
Lage
Das hier berücksichtigte Baugrundstück befindet sich in Diedenbergen, einem charmanten und naturnahen Stadtteil von Hofheim am Taunus. Diedenbergen überzeugt durch seine ruhige, dörfliche Atmosphäre, umgeben von Wäldern, Feldern und grünen Hängen, die zu Spaziergängen, Radtouren und erholsamen Stunden in der Natur einladen. Der Ort kombiniert ländliche Idylle mit moderner Wohnqualität und einer besonders familienfreundlichen Umgebung. Trotz der ruhigen Lage ist Diedenbergen gut an das Verkehrsnetz angebunden. Die A66 ist nur wenige Minuten entfernt und ermöglicht schnelle Verbindungen nach Frankfurt, Wiesbaden und Limburg. Zudem sorgen regionale Busverbindungen und die Nähe zu S-Bahnstationen in Hofheim für einen direkten Zugang zur Frankfurter Innenstadt. Diedenbergen bietet eine familienfreundliche Infrastruktur mit Kindergärten, Schulen, Sportvereinen und Freizeitmöglichkeiten. Einkaufsmöglichkeiten, Restaurants und weitere Dienstleistungen sind sowohl im Ort selbst als auch in den benachbarten Stadtteilen wie Hofheim-Mitte oder Eppstein schnell erreichbar. Da das Grundstück überwiegend eben ist, entscheiden Sie, ob Sie einen Keller wollen oder auf einer Bodenplatte bauen möchten.
Sonstige Angaben
Natürlich sind unsere Häuser mit den besten Energiekennwerten der heutigen Zeit ausgestattet. Gerne berate ich Sie auch hier über die vielen Möglichkeiten und wie wir gemeinsam dazu beitragen können, unseren Planeten zu schützen. Das Erfüllen der Anforderungen für ein Zertifikat der Deutschen Gesellschaft für nachhaltiges Bauen (DGNB) ist für uns ein Lebensauftrag! Für Sie und auch für uns alle ist es unser Ziel, unsere Welt besser zu machen!
Darüber hinaus bieten wir auch Unterstützung bei der Erfüllung von Förderprogrammen und anderen Möglichkeiten zur finanziellen Unterstützung an. Uns ist es wichtig, Ihnen dabei zu helfen, nicht nur ein umweltfreundliches Zuhause zu besitzen, sondern auch von finanziellen Vorteilen zu profitieren.
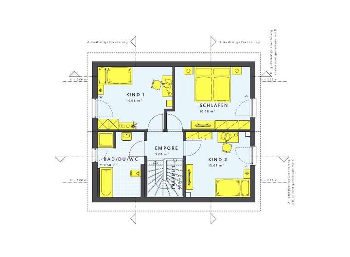
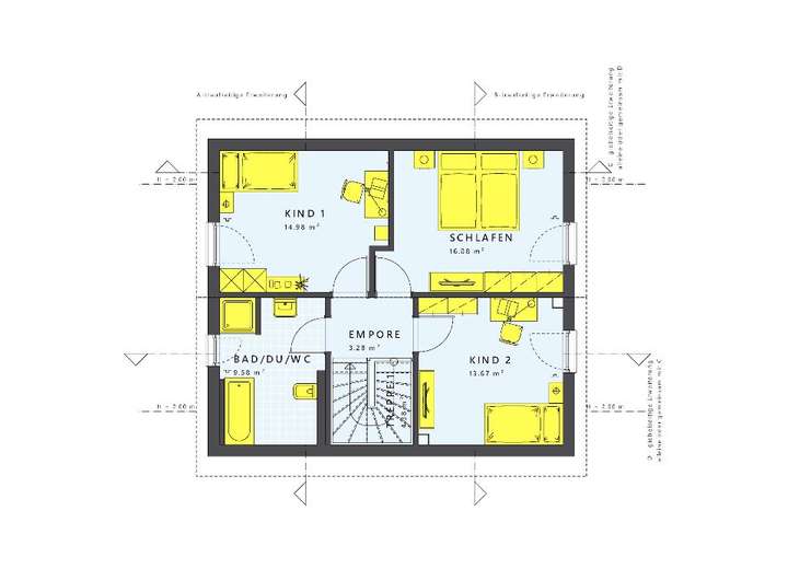
Grundriss
Grundriss
>
>
Grundriss
>
>
Adresse
65719 Hofheim am Taunus
Interessante Orte
Preis- und Lageinformationen
Preistrend für Bestandsimmobilien in Hofheim am Taunus