Diese gepflegte und solide gebaute Immobilie aus dem Jahr 1953 präsentiert sich als vielseitig nutzbares Zweifamilienhaus in bester Lage von Hainburg-Hainstadt.
Auf einem ca. 655 m² großen Grundstück in direkter Feldrandlage gelegen, verbindet das Haus idyllisches Wohnen im Grünen mit durchdachter Funktionalität und flexibler Nutzung – ideal für Familien, Mehrgenerationenhaushalte oder Eigennutzer mit zusätzlichem Platzbedarf.
Das Gebäude wurde 1979 durch einen Anbau erweitert und seitdem fortlaufend instand gehalten und modernisiert.
Insgesamt stehen rund 196 m² Wohnfläche zur Verfügung, verteilt auf zwei vollständig abgeschlossene Wohnungen im Erd- und Obergeschoss.
Die großzügige Raumaufteilung sowie zusätzliche Flächen im Spitzboden und Kellergeschoss bieten zahlreiche Möglichkeiten für individuelle Nutzungskonzepte.
Beide Wohneinheiten verfügen über helle Wohn- und Esszimmer, separate Küchen, moderne Tageslichtbäder sowie jeweils eigene Außenbereiche in Form von Terrasse oder Balkon – mit herrlichem Blick ins Grüne.
Die Erdgeschosswohnung umfasst ca. 85 m² Wohnfläche, während die Wohnung im Obergeschoss mit ca. 101 m² zusätzlich über zwei nutzbare Räume im ausgebauten Dachgeschoss verfügt.
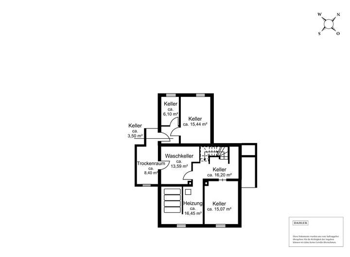
Das Haus ist voll unterkellert und bietet reichlich Platz für Waschküche, Lager, Hobby oder Hauswirtschaft.
Auch ein Trockenkeller unter der Terrasse, ein Heizungsraum sowie ein separater Raum für Mülltonnen sind vorhanden – funktional und sauber ausgeführt.
Ein echtes Highlight ist das im hinteren Grundstücksteil befindliche massive Nebengebäude mit ca. 65 m² Nutzfläche.
Es bietet einen großen Werkstattraum, Lagermöglichkeiten für Garten- und Fahrradzubehör sowie zusätzlichen Stauraum – ideal für Handwerker, Bastler oder als Atelier.
Die Außenanlagen wurden im Jahr 2016 vollständig neugestaltet und zeigen sich in gepflegtem Zustand.
Eine hochwertige Einfriedung, ein großzügiger Garten mit Pumpenanlage zur Bewässerung sowie drei Garagen direkt am Haus runden das Gesamtbild ab.
Die ruhige, direkte Feldrandlage ist dabei das i-Tüpfelchen – mit einem unverbaubaren Blick ins Grüne, der Seltenheitswert hat.
Die Immobilie ist derzeit vollständig vermietet und erzielt eine solide Monatsmiete.
Gleichzeitig wäre auch ein teilweiser oder vollständiger Selbstbezug möglich, sodass sich das Objekt sowohl für Eigennutzer als auch für Mehrgenerationenhaushalte mit Zukunftsplanung hervorragend eignet.
Wohnen in bester Lage! – Schönes Zweifamilienhaus mit Nebengebäude und drei Garagen!
63512 Hainburg
Die vollständige Adresse der Immobilie erhalten Sie vom Anbieter.
Auf Karte anzeigen
Die vollständige Adresse der Immobilie erhalten Sie vom Anbieter.
Finanzierungszertifikat
In nur zwei Minuten zu Ihrem persönlichen Finanzierungszertifkat.
Infos
| Haustyp | Mehrfamilienhaus |
|---|---|
| Etagenzahl | 2 |
| Wohnfläche ca. | 196 m2 |
| Nutzfläche | 80 m2 |
| Grundstücksfläche | 656 m2 |
| Zimmer | 7 |
| Schlafzimmer | 3 |
| Badezimmer | 2 |
| Garage/Stellplatz | Garage |
| Anzahl Garage/Stellplatz | 3 |
Kosten
| Kaufpreis |
599.000 € |
|---|---|
| Provision |
5,95 % inkl. der gesetzl. MwSt., bezogen auf den beurkundeten Kaufpreis |
Finanzierungsrechner:
Kaufpreis:
600.000 €
Eigenkapital:
600.000 €
Monatliche Rate
0 €
Effektiver Jahreszins
0 %
Sollzinsbindung
10 Jahre
Bausubstanz & Energieausweis
| Baujahr | 1953 |
|---|---|
| Objektzustand | Gepflegt |
| Heizungsart | Zentralheizung |
| Wesentliche Energieträger | Öl |
Beschreibung des Objekts
Ausstattung
* Baujahr 1953 - 1979 Anbau
* 655m² Grundstücksfläche
* 195m² Gesamtwohnfläche (ca. 95m² Erdgeschoss & 100m² Obergeschoss)
* fortlaufend modernisiert
* Zwei abgeschlossene Wohneinheiten mit flexibler Nutzung
* Tageslichtbäder mit Wanne und Dusche
* Hochwertige Fliesen in Küchen und Bädern
* Laminatböden in den Wohnräumen
* Dach ist gedämmt
* Terrassen und Balkone neu gefliest
* Ölzentralheizung
* Voll unterkellert mit Waschküche, Lager- und Trockenkeller
* Nebengebäude mit ca. 65 m² Nutzfläche
* Drei Garagen auf dem Grundstück
* Gepflegte Außenanlagen (2016 neugestaltet)
* Pumpenanlage zur Gartenbewässerung
* Ruhige Feldrandlage mit unverbaubarem Blick ins Grüne
Lage
Die Immobilie liegt im Hainburger Ortsteil Hainstadt, einem gewachsenen und gefragten Wohngebiet, das für seine ruhige Lage, die Nähe zur Natur und die familienfreundliche Infrastruktur bekannt ist.
Hainstadt vereint die Vorteile ländlicher Gelassenheit mit einer sehr guten Anbindung an die umliegenden Städte – ideal für alle, die naturnah wohnen und dennoch gut vernetzt bleiben möchten.
Besonders hervorzuheben ist die direkte Feldrandlage in einer ruhigen Seitenstraße.
Von hier aus genießt man einen unverbaubaren Blick auf die Lohwiesen und hat den Wald praktisch vor der Haustür – ein Paradies für Spaziergänger, Jogger, Hundebesitzer und Naturfreunde.
Dennoch ist der Alltag bestens organisiert: Ein REWE-Markt befindet sich fußläufig "um die Ecke" und bietet eine bequeme Nahversorgung.
Weitere Geschäfte, Apotheken, Ärzte, Bäckereien sowie gastronomische Angebote sind ebenfalls im Ort vorhanden.
Für junge Familien bietet Hainstadt mehrere Kindertagesstätten sowie eine Grundschule, die bequem zu erreichen sind. Weiterführende Schulen befinden sich im nahegelegenen Seligenstadt, Hanau oder Offenbach.
Verkehrstechnisch ist Hainstadt gut angebunden: Der örtliche Bahnhof bietet regelmäßige Regionalverbindungen in Richtung Hanau, Aschaffenburg und Frankfurt am Main – eine verlässliche Verbindung auch für Pendler.
Busverbindungen ergänzen das öffentliche Verkehrsnetz.
Mit dem Auto erreicht man über die nahegelegene B45 sowie die Autobahnen A3 und A45 schnell die gesamte Rhein-Main-Region – inklusive des Frankfurter Flughafens.
Hainstadt punktet außerdem mit einem aktiven Vereinsleben, kurzen Wegen, familiärem Flair und einer hohen Lebensqualität.
Die Kombination aus ländlicher Ruhe, guter Infrastruktur und schneller Erreichbarkeit macht diesen Standort besonders attraktiv – für Familien, Paare oder auch Ruheständler, die eine ausgewogene Umgebung zu schätzen wissen.
Grundriss
Grundriss Erdgeschoss
>
>
Grundriss Obergeschoss
>
>
Grundriss Untergeschoss
>
>
Adresse
63512 Hainburg
Interessante Orte
Preis- und Lageinformationen
Preistrend für Bestandsimmobilien in Hainburg