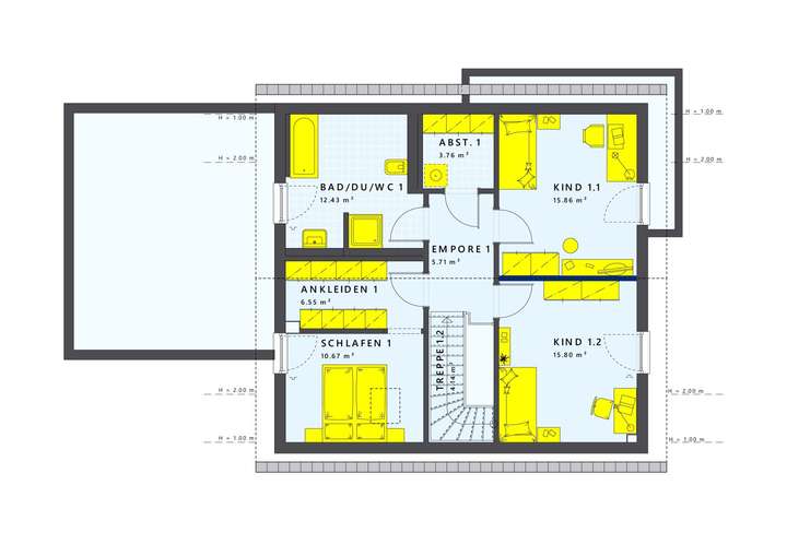
Stellt euch vor, eure Freunde sind beeindruckt, während ihr ihnen von eurem Traumprojekt erzählt: Ihr baut euer eigenes Haus und jemand anderes übernimmt einen Großteil der Kosten. Genau so funktioniert SOLUTION 183. Der Entwurf bietet in allen vier Varianten jeweils eine große und eine kleine Wohneinheit. Die Einliegerwohnung könnt ihr vermieten, um die Einnahmen zur Tilgung des Baukredits zu nutzen. Im Erdgeschoss gestaltet ihr euren offenen Wohnbereich, während im Dachgeschoss ausreichend Raum für Schlafzimmer, Ankleide, Bad und zwei Kinderzimmer ist. Die kleinere Wohnung mit separatem Eingang eignet sich perfekt für ein bis zwei Personen. Die Architektur besticht bereits in der Grundversion durch geniale Ansätze. Mit Extras wie Zwerchgiebeln, einem Erker oder Balkon wird euer Haus zum einzigartigen Eigenheim. Alles kann nach euren Vorstellungen gestaltet werden. Bei Living Haus gibt es keinen Platz für Kompromisse!
LivingHaus SOLUTION 183: Dein Traumhaus mit cleverer Finanzierung
49699 Lindern (Oldenburg)
Die vollständige Adresse der Immobilie erhalten Sie vom Anbieter.
Auf Karte anzeigen
Die vollständige Adresse der Immobilie erhalten Sie vom Anbieter.

Finanzierungszertifikat
In nur zwei Minuten zu Ihrem persönlichen Finanzierungszertifkat.
Infos
Haustyp | Mehrfamilienhaus |
---|---|
Etagenzahl | 2 |
Wohnfläche ca. | 183 m2 |
Grundstücksfläche | 780 m2 |
Bezugsfrei ab | 2025 |
Zimmer | 8 |
Schlafzimmer | 4 |
Badezimmer | 2 |
Kosten
Kaufpreis |
628.000 € |
---|---|
Provision | Nein |
Finanzierungsrechner:
Kaufpreis:
600.000 €
Eigenkapital:
600.000 €
Monatliche Rate
0 €
Effektiver Jahreszins
0 %
Sollzinsbindung
10 Jahre
Bausubstanz & Energieausweis
Baujahr | 2025 |
---|---|
Bauphase | Haus in Planung (projektiert) |
Qualität der Austattung | Gehoben |
Heizungsart | Wärmepumpe |
Beschreibung des Objekts
Ausstattung
Living Haus bietet euch ein Rundum-Sorglos-Paket: - Grundstücks-Service - Finanzierungs-Service - Hausbau-Förderung - alle notwendigen Bauherren-Versicherungen - DGNB-Zertifizierung in Gold - Architekt für die Baugenehmigungsplanung Und das Beste daran: Alles ohne Zusatzkosten! Einzigartige Extra-Leistungen: - Die Living Haus Bau-Cockpit App für aktuelle Projektübersicht - Das Zuhause-Paket mit allen Ausbaumaterialien und Verarbeitungsmaterialien im Preis enthalten - DIY-Ausbau-Coaching und Ausbau-Tutorials für den individuellen Ausbau - Bodenplatte oder Keller inklusive Beratung inklusive - Wir decken alle relevanten Themen für euren Weg ins neue Zuhause ab. Lasst eurer Kreativität freien Lauf mit unserem Zuhause-Paket! Alle Materialien werden direkt geliefert - startet sofort los! Plus, ein intelligent konfiguriertes Technik-Paket: + Photovoltaik-Anlage + Batteriespeicher + Wärmepumpenheizung mit Komfortlüftung und Wärmerückgewinnung + Ideal gedämmte Gebäudehülle = Dein Living Haus voller Zukunftssicherheit. Ruf uns an unter 0151/27502431.
Lage
Dieses Grundstück für euer Bauprojekt liegt angenehm ruhig, mit ortsüblich erreichbaren Einkaufsmöglichkeiten, sozialen Einrichtungen und öffentlichem Verkehr. Nicht ganz die perfekte Lage? Kein Problem - Wir finden das ideale Grundstück gemeinsam. Zahlreiche weitere Optionen stehen zur Verfügung. Falls ihr schon ein Baugrundstück besitzt - Herzlichen Glückwunsch! Wir bauen auch dort euer Traumhaus. Kontaktiert uns unter 0151/27502431 - wir finden fast immer eine passende Lösung. Wichtig: Ich trete nicht als Makler auf, sondern baue mit Herz und Kompetenz Häuser. Angebote sind freibleibend und unverbindlich; Irrtum und Zwischenverkauf vorbehalten. Die Informationen beruhen auf mir zur Verfügung gestellten Auskünften; daher keine Haftung für deren Vollständigkeit möglich. Jedes Grundstück ist einzigartig - Verfügbarkeit kann nicht garantiert werden.
Sonstige Angaben
Das angebotene Grundstück ist im oben genannten Preis enthalten und wird ohne zusätzliche Provision an einen Living Haus-Bauherren übergeben. Weitere Baunebenkosten kommen hinzu - Hierzu beraten wir gern umfassend. Attraktive Finanzierungsmöglichkeiten stehen bereit; inklusive Beantragung aller Fördermittel! Beachtet bitte: Abbildungen zeigen möglicherweise Extras, welche nicht im Kaufpreis inkludiert sind. Gute Beratung ist essenziell. Gemeinsam analysieren wir eure Bedürfnisse, um das perfekte Living Haus zu finden. Interesse geweckt? Vereinbart heute noch einen kostenlosen Beratungstermin unter 0151/27502431.
Weitere Dokumente
Checkliste Living HausGrundriss
Grundriss EG
>

Grundriss DG
>

Adresse
49699 Lindern (Oldenburg)
Interessante Orte
Preis- und Lageinformationen
Preistrend für Bestandsimmobilien in Lindern (Oldenburg)