WICHTIGE INFO VORAB: Aus Gründen der Diskretion gegenüber den derzeitigen Bewohnern des Hauses haben wir nur einen kleinen Teil der insgesamt ca. 40 Aufnahmen veröffentlicht. Nach Kontaktaufnahme zu uns erhalten Sie ein ausführliches Exposé mit allen Innen- und Außenaufnahmen. Hierzu füllen Sie bitte das Kontaktformular vollständig aus. Herzlichen Dank. Dieses gepflegte 3-Familienhaus liegt in ruhiger und naturnaher Wohnlage im idyllischen Stadtteil Orlen der Stadt Taunusstein im Rheingau-Taunus-Kreis. Auf einem großzügigen Grundstück mit traumhaften Blick ins Grüne bietet das massiv errichtete Haus drei abgeschlossene Wohneinheiten mit attraktiven Grundrissen und solider Bausubstanz. Das Gebäude befindet sich seit Bau in Familienbesitz und wurde über die Jahre kontinuierlich instandgehalten und modernisiert. Aufgrund der Größe und Aufteilung eignet es sich Ideal als: - Kapitalanlage - Mehrgenerationenhaus - Eigennutzung mit zusätzlicher Vermietung - flexible Kombination aus allem EIN KURZER ÜBERBLICK: - Baujahr: 1973 - Wohnfläche gesamt: ca. 282,74 m² - Grundstücksfläche: auf Anfrage - Etagen: Erdgeschoss, Obergeschoss, Dachgeschoss - Keller: voll unterkellert, inkl. Mieterkeller, Heizungsraum, Gäste-WC - Heizung: Gas-Zentralheizung, Bj. 1997, regelmäßig gewartet - Stellplätze: Carport bzw. Garage auf dem Grundstück, kostenfreie Parkplätze direkt vor dem Haus - Garten: großzügig, gepflegt, mit direktem Zugang aus EG - Dach: Original, intakt - Kamin: im Wohnzimmer im EG, nutzbar laut Schornsteinfeger - Zustand: gepflegt, laufend instandgehalten - Mieterstruktur: zuverlässige (Miete wird pünktlich gezahlt) und unkomplizierte Mieter Dieses Haus ist Ihr Glücksgriff: ein solides, laufend gepflegtes 3-Familienhaus mit attraktiver Mieterstruktur in ruhiger und naturnaher Lage. Die Immobilie bietet: + zuverlässige Mieteinnahmen mit Mietsteigerungspotenzial + umfangreiche Modernisierungen in allen Etagen + Ausbaupotenzial durch Grundrissoptimierung (EG & OG zu 3-ZW) + familienfreundliche, naturnahe Lage + gute ÖPNV- und Autobahnanbindung + gepflegter Garten, Carport und Kamin Diese Immobilie bietet eine außergewöhnlich flexible Nutzung, soliden Mietertrag und eine idyllische Wohnlage mit hervorragender Anbindung. Ob zur Rendite, als Familienprojekt oder zur teilweisen Eigennutzung – hier investieren Sie nachhaltig und sicher.
SCHWIND IMMOBILIEN - Ein Juwel in Bestlage: 3-FH mit Blick & Potenzial
65232 Taunusstein
Die vollständige Adresse der Immobilie erhalten Sie vom Anbieter.
Auf Karte anzeigen
Die vollständige Adresse der Immobilie erhalten Sie vom Anbieter.

Finanzierungszertifikat
In nur zwei Minuten zu Ihrem persönlichen Finanzierungszertifkat.
Infos
Haustyp | Mehrfamilienhaus |
---|---|
Etagenzahl | 3 |
Wohnfläche ca. | 279 m2 |
Nutzfläche | 155,26 m2 |
Grundstücksfläche | 580 m2 |
Bezugsfrei ab | sofort bzw. n. V. |
Zimmer | 6 |
Schlafzimmer | 3 |
Badezimmer | 3 |
Garage/Stellplatz | Carport |
Anzahl Garage/Stellplatz | 2 |
Kosten
Kaufpreis |
598.000 € |
---|---|
Provision |
7,14 % des Kaufpreises inkl. 19 % MwSt. |
Finanzierungsrechner:
Kaufpreis:
600.000 €
Eigenkapital:
600.000 €
Monatliche Rate
0 €
Effektiver Jahreszins
0 %
Sollzinsbindung
10 Jahre
Bausubstanz & Energieausweis
Baujahr | 1975 |
---|---|
Letzte Sanierung | 2003 |
Objektzustand | Gepflegt |
Qualität der Austattung | Normal |
Heizungsart | Zentralheizung |
Wesentliche Energieträger | Gas |
Energieausweis | liegt vor |
Energieausweistyp | Bedarfsausweis |
Energieverbrauchskennwert | 234,6 kWh/(m²*a) |
Beschreibung des Objekts
Ausstattung
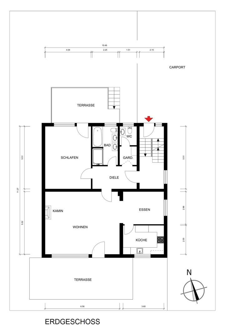
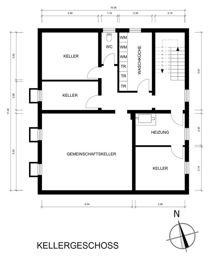
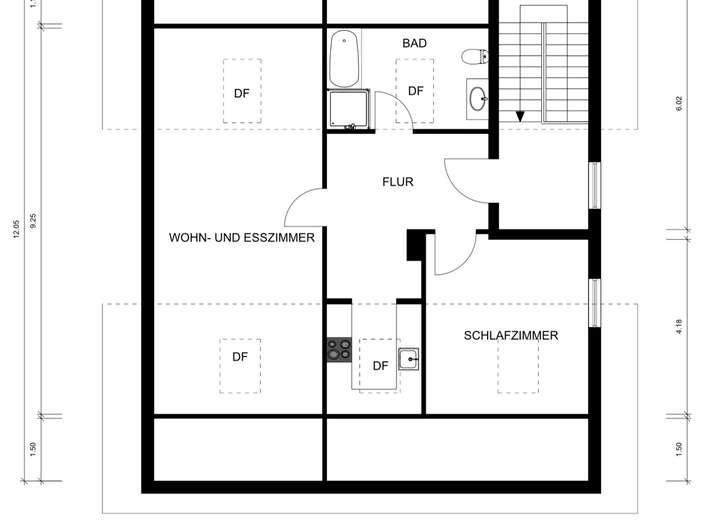
MODERNISIERUNGEN IM ÜBERBLICK: - 2005: neue Fenster (EG + tlw. OG, DG), neue Terrasse, Carport, Elektrik OG, neues Bad OG - 2003–2005: umfassende Sanierung OG (Fenster, Böden, Elektrik, Bad) - 2008: Umbau Küche + Schlafzimmer DG - 1995: neue Terrasse & Hofeinfahrt - 1985: Klingelanlage erneuert - 1980: neues Bad im DG WOHNUNGEN IM ÜBERBLICK: Erdgeschoss - ca. 119,34 m² - 2-Zimmer-Wohnung (Umbau zu 3-ZW möglich) - Kaltmiete: 900 € - vermietet seit 01.11.2021 - Ausstattung: …großzügiger Grundriss mit Wohnzimmer, Esszimmer, Schlafzimmer, Küche, Flur …zwei Terrassen (Süd- und Ostseite) …direkter Zugang zum Garten …Tageslicht-Bad mit Dusche & Badewanne, separates Gäste-WC …Laminatböden in Wohn-, Esszimmer und Küche …Natursteinboden im Flur, Fliesen in Bad und WC …Kamin im Wohnzimmer Obergeschoss - ca. 104,12 m² - aktuell 2-Zimmer-Wohnung (Umbau zu 3-ZW möglich) - Kaltmiete: 700 € - vermietet seit 01.04.2023 - Ausstattung: …Balkon mit Ausblick in den Garten …Tageslicht-Bad mit Badewanne & Dusche, separates Gäste-WC …Laminatböden …großzügige Wohnfläche Dachgeschoss - ca. 59,28 m² - 2-Zimmer-Wohnung - Kaltmiete: 480 € - vermietet seit 01.05.2010 - Ausstattung: …Kompakte, charmante Dachgeschosswohnung …Tageslichtbad mit Dusche & Badewanne …Teilweise Fenster erneuert (2005) …Küche und Schlafzimmer umgebaut (2008) …ruhiger, langjähriger Mieter AUSSTATTUNG IM ÜBERBLICK: Erdgeschoss (EG) - Fenster erneuert (2005) - Terrasse neu angelegt (2005) - Carport errichtet (2005) - Terrasse & Hofeinfahrt erneuert (1995) - Dach in Originalzustand, jedoch dicht - Zustand: gepflegt, funktional Obergeschoss (OG) - Böden komplett erneuert (2005) - modernes Badezimmer (2005) - Elektrik umfassend saniert (2005) - teilweise Fenster erneuert (2003 & 2005) - Zustand: modernisiert und bezugsbereit Dachgeschoss (DG) - Bad erneuert (1980) - Küche & Schlafzimmer umgebaut (2008) - teilweise Fenster erneuert (2005) - Zustand: gepflegt, teils modernisiert TECHNIK & INFRASTRUKTUR DES HAUSES: - Heizungsanlage: Öl-/Gas-Zentralheizung, Baujahr 1997, voll funktionsfähig - Kamin: laut Schornsteinfeger nutzbar - Klingelanlage erneuert (1985) - Strom und Wasserleitungen in weiten Teilen überarbeitet - Satellitenschüssel & Kabelanschluss verfügbar - Internet: schnelles DSL/VDSL über Telekom & Co. verfügbar
Lage
LAGE Das Grundstück besticht durch seine ruhige Wohnlage am Ende einer Sackgasse, umgeben von Feldern und Wiesen sowie dem nahegelegenen Wald. Die Gegend bietet eine komfortable Infrastruktur bei gleichzeitig reizvoller Naturnähe. Taunusstein ist mit ca. 30.000 Einwohnern die größte Stadt im Rheingau-Taunus-Kreis und liegt ca. 12 km nordwestlich von Wiesbaden. Orlen ist ein ruhiger Stadtteil mit ländlichem Charakter und guter Verkehrsanbindung. Ideal für Familien, Berufspendler und Naturliebhaber. Verkehrsanbindung: - On-Demand-Shuttle „EMIL“ ergänzt den ÖPNV flexibel und nachhaltig über App-Buchung. - Bahnanschluss: Die Aartalbahn ist aktuell nicht mehr im Personenverkehr aktiv – ehemalige Bahnhöfe wie Hahn-Wehen oder Eiserne Hand sind stillgelegt. Es gibt jedoch Initiativen zur Reaktivierung als Stadtbahn. - Buslinien direkt vor Ort, z. B. Linie 245 (Hahn–Wingsbach Füllengarten) mit kurzer Fahrtzeit (~11 Min.) - weitere Linien (240, 242, 243, 270, 271 etc.) verbinden Wingsbach effektiv mit Neuhof, Wehen, Bleidenstadt, Idstein und Wiesbaden, viele Verbindungen über Hahn oder Neuhof-Mitte als Umstiegsknoten (etwa 25 Min. nach Wiesbaden) - Straßennetz: Die B275 durchquert die Stadt, die B54 (via Eiserne Hand) und B417 (Neuhof) bieten gute Verbindungen. Der Anschluss zur A3 bei Idstein liegt ca. 12 km entfernt. - Flughäfen: Frankfurt/Main ca. 40 km entfernt, näherer Verkehrslandeplatz in Mainz-Finthen (~26 km). - Entfernung nach Wiesbaden-Zentrum: ca. 25 Min. mit dem Auto / Bus Einkaufen & Nahversorgung: - Supermärkte (Rewe, Aldi, Lidl) in Taunusstein-Hahn & Bleidenstadt (5–10 Min.) - Apotheken, Banken, Post, Bäckereien in direkter Umgebung - Wochenmarkt im benachbarten Stadtteil Wehen Gesundheitsversorgung: - Ärztehaus Taunusstein-Hahn mit diversen Fachrichtungen wie bspw. Augenärzte, HNO, Neurologie in wenigen Minuten erreichbar - Zahnärzte, Hausärzte und Tierarztpraxen im nahen Umkreis Bildung & Betreuung: - Kitas & Kindergärten: z. B. Kita Wünostraße, Hirschgraben, Sonnenblume in Hahn - Grundschulen: Silberbachschule (Wehen), Regenbogenschule (Bleidenstadt) - weiterführende Schulen: IGS Obere Aar (Hahn), Gymnasium Taunusstein (Bleidenstadt), Obermayr Europa-Schule (Neuhof) Freizeit & Natur: - direkte Lage am Waldgebiet mit Wanderwegen & Naturpfaden - Freibad in Hahn, diverse Sportvereine, Tennisplätze, Reitmöglichkeiten - Fahrradwege bis nach Idstein und Wiesbaden
Sonstige Angaben
Haben wir Ihr Interesse geweckt? Dann füllen Sie einfach das nebenstehende Kontaktformular aus und schreiben Sie uns, wann Sie einen Besichtigungstermin wünschen. Sollten Sie zuvor noch Fragen haben, sind wir selbstverständlich für Sie erreichbar (Mo.-Fr. 10:00 bis 18:00 und Sa. von 10:00 bis 16:00). Der Maklervertrag mit uns kommt entweder durch schriftliche Vereinbarung oder auch durch die Inanspruchnahme unserer Maklertätigkeit auf der Basis des Objekt-Exposés und seiner Bedingungen zustande. Sollte das von uns nachgewiesene Objekt bereits bekannt sein, teilen Sie uns dieses bitte unverzüglich mit. Der Käufer zahlt bei Abschluss eines Kaufvertrags eine Courtage in Höhe von 7,14 % des notariell beurkundeten Kaufpreises inkl. 19 % MwSt. an Schwind Immobilien. Schwind Immobilien und ggf. deren Beauftragte erhalten einen unmittelbaren Zahlungsanspruch gegenüber dem Käufer (Vertrag zugunsten Dritter, § 328 BGB). Grunderwerbssteuer, Notar- und Gerichtskosten trägt der Käufer. Alle Angaben sind ohne Gewähr und basieren ausschließlich auf Informationen, die uns von unserem Auftraggeber, Hausverwalter oder Vormieter übermittelt wurden. Wir übernehmen keine Gewähr für die Vollständigkeit, Richtigkeit und Aktualität dieser Angaben. Irrtum und Zwischenvermietung bzw. Zwischenverkauf vorbehalten. Es handelt sich lediglich um Beschreibung und nicht um zugesicherte Eigenschaften. Die Weitergabe an Dritte verpflichtet zur vollen Provisionszahlung. Mit der Immobilienanfrage erklären sich Interessenten einverstanden, dass das Immobilienunternehmen Schwind Immobilien wegen Objektangeboten telefonisch, schriftlich oder per E-Mail Kontakt aufnimmt.
Grundriss
Grundriss 3D EG
>

Grundriss 3D OG
>

Grundriss 3D DG
>

Grundriss 3D KG
>

Grundriss 2D EG
>

Grundriss 2D OG
>

Grundriss 2D DG
>

Grundriss 2D KG
>

Adresse
65232 Taunusstein
Interessante Orte
Preis- und Lageinformationen
Preistrend für Bestandsimmobilien in Taunusstein