Moin!
Hier gibt’ s nicht nur vier Wände und ein Dach, sondern ein Zuhause, in dem Sie sagen können: "Jo, hier lässt sich’ s toll leben."
Dieses teilverklinkerte Haus vereint norddeutsche Robustheit mit modernem Charme. Unten Klinker für Wind und Wetter, oben feiner Putz - so hält das Haus, was es verspricht, und sieht dabei auch noch richtig schick aus.
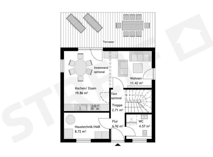
Vier Zimmer - Platz für alles und alle
- Kinderzimmer: Da dürfen Burgen entstehen, die so stabil sind, dass selbst ein Orkan sie nicht wegweht.
- Homeoffice: Für alle, die gern so tun, als würden sie arbeiten - während draußen die Möwen kreischen oder Gästezimmer
- Schlafzimmer: Für erholsamen Schlaf - einfach mal Tür zu und Ruhe.
- Großes Wohnzimmer mit Aussicht
Bodentiefe Fenster lassen so viel Licht rein, dass man meint, man hätte die Sonne abonniert. Und der Garten liegt gleich davor - praktisch, wenn man den Grill öfter sehen möchte als den Fernseher.
Offene Küche: Da, wo man zusammensitzt
Und die Einbauküche ist sogar im Kaufpreis drin - und zwar so, dass man gleich loslegen kann. Von Fischbrötchen Deluxe bis zum Sonntagsbraten: Hier passt alles. Und falls doch nur ’ne TK-Pizza wird - schmeckt trotzdem nach Zuhause!
Zwei schicke Bäder - kein Gedrängel an Deck
Zwei Badezimmer sorgen dafür, dass morgens keiner meutert. Statt Stress gibt ’s Gelassenheit - wie bei Windstille auf der Nordsee.
Und nu das Beste: der Preis
Diese Villa gibt’ s nur für kurze Zeit zum Aktionspreis. Heißt: Sie gönnen sich Qualität, ohne dass Ihr Geldbeutel gleich "Aua" ruft. Ein Angebot, das Sie sich nicht einfach entgehen lassen können!
_______________________________________
Fazit
Das ist kein Haus von der Stange. Das ist Ihr Rückzugsort, Ihr Heimathafen, Ihr Platz zum Durchschnaufen und Glücklichsein. Ein Zuhause wie ein sicherer Hafen
Oder wie man im Norden sagt: "Dat passt."
Tolle Neubau-Klinker-Stadtvilla zum Aktionspreis!
26419 Schortens
Die vollständige Adresse der Immobilie erhalten Sie vom Anbieter.
Auf Karte anzeigen
Die vollständige Adresse der Immobilie erhalten Sie vom Anbieter.
Finanzierungszertifikat
In nur zwei Minuten zu Ihrem persönlichen Finanzierungszertifkat.
Infos
| Haustyp | Villa |
|---|---|
| Etagenzahl | 2 |
| Wohnfläche ca. | 107 m2 |
| Grundstücksfläche | 565 m2 |
| Zimmer | 4 |
| Schlafzimmer | 3 |
| Badezimmer | 2 |
Kosten
| Kaufpreis |
278.000 € |
|---|
Finanzierungsrechner:
Kaufpreis:
600.000 €
Eigenkapital:
600.000 €
Monatliche Rate
0 €
Effektiver Jahreszins
0 %
Sollzinsbindung
10 Jahre
Bausubstanz & Energieausweis
| Baujahr | 2026 |
|---|---|
| Qualität der Austattung | Gehoben |
| Heizungsart | Wärmepumpe |
Beschreibung des Objekts
Ausstattung
Dieses STREIF-Energiespar-Haus ist so clever gebaut, dass es selbst den Nordseewind alt aussehen lässt.
Standardmäßig als Effizienzhaus 55 ausgestattet - und wer’ s noch nachhaltiger mag, macht mit KfW40 gleich den grünen Haken dran. Auf Wunsch gibt’ s die passende Ökobilanz gleich mit dazu - für alle, die’ s auch schwarz auf weiß wollen.
Im Aktionspreis (Ausbaustufe "FAST-FERTIG-Plus") steckt jede Menge drin:
- 20 Monate Festpreisgarantie - hier kann nix wackeln.
- Luft-Luft-Wärmepumpe mit Lüftungsanlage und Wärmerückgewinnung - frische Brise ohne Heizkosten-Schock.
- Fenster von Porta/Kömmerling - glasklar, auch bei Schietwetter.
- Massivholztreppe aus eigener Produktion - so stabil wie ein alter Kutter.
- Marken-Sanitärobjekte in beiden Bädern - Duschen mit Wohlfühlfaktor.
- Elektroinstallation - alles da, alles drin.
- ... und noch vieles mehr, das Sie begeistern wird.
Dazu: die STREIF-Passiv-Außenwand und sparsame Heiztechnik - damit bleibt die Wärme drin, auch wenn draußen der Wind ordentlich pfeift.
Qualität, die nicht schnackt, sondern liefert.
Gütesiegel, Auszeichnungen und zufriedene Bauherren sprechen für sich. Dieses Haus ist langlebig, wertig - und macht den Alltag leichter.
Und nu das Beste: Ihr Berater
Denn Häuser kann man bauen - aber Vertrauen muss man haben. Und genau da kommt Werner Fett ins Spiel: kompetent, supernett und norddeutsch geradeaus. Einer, der nicht rumschnackt, sondern zuhört und Lösungen findet. Mit ihm macht Hausbau nicht nur Sinn, sondern auch Spaß.
Wichtig zu wissen:
- Das Grundstück ist im Preis nicht drin - das bekommen Sie bei der LzO.
- Die Bodenplatte gibt’ s auch zum Aktionspreis von nur 14.995 EUR.
- Wer’ s ganz bequem mag: schlüsselfertig geht natürlich auch (gegen Aufpreis).
- Und klar: Carports, Gauben & Co. können extra dazukommen.
Änderungen und Irrtümer vorbehalten.
________________________________________
Fazit
Ein tolles Energiesparhaus, das clever, supersparsam und langlebig ist.
Und ein Berater, bei dem Sie wissen: "Der kümmert sich."
Also, einfach mal anrufen und losschnacken:
Werner Fett - der Mann, der’ s möglich macht!
Tel.: +49 1520 4950520
Lage
Moin, Bauherren in spe!
Im Baugebiet Klosterweg in Schortens warten 57 Grundstücke auf neue Ideen, frischen Wind und Menschen, die sich ihren Wohntraum erfüllen wollen.
Hier stimmt die Lage: eingebettet wie’ n Kutter im Hafen - ruhig, harmonisch und trotzdem mittendrin. Ob Sie’ s lieber modern mögen oder klassisch wie Omas Friesenhaus: Hier können Sie bauen, wie’ s Ihnen passt.
Die Grundstücke gibt’ s in Größen von ca. 550 bis 1.000 m² - also von "kuschelig-kompakt" bis "genug Platz für Fußballtor, Strandkorb und Schwiegermutters Lieblingsrosenbeet".
________________________________________
Und nu das Wichtigste:
Für Fragen, Klönschnack oder die ersten Pläne zu Ihrem Traumhaus:
Werner Fett - STREIF-Bauberatung
Tel.: +49 1520 4950520
Kompetent, supernett und norddeutsch geradeaus.
Einer, der nicht lange schnackt, sondern macht!
Sonstige Angaben
Wichtig, damit keiner sagt, er hätt’ s nicht gewusst:
Das Baugrundstück steckt nicht im oben genannten Kaufpreis. Das kaufen Sie direkt bei der LzO - die haben die Fläche, wir haben das Haus.
Unser Angebot richtet sich also an alle Baufamilien und Bauherren, die schon ’n Stück Land unterm Spaten haben - oder sich eins gesichert haben.
Erst Grund, dann Haus - so läuft das.
Grundriss
90808-7800-17-g
>
>
90810-7800-16-g
>
>
Adresse
26419 Schortens
Interessante Orte
Preis- und Lageinformationen
Preistrend für Bestandsimmobilien in Schortens