Dieses charmante Einfamilienhaus auf einem 444 m² großen Grundstück in zentraler Lage von Dreieich-Sprendlingen überzeugt durch seinen großzügigen Grundriss und vielseitige Nutzungsmöglichkeiten. Auf einer Wohnfläche von ca. 133 m² bietet das Haus insgesamt 7 Zimmer, verteilt auf zwei Etagen. Das im Jahr 1941 erbaute Haus wurde 1971 aufgestockt und umfassend saniert. Das Haus befindet sich in einem gepflegten Zustand, bietet aber Raum für individuelle Modernisierungen – ideal für Familien, Mehrgenerationenhaushalte oder Käufer mit dem Wunsch zur teilweisen Vermietung.
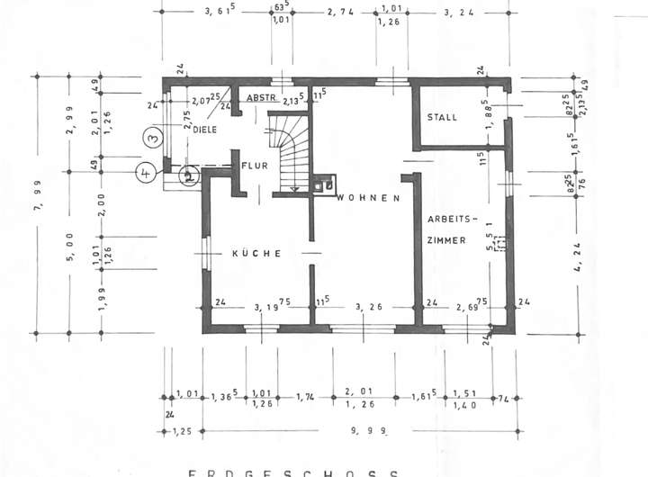
Im Erdgeschoss befinden sich ein großzügiger heller Eingangsbereich, ein Gäste-WC, eine offene Küche mit Essbereich, ein weitläufiges und helles Wohnzimmer sowie ein weiteres Zimmer, das sich ideal als Arbeits- oder Gästezimmer eignet.
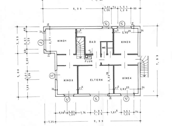
Im Obergeschoss erwarten Sie fünf Schlafzimmer, ein großes Badezimmer mit komfortabler Eckbadewanne, ein separates WC sowie ein separater Duschraum. Ein Teil des Obergeschosses kann als eigenständiger Bereich mit eigenem Zugang abgetrennt werden und eignet sich hervorragend zur Vermietung oder als Einliegerwohnung.
Der Keller umfasst einen Heizungsraum sowie einen großen, flexibel nutzbaren Raum, z. B. als Hobbyraum oder Lagerfläche.
Zum Haus gehören außerdem ein von außen zugänglicher Lagerraum, ein angelegter Garten, eine Garage, ein Carport sowie eine Einfahrt mit ausreichend Parkmöglichkeiten.
Großzügiges 7-Zimmer-Einfamilienhaus mit Garten in Dreieich-Sprendlingen auf einem 444 m² Grundstück
63303 Dreieich
Die vollständige Adresse der Immobilie erhalten Sie vom Anbieter.
Auf Karte anzeigen
Die vollständige Adresse der Immobilie erhalten Sie vom Anbieter.
Finanzierungszertifikat
In nur zwei Minuten zu Ihrem persönlichen Finanzierungszertifkat.
Infos
| Haustyp | Einfamilienhaus |
|---|---|
| Etagenzahl | 2 |
| Wohnfläche ca. | 132 m2 |
| Nutzfläche | 143 m2 |
| Grundstücksfläche | 444 m2 |
| Bezugsfrei ab | 15.9.2025 |
| Zimmer | 7 |
| Schlafzimmer | 6 |
| Badezimmer | 2 |
| Garage/Stellplatz | Garage |
| Anzahl Garage/Stellplatz | 1 |
Kosten
| Kaufpreis |
560.000 € |
|---|---|
| Provision | Nein |
Finanzierungsrechner:
Kaufpreis:
600.000 €
Eigenkapital:
600.000 €
Monatliche Rate
0 €
Effektiver Jahreszins
0 %
Sollzinsbindung
10 Jahre
Bausubstanz & Energieausweis
| Baujahr | 1941 |
|---|---|
| Letzte Sanierung | 1971 |
| Bauphase | Haus fertig gestellt |
| Objektzustand | Gepflegt |
| Qualität der Austattung | Normal |
| Heizungsart | Öl-Heizung |
| Wesentliche Energieträger | Öl |
| Energieausweis | liegt vor |
| Energieausweistyp | Bedarfsausweis |
| Energieverbrauchskennwert | 442,0 kWh/(m²*a) |
| Energieeffizienzklasse | H |
442,0
kWh/(m²*a)
Energieeffizienzklasse H
- A+
- A
- B
- C
- D
- E
- F
- G
- H
- 0
- 25
- 50
- 75
- 100
- 125
- 150
- 175
- 200
- 225
- >250
Beschreibung des Objekts
Lage
Das Haus befindet sich in einer ruhigen und dennoch zentralen Lage in einer gewachsenen Wohngegend von Dreieich-Sprendlingen. Einkaufsmöglichkeiten, Schulen, Kitas sowie öffentliche Verkehrsmittel sind bequem zu Fuß erreichbar. Die Anbindung an die Städte Frankfurt, Offenbach und Darmstadt ist hervorragend, was die Lage besonders attraktiv für Pendler und Familien macht. Gleichzeitig bietet die Umgebung viele Freizeitmöglichkeiten und eine gute Lebensqualität durch die Nähe zur Natur.
Sonstige Angaben
Die Immobilie ist nach Absprache ab sofort verfügbar. Ein Energieausweis liegt vor. Durch die flexible Raumaufteilung und den separaten Wohnbereich im Obergeschoss eignet sich das Haus sowohl zur Eigennutzung mit viel Platzbedarf als auch zur teilweisen Vermietung.
Bei Interesse freuen wir uns über Ihre Nachricht über das Kontaktformular. Gerne stellen wir Ihnen weitere Informationen zur Verfügung oder vereinbaren einen Besichtigungstermin.
Grundriss
Grundriss Erdgeschoss
>
>
Grundriss Obergeschoss
>
>
Adresse
63303 Dreieich
Interessante Orte
Preis- und Lageinformationen
Preistrend für Bestandsimmobilien in Dreieich