Makleranfragen nicht erwünscht
Privatverkauf ohne Provisionskosten
Zu verkaufen ist eine Doppelhaushälfte, geringe Energiekosten – ein Viebrock Niedrigenergiehaus (Nachweis vorhanden), Baujahr 1998, sofort bezugsfertig, provisionsfrei.
Ruhige Privatstraße, Top-Lage: 15 Min zu Fuß bis Harburg Bahnhof und Harburger Innenstadt, 5
Min bis zum Außenmühlenteich und MidSommerland.
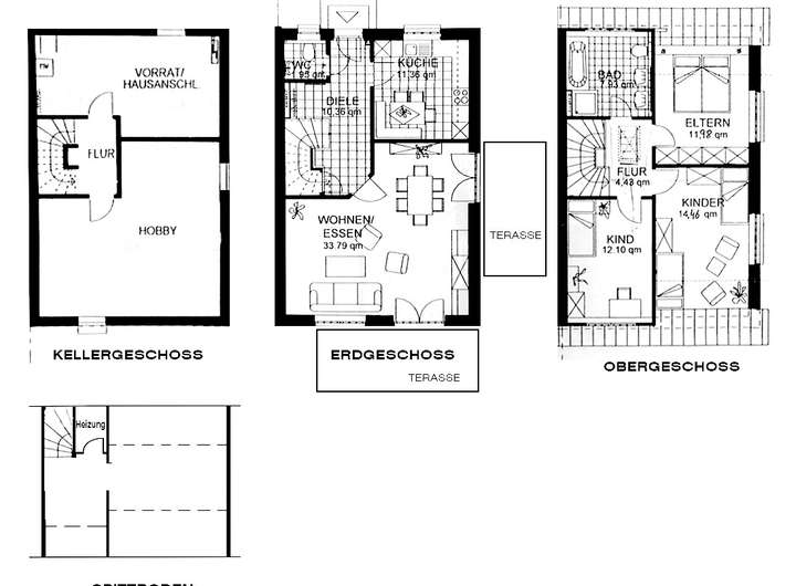
Das Haus ist gemütlich, hell, kompakt und trotzdem sehr großzügig mit 128 m² Wohnfläche. Es
bietet 4 Ebenen (inkl. Vollkeller & ausgebautem Dachboden) für Wohnen, Arbeiten (Home
Office), Hobby und Erholung.
Der Garten ist durch eine grüne Hecke abgeschirmt, mit großem Carport, Gartenhaus, jungen
Obstbäumen sowie zwei Terrassen (eine mit Glasüberdachung).
Das Haus wurde 2024 innen und außen modernisiert (Innenwände gestrichen, neue Beleuchtung, erneuerte Trennwand, modernisierte Außenjalousien). Ein Glasfaseranschluss
wurde 2025 verlegt. Die Heizung wurde 2020 erneuert.
Provisionsfrei, Doppelhaus, Top-Lage, Hamburg-Harburg (Wilstorf)
21077 Hamburg
Die vollständige Adresse der Immobilie erhalten Sie vom Anbieter.
Auf Karte anzeigen
Die vollständige Adresse der Immobilie erhalten Sie vom Anbieter.
Finanzierungszertifikat
In nur zwei Minuten zu Ihrem persönlichen Finanzierungszertifkat.
Infos
| Haustyp | Doppelhaushaelfte |
|---|---|
| Etagenzahl | 4 |
| Wohnfläche ca. | 128 m2 |
| Nutzfläche | 128 m2 |
| Grundstücksfläche | 330 m2 |
| Bezugsfrei ab | 13.9.2025 |
| Zimmer | 5 |
| Schlafzimmer | 1 |
| Badezimmer | 1 |
Kosten
| Kaufpreis |
655.000 € |
|---|---|
| Provision | Nein |
Finanzierungsrechner:
Kaufpreis:
600.000 €
Eigenkapital:
600.000 €
Monatliche Rate
0 €
Effektiver Jahreszins
0 %
Sollzinsbindung
10 Jahre
Bausubstanz & Energieausweis
| Bauphase | Haus fertig gestellt |
|---|---|
| Objektzustand | Gepflegt |
| Qualität der Austattung | Normal |
| Heizungsart | Gas-Heizung |
| Wesentliche Energieträger | Gas |
| Energieausweis | liegt vor |
Beschreibung des Objekts
Ausstattung
Fußbodenheizung im Bad
Lage
Das Objekt befindet sich in belebter Wohnlage in Hamburg Wilstorf. Mehrere Buslinien und Bahnlinien sind fußläufig zu erreichen. In Laufnähe gibt es ein paar Restaurants, Bäckereien, Ärzte, Cafés und ein Einkaufszentrum. Einige Modegeschäfte, Bars, Fitnessstudios, Grün- und Parkanlagen und zwei Buchhandlungen finden Sie ebenfalls vor Ort.
Adresse
21077 Hamburg
Interessante Orte
Preis- und Lageinformationen
Preistrend für Bestandsimmobilien in Wilstorf