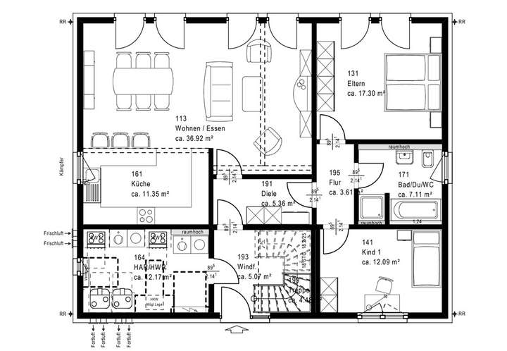
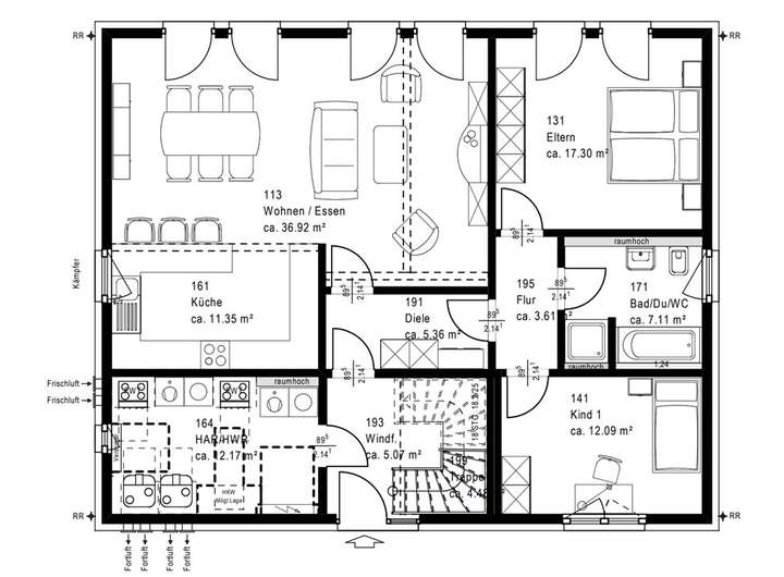
Ob als Generationenhaus, Zwei-Familienhaus oder andere Wohnkonstellation: Hier lässt sich Wohnraum in Form von zwei Wohneinheiten flexibel nutzen. Otto’s Beste 9 überzeugt durch zeitloses Design und durchdachte Grundrissgestaltung. Der großzügige Wohn-Ess-Bereich mit angeschlossener Küche punktet durch eine offen gehaltene Raumaufteilung sowie durch die bodentiefen Fenster, die viel natürliches Licht in die Räume lassen und so eine helle Atmosphäre schaffen. Weiterhin befinden sich auf den rund 112 m² Wohnfläche des Erdgeschosses zwei flexibel nutzbare Schlafzimmer, zwischen das denen geräumige Bad mit Wanne, Dusche und WC direkt erreichbar ist. Über den Eingangsbereich können der Hauswirtschaftsraum sowie die Treppe zur zweiten Wohneinheit im Dachgeschoss (Wohnfläche ca. 85 m²) erreicht werden. Auch hier bietet der Wohn-Ess-Bereich ausreichend Platz zum Verweilen und die großen Fensterfronten einen herrlichen Blick ins Freie. Die große Wohnfläche bietet zudem ein geräumiges Schlaf- und Kinderzimmer sowie ein großes Bad.
Mehrgenerationen Wohnen mit viel Freiraum
63075 Offenbach am Main
Die vollständige Adresse der Immobilie erhalten Sie vom Anbieter.
Auf Karte anzeigen
Die vollständige Adresse der Immobilie erhalten Sie vom Anbieter.
Finanzierungszertifikat
In nur zwei Minuten zu Ihrem persönlichen Finanzierungszertifkat.
Infos
| Haustyp | Mehrfamilienhaus |
|---|---|
| Etagenzahl | 2 |
| Wohnfläche ca. | 196 m2 |
| Nutzfläche | 16 m2 |
| Grundstücksfläche | 458 m2 |
| Bezugsfrei ab | 2026 |
| Zimmer | 8 |
| Schlafzimmer | 4 |
| Badezimmer | 2 |
Kosten
| Kaufpreis |
959.990 € |
|---|---|
| Provision | Nein |
Finanzierungsrechner:
Kaufpreis:
600.000 €
Eigenkapital:
600.000 €
Monatliche Rate
0 €
Effektiver Jahreszins
0 %
Sollzinsbindung
10 Jahre
Bausubstanz & Energieausweis
| Baujahr | unbekannt |
|---|---|
| Bauphase | Haus in Planung (projektiert) |
| Qualität der Austattung | Gehoben |
| Heizungsart | Wärmepumpe |
| Wesentliche Energieträger | Strom |
| Energieausweis | liegt vor |
| Energieausweistyp | Bedarfsausweis |
| Energieverbrauchskennwert | 25,0 kWh/(m²*a) |
| Energieeffizienzklasse | A+ |
25,0
kWh/(m²*a)
Energieeffizienzklasse A+
- A+
- A
- B
- C
- D
- E
- F
- G
- H
- 0
- 25
- 50
- 75
- 100
- 125
- 150
- 175
- 200
- 225
- >250
Beschreibung des Objekts
Ausstattung
z.B. als Ausbaustufe "malervorbereitet" mit Bodenplatte
im unserem OKAL-Hauspreis enthalten sind:
+ KfW Energieeffizienzhaus 55
+ umfangreiche Architektenleistung
+ Energieausweis für Neubauten
+ Bodenplatte inklusive Bodengutachten
+ Lüftungsheizung (Wärmepumpe) PROXON
+ kontrollierte Be- / Entlüftung mit Wärmerückgewinnung
+ Dimension 2,80
- mehr Raumhöhe (ca. 2,80 m)
- höhere Fenster
- höhere Aussen- und Innentüren
+ Elektrische Aluminiumrollläden
mit Somfy Steuerung
+ Folierte Fenster und Türen
+ Zertifizierte Nachhaltigkeit
+ Festpreisgarantie 22 Monate
+ Alles aus einer Hand
Grundstückpreis (Preis ist einkalkuliert, jedoch können Sie über mich z.Z. nicht direkt das Grundstück erwerben!)
OKAL bietet Ihnen aber auch einen kostenfreien Grundstückservice an bzw. unterstützt Sie aktiv bei der Grundstücksuche.
Lage
Offenbach Main
Sonstige Angaben
Kontaktieren Sie mich um von unserer aktuellen Aktion zu profitieren.
Sie können das Grundstück provisionsfrei erwerben!
Die in diesem Inserat enthaltenen Bilder und Grundrisse stellen Muster da, die von der späteren Ausführung Ihres Hauses abweichen können, da jedes OKAL-Haus individuell für Sie geplant und ausgestattet wird.
Weitere Dokumente
Prospekt_neue_ErstinformationOKAL Ausbaustufe Sommer 2021
Grundriss
09_Grundriss EG
>
>
09_Grundriss DG
>
>
Adresse
63075 Offenbach am Main
Interessante Orte
Preis- und Lageinformationen
Preistrend für Bestandsimmobilien in Bürgel