Mit unserem einzigartigen NEUBAUPROJEKT KfW KFN-40 Effizienzhaus in ruhiger und gesuchter Wohnlage von Rodgau unweit von Frankfurt am Main entfernt, entsteht für Sie und Ihre Familie eine MODERNE Doppelhaushälfte -HAUS 1- im zeitgemäßen Baustil mit südlicher Ausrichtung, Gaube mit Flachdach, großer Terrasse und schönem Garten – einfach zum Wohlfühlen.
Das Leistungspaket umfasst bereits in der Grundausstattung eine Luft-Wasser Wärmepumpe mit Kühlung im Sommer, Gäste –WC mit bodentiefer Dusche im EG, 2 Tageslichtbäder mit bodentiefen Duschen und einer Wanne im OG, Fenster mit 3-fach Verglasung, Malerarbeiten sowie Bodenbeläge nach Wunsch, elektrische Rollläden, Fußbodenheizung, Photovoltaikanlage, Terrasse, 2 PKW - Stellplätze zu je 8.000€ und vieles mehr siehe Ausstattungsmerkmale.
Haus 1 mit ca.142,49 qm Wohnfläche, 402 qm Grund, Preis € 879.000,-
Haus 2 mit ca.167,39 qm Wohnfläche, 402 qm Grund, Preis € 986.000,-
Die zwei modernen Doppelhaushälften werden von einem unserer sehr erfahrenen und bonitätsstarken Bauträgerpartnern errichtet - Erstellungsziel ca. Q1 /2027. Hier wird hochwertig mit Markenprodukten gearbeitet. Änderungswünschen sind in der Raumaufteilung (nicht tragende Wände) noch möglich.
Der Projektierer mit Erfahrung - Der Bauträger mit Substanz - Der Makler mit Nachhaltigkeit -
Sie haben Interesse an einem neuen Familiendomizil – dann rufen Sie einfach unser freundliches Team von PREISS-IMMOBILIEN an. Wir freuen uns auf Ihren Anruf.
Top moderne KfW 40 NH DHH mit Terrasse und großem Garten in guter Lage von Rodgau!
63110 Rodgau
Die vollständige Adresse der Immobilie erhalten Sie vom Anbieter.
Auf Karte anzeigen
Die vollständige Adresse der Immobilie erhalten Sie vom Anbieter.
Finanzierungszertifikat
In nur zwei Minuten zu Ihrem persönlichen Finanzierungszertifkat.
Infos
| Haustyp | Doppelhaushaelfte |
|---|---|
| Etagenzahl | 3 |
| Wohnfläche ca. | 142 m2 |
| Nutzfläche | 42,4 m2 |
| Grundstücksfläche | 402 m2 |
| Bezugsfrei ab | Q1/2027 |
| Zimmer | 5,5 |
| Schlafzimmer | 4 |
| Badezimmer | 2 |
| Garage/Stellplatz | Außenstellplatz |
| Anzahl Garage/Stellplatz | 2 |
Kosten
| Kaufpreis |
879.000 € |
|---|---|
| Preis für Garage/Stellplatz | 8.000 € |
| Provision |
2,975% des Kaufpreises inkl. MwSt. Nach Vertragsabschluss hat der Käufer an Preiss Immobilien die Provision in Höhe von 2,975% des Kaufpreises inkl. der gesetzlichen Mehrwertsteuer zu zahlen. Mit dem Verkäufer wurde gem. § 656c BGB die Maklerprovision in identischer Höhe wie die Käufer-Maklerprovision vereinbart. |
Finanzierungsrechner:
Kaufpreis:
600.000 €
Eigenkapital:
600.000 €
Monatliche Rate
0 €
Effektiver Jahreszins
0 %
Sollzinsbindung
10 Jahre
Bausubstanz & Energieausweis
| Baujahr | 2027 |
|---|---|
| Qualität der Austattung | Gehoben |
| Heizungsart | Fußbodenheizung |
| Wesentliche Energieträger | Strom |
| Energieausweis | liegt vor |
| Energieausweistyp | Bedarfsausweis |
| Energieverbrauchskennwert | 20,0 kWh/(m²*a) |
| Energieeffizienzklasse | A+ |
20,0
kWh/(m²*a)
Energieeffizienzklasse A+
- A+
- A
- B
- C
- D
- E
- F
- G
- H
- 0
- 25
- 50
- 75
- 100
- 125
- 150
- 175
- 200
- 225
- >250
Beschreibung des Objekts
Ausstattung
- KfW KFN-40 Effizienzhaus, KfW förderfähig
- Luft - Wasser - Wärmepumpe und Fußbodenheizung mit Kühlung in den
Sommermonaten und warme Füße im Winter
- Photovoltaikanlage plus Batteriespeicher
- Lüftungsanlage
- Zellulose / Holzfaser-Dachdämmung
- Fenster mit 3-fach Verglasung
- Markenausstattung für Elektro- und Sanitär
- Multimedia in allen Zimmern
- Bodenbeläge nach Wunsch
- Malerarbeiten
- Terrasse
- Fahrradabstellplätze
- 2 PKW - Stellplätze zu je 8.000€
- Energiebedarf der Gebäude:
Endenergiebedarf: ca. 20 kWh / (m²a)
Primärenergiebedarf: ca. 10 kWh / (m²a)
Energieeffizienzklasse A+
Lage
Rodgau ist die einwohnerstärkste Stadt im Landkreis Offenbach in Hessen und liegt südöstlich von Offenbach am Main im Rhein-Main-Gebiet. Rodgau besteht aus den Stadtteilen Weiskirchen, Hainhausen, Jügesheim, Dudenhofen und Nieder-Roden mit dem zugehörigen Ortsteil Rollwald. Alle Rodgauer Stadtteile sind durch die Verlängerung der S-Bahn-Strecke S1 von Wiesbaden nach Ober-Roden an das weitreichende Netz der S-Bahn Rhein-Main angeschlossen. Die S-Bahn ist vom Haus aus in nur ca.10 Minuten fußläufig zu erreichen. Mit dem Bus ist man ebenfalls flexibel. Die gute Autobahnanbindung ermöglicht Frankfurt und den Frankfurter Flughafen zeitnah zu erreichen. Familien können sich auf die ausgezeichnete Infrastruktur mit Kindergärten und Schulen (Grundschule bis Gymnasium) freuen sowie die vielen Angebot für Kultur und Sport nutzen. Zusammen mit dem Rodgauer Strandbad ist für die Freizeitgestaltung für jeden etwas dabei. www.rodgau.de
Sonstige Angaben
Für die sorgfältig zusammengetragenen Angaben können wir trotz ständiger Prüfung auf Richtigkeit und Vollständigkeit keine Gewähr geben, da wir uns hierbei auf die Informationen der Verkäufer und Dritter verlassen müssen. Diese Informationen werden hiermit nur dem Empfänger zugetragen, der bei unerlaubter Weitergabe an Dritte für die Provision haftet. Diese Angebot ist freibleibend unter Vorbehalt eines Zwischenverkaufs. Nach Vertragsabschluss hat der Käufer an Preiss Immobilien die Provision in Höhe von 2,975% des Kaufpreises inkl. der gesetzlichen Mehrwertsteuer zu zahlen. Mit dem Verkäufer wurde gem. § 656c BGB die Maklerprovision in identischer Höhe wie die Käufer-Maklerprovision vereinbart.
PREISS IMMOBILIEN
Ihr kompetenter Partner für
den Verkauf und die Werteinschätzung
Ihrer Immobilie im Rhein-Main-Gebiet und Raum Wiesbaden.
Wir freuen uns auf Ihren Anruf.
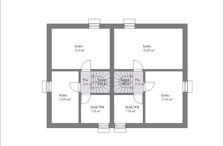
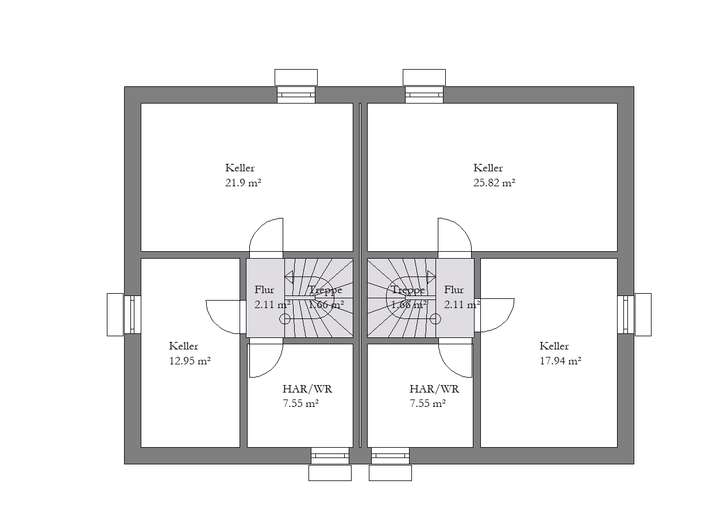
Grundriss
PrI 9312 Grundriss EG H1
>
>
PrI 9312 Grundriss OG H1
>
>
PrI 9312 Grundriss DG H1
>
>
PrI 9312 Grundriss KG H1
>
>
Adresse
63110 Rodgau
Interessante Orte
Preis- und Lageinformationen
Preistrend für Bestandsimmobilien in Rodgau