Das ruhig gelegene Reihenmittelhaus in zweiter Reihe aus 1962 befindet sich in einer ruhigen Umgebung. Es wurde in massiver Bauweise auf einem 138,00 m² Grundstück errichtet.
Das Haus eignet sich perfekt für eine Familie, die urban aber ruhig und mit guter Anbindung an die U-Bahn zur Hamburger Innenstadt wohnen möchte.
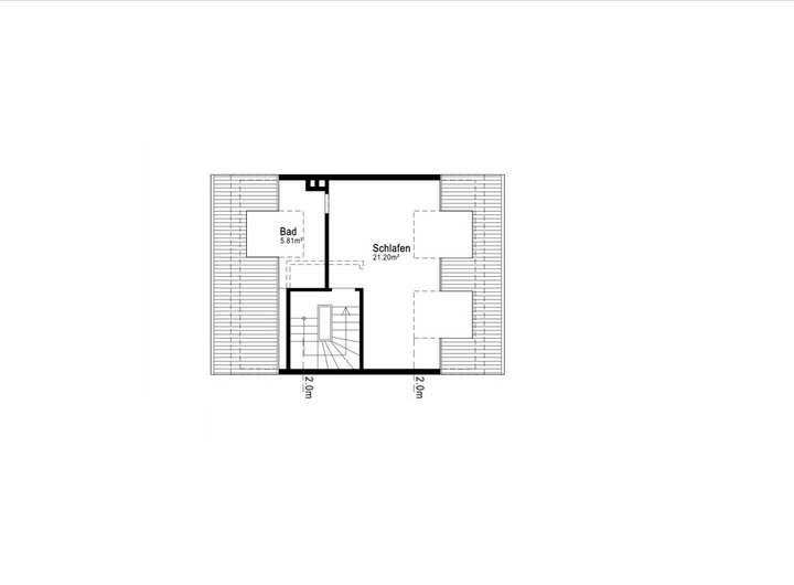
Die Immobilie verfügt über 5 Wohnräume, ein Gäste-WC im Erdgeschoss, ein weiß gefliestes Duschbad im Obergeschoss und ein modernes Wannenbad mit WC im Dachgeschoss. Der schöne Wohnbereich mit Platz für einen Esstisch wird durch die große Fensterfront lichtdurchflutet und bietet Zugang zur Terrasse und zum Garten, der nach Südwesten ausgerichtet ist. Das Dachgeschoss erreichen Sie über eine feste Treppe. Hier befindet sich ein großzügiger Raum und auch ein weiteres Bad mit Wanne. Der Keller ist teilweise beheizt und gefliest. Von außen gibt es einen Kelleraufgang zum Garten. Das Haus wurde in den letzten Jahren teilweise saniert und befindet sich in einem gepflegten Zustand. Die Gaszentralheizung wurde 2019 erneuert. Die Bäder wurden in den letzten Jahren umfangreich saniert und befinden sich in einem modernen Zustand.
Zusammen mit dem Haus wird eine Garage verkauft, die im Kaufpreis enthalten ist.
Anschauen lohnt sich! Vereinbaren Sie noch heute einen Besichtigungstermin und überzeugen Sie sich selbst!
Gepflegtes Haus mit Garage - 600 m zur U2
22117 Hamburg
Die vollständige Adresse der Immobilie erhalten Sie vom Anbieter.
Auf Karte anzeigen
Die vollständige Adresse der Immobilie erhalten Sie vom Anbieter.
Finanzierungszertifikat
In nur zwei Minuten zu Ihrem persönlichen Finanzierungszertifkat.
Infos
| Haustyp | Einfamilienhaus |
|---|---|
| Wohnfläche ca. | 108 m2 |
| Grundstücksfläche | 138 m2 |
| Zimmer | 5 |
Kosten
| Kaufpreis |
423.000 € |
|---|---|
| Provision |
3,57 % inkl. MwSt. |
Finanzierungsrechner:
Kaufpreis:
600.000 €
Eigenkapital:
600.000 €
Monatliche Rate
0 €
Effektiver Jahreszins
0 %
Sollzinsbindung
10 Jahre
Bausubstanz & Energieausweis
| Baujahr | 1962 |
|---|---|
| Heizungsart | Gas-Heizung |
| Wesentliche Energieträger | Gas |
| Energieausweis | liegt vor |
| Energieausweistyp | Bedarfsausweis |
| Energieverbrauchskennwert | 158,0 kWh/(m²*a) |
| Energieeffizienzklasse | E |
158,0
kWh/(m²*a)
Energieeffizienzklasse E
- A+
- A
- B
- C
- D
- E
- F
- G
- H
- 0
- 25
- 50
- 75
- 100
- 125
- 150
- 175
- 200
- 225
- >250
Beschreibung des Objekts
Ausstattung
Fenster:
Kunststofffenster teilweise aus ca. 1980, Kunststoffenster im Bad und im Arbeitszimmer aus 2019
Heizung und Warmwasser:
Gaszentralheizung (Brennwerttechnik) mit Warmwassererwärmung aus 2019
Bodenbeläge:
Parkett im Wohnzimmer und im Dachgeschoss, Laminat in den Wohnräumen im Obergeschoss, Fliesen in der Küche und im Flur
Küche:
helle, ältere Einbauküche mit allen elektrischen Geräten, Herd aus 2023
Bäder:
Gäste-Bad weiß gefliest, Duschbad im Obergeschoss, Wannenbad im Dachgeschoss, saniert ca. 2019
Modernisierungen:
Austausch der Gasbrennwerttherme und Erneuerung sowie Dämmung der Leitungen 2019
Sanierung der Bäder ca. 2019
Teilerneuerung der Elektrik ca. 2019
Fenster im Bad und im Arbeitszimmer aus ca. 2019
Dämmung der Kellerwände von Außen
Besonderheiten:
Vollkeller, ausgebauter Dachboden, Garage
Lage
Die Immobilie befindet sich im beliebten Stadtteil Öjendorf. Dieser liegt im Nordosten Hamburgs. Er zählt mit seinen zahlreichen Naherholungsgebieten und Grünflächen zu einem begehrten Wohnumfeld. In fußläufiger Entfernung befindet sich das Naturschutzgebiet Öjendorfer Park mit dem Öjendorfer See als Herzstück.
Bei ausgedehnten Spaziergängen und Wanderungen durch den Park kann man wunderbar relaxen.
Die Lage ist für Familien ideal. Eine Grundschule ist in fußläufiger Entfernung (160 m). Auch Kitas und weiterführende Schulen sind gut mit dem Fahhard erreichbar.
Sämtliche Geschäfte des täglichen Bedarfs, Restaurants, Cafés, Bistros und Bäckereien sind in ca. 7 Minuten zu Fuß vom Haus erreichbar. Das Billstedt Center mit weiteren zahlreichen Geschäften, Arztpraxen und Banken befindet sich in ca. 3 km Entfernung.
Die HVV-Anbindung ist z. B. über die U-Bahn Steinfurther Allee gegeben, die sich in ca. 600 m Entfernung befindet. Somit kann man die Hamburger Innenstadt bequem innerhalb von 15 Minuten erreichen.
Sonstige Angaben
Die Courtage in Höhe von 3,57 % inkl. der gesetzl. gültigen MwSt. ist vom Käufer an die Sparda Immobilien GmbH zu zahlen.
Weitere attraktive Angebote finden Sie auch auf www.spardaimmobilien.de
Grundriss
Keller
>
>
Erdgeschoss
>
>
Obergeschoss
>
>
Dachgeschoss
>
>
Adresse
22117 Hamburg
Interessante Orte
Preis- und Lageinformationen
Preistrend für Bestandsimmobilien in Billstedt