Dieses im Jahr 1956 errichtete Einfamilienhaus befindet sich auf einem großzügigen Grundstück von ca. 1.190 m² und bietet mit rund 115 m² Wohnfläche vielfältige Möglichkeiten zur individuellen Gestaltung.
Die Immobilie wurde bis Mitte August bewohnt. Eine Renovierung und Anpassung an moderne Bedürfnisse ist erforderlich. Die Immobilie eignet sich ideal für handwerklich versierte Käufer, die ihre eigenen Vorstellungen bei der Modernisierung umsetzen möchten.
Aus Gründen des Hochwasserschutzes wird die rot schraffierte Grundstücksfläche (Flurstück 5360-1) von der Freien und Hansestadt Hamburg erworben.
Der liebevoll gestaltete Vorgarten sowie die gepflasterte Zufahrt mit Zugang zur Doppelgarage vermitteln bereits beim Betreten des Grundstücks einen einladenden Eindruck.
Im Erdgeschoss erwartet Sie ein heller und großzügiger Eingangsbereich, von dem Sie das Wannenbad mit Fenster, die geräumige Küche mit angrenzendem Vorratsraum, ein Schlafzimmer, den Keller sowie den Wohn- und Essbereich erreichen.
Von hier aus gelangen Sie auf die sonnige, nach Südwesten ausgerichtete Terrasse mit Zugang in den weitläufigen Garten.
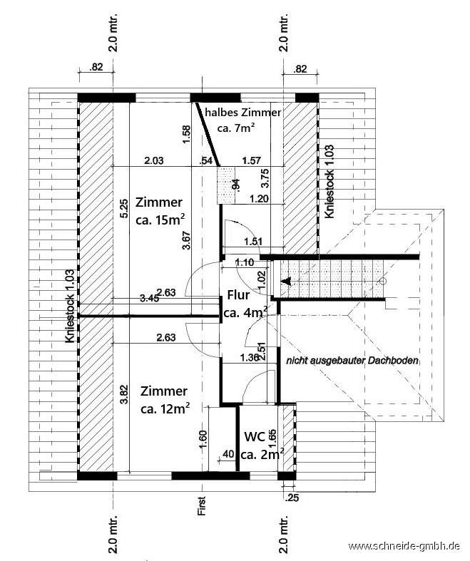
Das Dachgeschoss beherbergt drei Zimmer sowie einen unausgebauten Dachbodenraum. Das vorhandene WC lässt sich in Kombination mit dem angrenzenden unausgebauten Dachbodenraum zu einem Vollbad umbauen.
Über eine ausklappbare Dachbodenleiter erreichen Sie vom Flur aus den Spitzboden, der zusätzlichen Stauraum bietet.
Abgerundet wird dieses Angebot durch eine Doppelgarage, die Platz für zwei PKW sowie Fahrräder und Gartengeräte bereithält.
Ein besonderes Highlight ist die Lage: Nur einen Steinwurf vom Elbdeich entfernt genießen Sie hier die weiten Blicke über den Deich direkt vor der Haustür.
So vereint dieses Haus in Hamburg-Kirchwerder ländliche Idylle mit unmittelbarer Nähe zur Natur und bietet Ihnen die einmalige Gelegenheit, sich Ihren persönlichen Wohntraum zu verwirklichen.
Einfamilienhaus inkl. Doppelgarage mit Elbblick!
21037 Hamburg
Die vollständige Adresse der Immobilie erhalten Sie vom Anbieter.
Auf Karte anzeigen
Die vollständige Adresse der Immobilie erhalten Sie vom Anbieter.
Finanzierungszertifikat
In nur zwei Minuten zu Ihrem persönlichen Finanzierungszertifkat.
Infos
| Haustyp | Einfamilienhaus |
|---|---|
| Wohnfläche ca. | 115 m2 |
| Nutzfläche | 70 m2 |
| Grundstücksfläche | 1.190 m2 |
| Bezugsfrei ab | nach Absprache |
| Zimmer | 4,5 |
| Schlafzimmer | 3 |
| Badezimmer | 1 |
| Garage/Stellplatz | Garage |
| Anzahl Garage/Stellplatz | 2 |
Kosten
| Kaufpreis |
375.000 € |
|---|---|
| Provision |
3,57 % des Kaufpreises inkl. 19 % USt. |
Finanzierungsrechner:
Kaufpreis:
600.000 €
Eigenkapital:
600.000 €
Monatliche Rate
0 €
Effektiver Jahreszins
0 %
Sollzinsbindung
10 Jahre
Bausubstanz & Energieausweis
| Baujahr | 1956 |
|---|---|
| Heizungsart | Zentralheizung |
| Wesentliche Energieträger | Öl |
| Energieausweis | liegt vor |
| Energieausweistyp | Bedarfsausweis |
| Energieverbrauchskennwert | 508,9 kWh/(m²*a) |
| Energieeffizienzklasse | H |
508,9
kWh/(m²*a)
Energieeffizienzklasse H
- A+
- A
- B
- C
- D
- E
- F
- G
- H
- 0
- 25
- 50
- 75
- 100
- 125
- 150
- 175
- 200
- 225
- >250
Beschreibung des Objekts
Ausstattung
Baustoffe, usw.:
• Massive Bauart (doppeltes Mauerwerk mit Luftschicht)
• Rotsteinverblend
• Satteldach mit Tonpfannen
• Stahlträger- sowie Betondecke (KG/EG) , Holzbalkendecke (EG/DG)
• Fallrohre und Dachrinnen aus Zink
• Reste von Bleileitungen können nicht ausgeschlossen werden
Fenster/Tür/Treppe/Bodenbeläge:
• Kunststofffenster, im Keller in Metall gefasste Fenster
• Elektrische Außenrollläden im Wohnzimmer
• Kunststoff-/Metalltür mit Lichtausschnitt
• Holzinnentüren /- zargen
• Holztreppe mit Holzhandlauf
• Bodenbeläge: Fliesen, Parkett und Laminat
Sanitärobjekte:
Wannenbad (Erdgeschoss):
• Bodenfliesen (hellgrau)
• WC mit Spülkasten
• Sanitärobjekte in weiß
• Badewanne
• Elektrischer Boiler (optional)
WC (Dachgeschoss):
• Wand- und Bodenfliesen (rosa)
• WC mit Spülkasten
• Sanitärobjekte in weiß
• Durchlauferhitzer
Heizungsanlage:
• Ölheizung (Bj. 1988), 4.000l Tank, Brenner (Bj. 1995)
• Platten- und Rippenheizkörper
Garage:
• Massive Bauweise
• Eternitplatten auf dem Dach
Sonstiges:
• Ein Leerrohr für Glasfaser wurde bereits unter der Erde verlegt.
Lage
Das geräumige Einfamilienhaus befindet sich in Hamburg-Kirchwerder, der größte Stadtteil des charakteristischen Elbmarsch-Gebietes der Vierlande.
Jegliche Einkäufe des täglichen Bedarfs (Edeka, Aldi, Lidl, Rewe, dm-Markt, Apotheke) lassen sich in unweiter Nähe erledigen. Für weitere Besorgungen ist auch das ca. 12 km entfernte Zentrum von Bergedorf (obgleich mit dem Auto, dem Fahrrad oder dem Bus) erreichbar. Die längste Fußgängerzone Hamburgs lädt dort mit ihren Boutiquen, Cafés und Restaurants zum Bummeln und Verweilen ein. Ebenfalls befinden sich in Bergedorf diverse Ärzte sowie zwei Krankenhäuser mit gutem Renommee.
Die Hamburger Innenstadt lässt sich mit dem PKW in ca. 30 Minuten erreichen oder über die S-Bahn Bergedorf mit einer Anbindung nach Hamburg im 10-Minuten-Takt.
Die Bushaltestelle "Warwischer Hinterdeich" mit den Linien 120, 223, 320 und 322 ist in nur 4 Minuten fußläufig vom Objekt entfernt. Mit diesen Bussen gelangt man sowohl nach Bergedorf und in die Hamburger Innenstadt (Hamburger ZOB).
Der Badestrand vom Hohendeicher See ist in nur 20 Gehminuten erreichbar oder in 5 Minuten mit dem Fahrrad.
Edeka, Bäcker usw. sind 3 km entfernt in Fünfhausen, ein Rewe, DM, Apotheke sind 5 km entfernt.
In Kirchwerder, Fünfhausen, Curslack/Neuengamme sowie Altengamme sind diverse Grundschulen und Kindergärten/KiTas ansässig. Alle weiterführenden Schulen befinden sich in Kirchwerder (Stadtteilschule) sowie Bergedorf (jegliche Schulformen).
Sonstige Angaben
• Die Straße Warwischer Hauptdeich ist nicht noch endgültig hergestellt worden. Der Anschluss an die öffentliche Versorgung für Strom, Wasser (Anschluss aus 2022) und Telefon ist vorhanden.
• Die Front Warwischer Hauptdeich ist unbesiedelt. Derzeit wird das Abwasser über eine private Abwassersammelgrube aus dem Baujahr 1970 kostenpflichtig entsorgt.
• In einer Kellerecke wurde aufsteigende Feuchtigkeit festgestellt.
• Das Grundbuch wird lastenfrei in Abt. II und III. geliefert.
• Baulasten: Gemäß Auskunft aus dem Baulastenverzeichnis sind keine Eintragungen vorhanden.
• Altlasten: Gemäß Auskunft aus dem Altlastenhinweiskataster wurde eine Altlastensanierung vorgenommen. Weitere Informationen gern auf Anfrage.
• Auf dem Dach der Garage wurden asbesthaltige Eternitplatten verbaut.
• Die Immobilie wird frei übergeben.
• Übergabe nach Absprache.
• Kaufnebenkosten: Die Grunderwerbssteuer (5,5 % des Kaufpreises) & Notar- und Gerichtskosten (ca. 1,6 % des Kaufpreises) sind vom Käufer zu tragen.
• Dieses Immobilienangebot ist provisionspflichtig für Käufer und Verkäufer. Bei Abschluss eines notariellen Kaufvertrags zahlt sowohl der Käufer als auch der Verkäufer eine Maklercourtage von 3,57 % des Kaufpreises (inkl. gesetzlicher Umsatzsteuer). Die Zahlung erfolgt an die Firma Schneide GmbH, die einen direkten Anspruch auf diese Beträge gegenüber den Vertragspartnern hat.
Für weitere Informationen stehen wir Ihnen vorab gern zur Verfügung.
Grundriss
Erdgeschoss
>
>
Dachgeschoss
>
>
Adresse
21037 Hamburg
Interessante Orte
Preis- und Lageinformationen
Preistrend für Bestandsimmobilien in Kirchwerder