Erleben Sie den Charme von diesem wunderschönen Holzhaus im maritimen Marinapark an der Ems.
Als Feriendomizil,zum festen Wohnsitz,oder als Renditeobjekt.
Genießen Sie den Weitblick mit Sonnenuntergang vom Balkon bei einem Glas Wein.
Der pflegeleichte,eingezäunte Garten und die Veranda in Süd-Westlage mit viel Privatsphäre laden zum relaxen ein.
Das Gartenhaus hat viel Platz für Fahrräder,Kanu und vieles mehr.
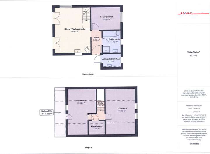
Dieses charmante Einfamilienhaus aus Holz bietet auf ca.92 m² Wohnfläche ein behagliches Zuhause in idyllischer Lage im Marinapark Walchum. Das 2005 erbaute Haus überzeugt mit einer durchdachten Raumaufteilung und einer hochwertigen Ausstattung.
Im Erdgeschoss sorgt eine Fußbodenheizung für wohlige Wärme, während die offene Einbauküche zum gemeinsamen Kochen einlädt. Das Haus verfügt über vier Zimmer, die flexibel genutzt werden können. Ein besonderes Highlight ist das zusätzliche Holzgartenhaus, das vielfältige Nutzungsmöglichkeiten bietet.
Das Erbaurechtsgrundstück erstreckt sich über 250 m² und bietet ausreichend Platz für entspannte Stunden im Freien. Die Lage im Marinapark verspricht eine ruhige Umgebung mit direktem Zugang zur Natur.
In der Umgebung finden Sie zahlreiche Annehmlichkeiten: Der nächste Supermarkt Edeka Schneider ist ca. 1 km entfernt, und das Hafencafé erreichen Sie in wenigen Gehminuten. Die nächste Bushaltestelle ist ca. 800 m entfernt, und die Autobahnauffahrt B 401 ist in ca. 7 km erreichbar.
Dieses Haus ist sofort verfügbar und bietet Ihnen die Möglichkeit, sich in einer attraktiven Umgebung niederzulassen. Der Kaufpreis beträgt 219.000 €. Entdecken Sie Ihr neues Zuhause in Walchum!
Bootsanliegeplatz evt. auf Anfrage möglich
!!Top Ferienhaus im Marinapark im Emsland!! !!Altersgerechtes und Ebenerdiges Wohnen möglich!! !!S
26907 Walchum
Die vollständige Adresse der Immobilie erhalten Sie vom Anbieter.
Auf Karte anzeigen
Die vollständige Adresse der Immobilie erhalten Sie vom Anbieter.
Finanzierungszertifikat
In nur zwei Minuten zu Ihrem persönlichen Finanzierungszertifkat.
Infos
| Haustyp | Einfamilienhaus |
|---|---|
| Etagenzahl | 2 |
| Wohnfläche ca. | 92 m2 |
| Nutzfläche | 17,5 m2 |
| Grundstücksfläche | 250 m2 |
| Zimmer | 4 |
| Schlafzimmer | 3 |
| Badezimmer | 1 |
| Garage/Stellplatz | Außenstellplatz |
| Anzahl Garage/Stellplatz | 2 |
Kosten
| Kaufpreis |
219.000 € |
|---|---|
| Provision |
3,57% inkl. ges. Mwst. Käuferprovision vom notariell beglaubigten Kaufpreis |
Finanzierungsrechner:
Kaufpreis:
600.000 €
Eigenkapital:
600.000 €
Monatliche Rate
0 €
Effektiver Jahreszins
0 %
Sollzinsbindung
10 Jahre
Bausubstanz & Energieausweis
| Baujahr | 2005 |
|---|---|
| Objektzustand | Gepflegt |
| Heizungsart | Zentralheizung |
| Wesentliche Energieträger | Gas |
| Energieausweis | laut Gesetz nicht erforderlich |
Beschreibung des Objekts
Ausstattung
Dieses absolute Traumobjekt teilt sich wie folgt auf:
Erdgeschoss:
-Wohnen/Kochen=26,06 m²
-Schlafen=11,44 m²
-Bad=7,15 m²
-Flur=3,65 m²
-Technik-HWR=4,23 m²
-Veranda=anteilig 1,64 m²
Dachgeschoss:
-Schlafen 1=17,37 m²
-Schlafen 2=13,94 m²
-Flur= 2,12 m²
-Abstellraum =2,14 m²
-Balkon=anteilig 1,64 m²
Gartenhaus/Werkstatt = ca.17,5 m²
Lage
Dieses Ferienhaus befindet sich im wunderschönen Marinapark Emstal in Walchum im Emsland
Nähere infos unter:
https://www.marinapark.de
www.walchum.de
Der Marinapark verfügt über eine eigene Marina.
Ein Paradies für Bootsfahrer-Angler-Fahrradfahrer und alle die Ruhe und Entspannung in einer schönen Umgebung und Natur suchen
Walchum ist eine Gemeinde in der Samtgemeinde Dörpen im wunderschönen Emsland.
Sehr schöne Fahrradrouten-das Heimathaus in Walchum-der Freizeitpark "Schloß Dankern" der Heeder See mit Wasserskianlage-der Walchumer Herzogsee-die Meyer Werft in Papenburg-das direkte Grenzgebiet zu Holland mit der "Bourtanger Festung" sowie Sögel mit dem "Schloß Clemenswerth" in unmittelbarer Umgebung sind nur einige Highlights , die diesen anspruchsvollen Ferienort zum einmaligen Urlaubserlebnis machen.
Optimale Verkehrsanbindung über die A31 aus dem Ruhrgebiet-Hamburg-Bremen und den Niederlanden.
In nur 1 Stunde Autofahrt erreicht man die Nordseeküste.
Sonstige Angaben
Für weitere Informationen steht Ihnen Herr Wilfried Thieben gerne telefonisch, per E-Mail oder Telefax zur Verfügung.
Einen Besichtigungstermin vereinbaren wir in aller Regel selbstverständlich auch kurzfristig nach Ihren zeitlichen Vorstellungen - auch an den Wochenenden und Feiertagen.
Bitte beachten Sie auch unsere Allgemeinen Geschäftsbedingungen, sowie die Informationen zum gesetzlichen Widerruf. Beides finden Sie auch unter www.remax-ostfriesland.de.
Widerrufsbelehrung
Widerrufsrecht für Verbraucher
Sie haben das Recht, binnen vierzehn Tagen ohne Angabe von Gründen diesen Vertrag zu widerrufen.
Die Widerrufsfrist beträgt vierzehn Tage ab dem Tag des Vertragsabschlusses.
Um Ihr Widerrufsrecht auszuüben, müssen Sie uns RE/MAX -Kompetenz-Centrum-Oberlangen, Wilfried Thieben Immobilien, Zur Marsch 11, 49779 Oberlangen Fax: 05933/92642, E-Mail:wilfried.thieben@remax.de mittels einer eindeutigen Erklärung (z.B. ein mit der Post versandter Brief, Telefax oder E-Mail) über Ihren Entschluss, diesen Vertrag zu widerrufen, informieren.
Sie können dafür das beigefügte Muster-Widerrufsformular verwenden, das jedoch nicht vorgeschrieben ist.
Zur Wahrung der Widerrufsfrist reicht es aus, dass Sie die Mitteilung über die Ausübung des Widerrufsrechts vor Ablauf der Widerrufsfrist absenden.
Folgen des Widerrufs
Wenn Sie diesen Vertrag widerrufen, haben wir Ihnen alle Zahlungen, die wir von Ihnen erhalten haben, einschließlich der Lieferkosten (mit Ausnahme der zusätzlichen Kosten, die sich daraus ergeben, dass Sie eine andere Art der Lieferung als die von uns angebotene, günstigste Standardlieferung gewählt haben), unverzüglich und spätestens binnen vierzehn Tagen ab dem Tag zurückzuzahlen, an dem die Mitteilung über Ihren Widerruf dieses Vertrags bei uns eingegangen ist. Für diese Rückzahlung verwenden wir dasselbe Zahlungsmittel, das Sie bei der ursprünglichen Transaktion eingesetzt haben, es sei denn, mit Ihnen wurde ausdrücklich etwas anderes vereinbart; in keinem Fall werden Ihnen wegen dieser Rückzahlung Entgelte berechnet.
Haben Sie verlangt, dass die Dienstleistungen während der Widerrufsfrist beginnen soll, so haben Sie uns einen angemessenen Betrag zu zahlen, der dem Anteil der bis zu dem Zeitpunkt, zu dem Sie uns von der Ausübung des Widerrufsrechts hinsichtlich dieses Vertrags unterrichten, bereits erbrachten Dienstleistungen im Vergleich zum Gesamtumfang der im Vertrag vorgesehenen Dienstleistung entspricht.
Hinweis zum vorzeitigen Erlöschen des Widerrufsrechts
Ihr Widerrufsrecht erlischt bei einem Vertrag zur Erbringung von Dienstleistungen vorzeitig, wenn wir die Dienstleistung vollständig erbracht haben und mit der Ausführung der Dienstleistung erst begonnen haben, nachdem Sie dazu Ihre ausdrückliche Zustimmung gegeben haben und gleichzeitig Ihre Kenntnis davon bestätigt haben, dass Sie Ihr Widerrufsrecht bei vollständiger Vertragserfüllung durch uns verlieren.
Muster-Widerrufsformular
(Wenn Sie den Vertrag widerrufen wollen, dann füllen Sie bitte dieses Formular aus und senden Sie es zurück.)
An
RE/MAX Kompetenz Centrum Oberlangen
Wilfried Thieben zur Marsch 11-49779 Oberlangen
Fax 05933/92642
E-Mail:wilfried.thieben@remax.de
Hiermit widerrufe(n) ich/wir (*) den von mir/uns (*) abgeschlossenen Vertrag über den Kauf der folgenden Waren (*)/ die Erbringung der folgenden Dienstleistung (*)
•Bestellt am (*)/erhalten am (*)
•Name des/der Verbraucher(s)
•Anschrift des/der Verbraucher(s)
•Unterschrift des/der Verbraucher(s) (nur bei Mitteilung auf Papier)
•Datum
____________________________
(*) Unzutreffendes streichen.
Oberlangen, den
________________________________ _______________________
Adresse
26907 Walchum
Interessante Orte
Preis- und Lageinformationen
Preistrend für Bestandsimmobilien in Walchum