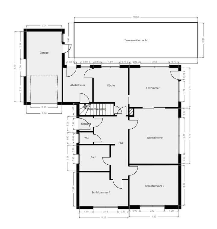
Dieses gemütliche Einfamilienhaus besticht durch seine zentrale Lage in Westerstede. Die Wohnfläche von ca. 164,92 m² verteilt sich auf 5 Zimmern. Im Erdgeschoss erwarten Sie zwei Schlafzimmer, ein Wohnzimmer mit einer Doppelschiebetür zum Esszimmer, eine separate Küche, ein Badezimmer mit großer Dusche und ein Gäste WC. Das Dachgeschoss ergänzt das Raumangebot mit einem großen Wohnraum, einem weiteren Schlafzimmer, einem WC und zwei Abstellräumen.
Der Garten, der auch vom Esszimmer aus erreichbar ist, wurde liebevoll und pflegeleicht angelegt. Im Außenbereich erwartet sie zudem eine großzügige überdachte Terrasse und eine Gartenhütte. Eine geräumige Garage und ein Carport bieten genügend Platz für Fahrzeuge und Stauraum.
Verwirklichen Sie hier Ihre Ideen – gemütliches Einfamilienhaus mit pflegeleichtem Garten!
26655 Westerstede
Die vollständige Adresse der Immobilie erhalten Sie vom Anbieter.
Auf Karte anzeigen
Die vollständige Adresse der Immobilie erhalten Sie vom Anbieter.
Finanzierungszertifikat
In nur zwei Minuten zu Ihrem persönlichen Finanzierungszertifkat.
Infos
| Haustyp | Einfamilienhaus |
|---|---|
| Wohnfläche ca. | 164 m2 |
| Nutzfläche | 36,21 m2 |
| Grundstücksfläche | 867 m2 |
| Zimmer | 6 |
| Badezimmer | 1 |
Kosten
| Kaufpreis |
298.500 € |
|---|---|
| Provision |
2,975 % inkl. 19 % MwSt. |
Finanzierungsrechner:
Kaufpreis:
600.000 €
Eigenkapital:
600.000 €
Monatliche Rate
0 €
Effektiver Jahreszins
0 %
Sollzinsbindung
10 Jahre
Bausubstanz & Energieausweis
| Baujahr | 1968 |
|---|---|
| Wesentliche Energieträger | Gas |
| Energieausweis | liegt vor |
| Energieausweistyp | Bedarfsausweis |
| Energieverbrauchskennwert | 262,8 kWh/(m²*a) |
| Energieeffizienzklasse | H |
262,8
kWh/(m²*a)
Energieeffizienzklasse H
- A+
- A
- B
- C
- D
- E
- F
- G
- H
- 0
- 25
- 50
- 75
- 100
- 125
- 150
- 175
- 200
- 225
- >250
Beschreibung des Objekts
Ausstattung
- Außenschale: Verblendermauerwerk
- Walmdach mit anthrazitfarbenen Ziegeln eingedeckt
- Kunststofffenster, Bj. 2006
- zusätzliche Wärmeisolierungsmaßnahmen im Dachgeschoss
- Gaszentralheizung, Fabrikat: Brötje, Bj. 1992
- Edelholz-Deckenvertäfelung im Wohnbereich
- Fußböden: Laminat, Fliesen und Teppich
- Doppelschiebetür im Wohn-/Essbereich
- Außenrollläden teilweise elektrisch
- Terrassendach 2001 erneuert
- Carportdach 2002 erneuert
Erdgeschoss:
- Wohnzimmer
- Esszimmer mit Terrassenzugang
- Schlafzimmer
- Kinderzimmer
- Küche
- Badezimmer mit Dusche
- Hauswirtschaftsraum mit Außenzugang
- Gäste-WC
- Flur/Windfang
Dachgeschoss:
- großer Wohnraum
- Schlafzimmer
- Waschraum mit WC
- 2 Abstellräume
Sonstiges:
- Gartenhütte
- Terrasse
- Garage
- Carport
- Teilkeller/ 2 Räume
Lage
Das Einfamilienhaus liegt am Ende einer ruhigen Sackgasse, was für eine besonders familienfreundliche Wohnatmosphäre sorgt. Es befindet sich in der Nähe des Stadtzentrums von Westerstede in einem ruhigen Wohngebiet. Zahlreiche Einkaufs- und Versorgungseinrichtungen sind hier vorhanden. Darüber hinaus sind Schulen und Ärzte nicht weit entfernt.
Westerstede wird häufig als die blühende Stadt bezeichnet und liegt zwischen Oldenburg - Leer - Emden an der A 28. Von Westerstede aus erreicht man Oldenburg in etwa 15 Minuten. Die Stadt bietet den über 20.000 Einwohnern eine Kombination aus moderner Infrastruktur, wirtschaftlicher Lebensqualität und einem facettenreichen Freizeit- und Kulturangebot.
Grundriss
Grundriss Erdgeschoss
>
>
Grundriss Dachgeschoss
>
>
Adresse
26655 Westerstede
Interessante Orte
Preis- und Lageinformationen
Preistrend für Bestandsimmobilien in Westerstede