Open House am 13.11, 16-17 Uhr!
Willkommen in diesem charmanten Einfamilienhaus in Lohbrügge, das sich in einer grünen Wohngegend in zentraler Lage befindet.
Dieses Haus bietet die ideale Grundlage, um es nach Ihren persönlichen Vorstellungen zu gestalten. Es ist perfekt für eine Familie, die Wohnraum für mehrere Generationen sucht, oder für diejenigen, die eine zusätzliche Einnahmequelle durch die Vermietung der separaten Anliegerwohnung generieren möchten.
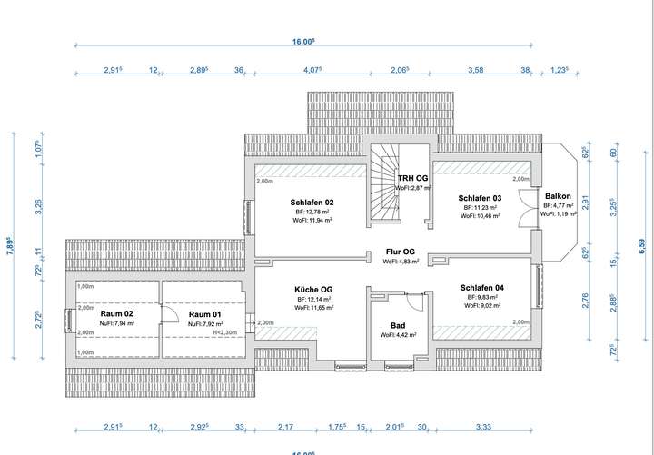
Das Haus erstreckt sich über zwei Etagen und bietet eine gut durchdachte Raumaufteilung mit zwei getrennten Wohneinheiten.
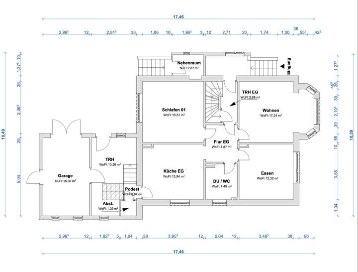
Im Erdgeschoss befinden sich ein geräumiges Wohn- und Esszimmer, das sich gut für gemeinsame Mahlzeiten eignet, ein Schlafzimmer, eine funktionale Küche sowie ein helles Badezimmer mit Dusche und WC.
Die separate Anliegerwohnung im Obergeschoss ist mit einer eigenen Küche und einem Badezimmer ausgestattet und bietet viel Spielraum für eine Neugestaltung. Angrenzend an die Küche liegen zwei gemütliche Zimmer mit Spitzbogen.
Zusätzlich gibt es zwei weitere Zimmer, die sich ideal als Schlafzimmer oder Büro eignen.
Diese separate Einheit ist perfekt für Familienmitglieder, die mehr Unabhängigkeit suchen, oder für die Vermietung an Singles oder Paare.
Ein besonderes Highlight der Immobilie ist der weitläufige, grüne Außenbereich.
Das Grundstück verfügt über einen großen, gepflegten Rasen, der viel Platz für Spiel und Erholung bietet. Eine überdachte Terrasse am Haus lädt zum Entspannen ein und bietet einen schönen Blick auf den weitläufigen Garten. Hier finden Sie viel Ruhe.
Eine Garage ist ebenfalls vorhanden und bietet zusätzlichen Stauraum oder einen geschützten Stellplatz für ein Fahrzeug.
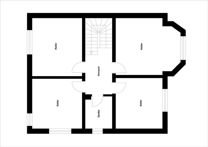
Dieses Haus ist vollständig unterkellert. Es wartet auf Sie und bietet Ihnen eine einzigartige Gelegenheit, es ganz nach Ihren individuellen Vorstellungen in ein persönliches Traumhaus zu verwandeln.
Das Haus ist sehr sanierungsbedürftig.
Preisreduzierung! Haus mit Charakter-Sanierungsbedürftig, aber voller Möglichkeiten
21031 Hamburg
Die vollständige Adresse der Immobilie erhalten Sie vom Anbieter.
Auf Karte anzeigen
Die vollständige Adresse der Immobilie erhalten Sie vom Anbieter.
Finanzierungszertifikat
In nur zwei Minuten zu Ihrem persönlichen Finanzierungszertifkat.
Infos
| Haustyp | Einfamilienhaus |
|---|---|
| Etagenzahl | 2 |
| Wohnfläche ca. | 139 m2 |
| Nutzfläche | 33,82 m2 |
| Grundstücksfläche | 922 m2 |
| Bezugsfrei ab | 01.11.25 |
| Zimmer | 9 |
| Badezimmer | 1 |
Kosten
| Kaufpreis |
430.000 € |
|---|---|
| Provision |
3,57 % inkl. MwSt |
Finanzierungsrechner:
Kaufpreis:
600.000 €
Eigenkapital:
600.000 €
Monatliche Rate
0 €
Effektiver Jahreszins
0 %
Sollzinsbindung
10 Jahre
Bausubstanz & Energieausweis
| Baujahr | 1943 |
|---|---|
| Objektzustand | Renovierungsbedürftig |
| Qualität der Austattung | Einfach |
| Heizungsart | Gas-Heizung |
| Wesentliche Energieträger | Gas |
| Energieausweis | liegt vor |
| Energieausweistyp | Bedarfsausweis |
| Energieverbrauchskennwert | 472,0 kWh/(m²*a) |
| Energieeffizienzklasse | H |
472,0
kWh/(m²*a)
Energieeffizienzklasse H
- A+
- A
- B
- C
- D
- E
- F
- G
- H
- 0
- 25
- 50
- 75
- 100
- 125
- 150
- 175
- 200
- 225
- >250
Beschreibung des Objekts
Ausstattung
- Anliegerwohnung
- Einbauküche
- Großer Garten mit überdachter Terrasse
- Garage
- Kleiner Balkon
- Drei Schlafzimmer
- Terrasse
- Vollständig unterkellert
- Hoher Sanierungsbedarf
Lage
Das Haus befindet sich im Hamburger Stadtteil Lohbrügge, einem begehrten Teil des Bezirks Bergedorf. Die Lage am Reinbeker Redder zeichnet sich durch eine gelungene Kombination aus naturverbundenem Wohnen und hervorragender Infrastruktur aus.
Die Umgebung ist von ausgedehnten Gärten und altem Baumbestand geprägt, was eine ruhige und grüne Atmosphäre schafft. Naherholungsgebiete wie die Boberger Dünen, Boberger Niederung und die nahegelegenen Wälder sind in wenigen Minuten erreichbar und laden zu ausgiebigen Spaziergängen und sportlichen Aktivitäten ein.
Trotz der naturnahen Lage ist die Anbindung an die Hamburger Innenstadt und die umliegenden Städte Glinde und Reinbek sehr gut. Der Reinbeker Redder selbst ist eine Verkehrsstraße, was eine schnelle Erreichbarkeit mit dem Auto ermöglicht. Über den öffentlichen Nahverkehr sind der S- und Fernbahnhof Bergedorf sowie weitere Stadtteile zügig erreichbar. Einkaufsmöglichkeiten, Schulen, Kindergärten und Ärzte befinden sich in der näheren Umgebung und machen die Lage besonders attraktiv für Familien.
Die Lage des Hauses in Lohbrügge bietet somit die perfekte Balance zwischen ruhigem Wohnen im Grünen und der unmittelbaren Nähe zu städtischen Annehmlichkeiten.
Sonstige Angaben
Alle Informationen und Angaben sind mit besten Gewissen erstellt, jedoch übernehmen wir für die Richtigkeit keine Haftung.
Open House: 13.11 16-17 Uhr.
Zur Teilnahme an der Open House Veranstaltung ist eine kurze Anmeldung und eine Bestätigung der Provisionsvereinbarung Vorraussetzung.
Bitte Anmeldung per E-Mail: s.ballhausse@immobilienmaass.de
Grundriss
Bildschirmfoto 2025-09-15 um 1
>
>
Bildschirmfoto 2025-09-15 um 1
>
>
Kellergrundriss
>
>
Adresse
21031 Hamburg
Interessante Orte
Preis- und Lageinformationen
Preistrend für Bestandsimmobilien in Lohbrügge