Zum Verkauf steht das mittlere von drei Einfamilienhäusern in der Hergenröderstraße in Offenbach-Buchrain.
Mit einer Wohnfläche von ca. 230 m² auf drei Ebenen bietet dieses Haus viel Platz für Familien und überzeugt durch eine durchdachte Raumaufteilung. Das Haus befindet sich in einem soliden Zustand, benötigt jedoch an einigen Stellen Renovierungen, um es wieder in neuem Glanz erstrahlen zu lassen.
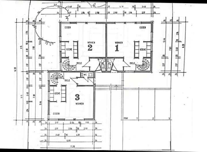
Das Erdgeschoss empfängt Sie mit einem großzügigen Wohn- und Essbereich, ausgestattet mit einem gemütlichen Holzkamin. Von hier aus gelangen Sie direkt auf die Terrasse und in den Garten. Eine separate Küche sowie ein Gäste-WC komplettieren das Erdgeschoss.
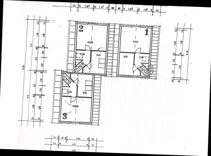
Im Obergeschoss befinden sich zwei Schlafzimmer sowie ein Badezimmer. Das Dachgeschoss bietet ein weiteres Bad sowie zwei zusätzliche Zimmer, die sich ideal als Kinder-, Gäste- oder Arbeitszimmer nutzen lassen.
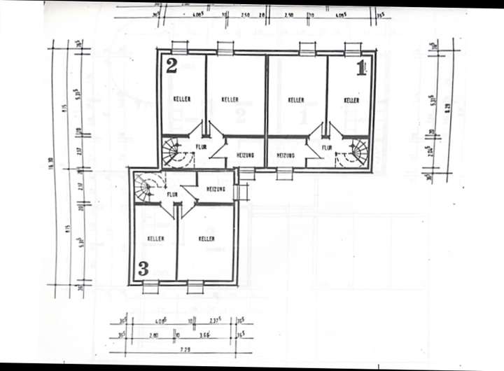
Im Untergeschoss stehen ein Waschraum, ein Heizungsraum und ein Kellerraum zur Verfügung.
Geräumiges Einfamilienhaus Garten, Terrasse in Offenbach-Buchrain!
63069 Offenbach am Main
Die vollständige Adresse der Immobilie erhalten Sie vom Anbieter.
Auf Karte anzeigen
Die vollständige Adresse der Immobilie erhalten Sie vom Anbieter.
Finanzierungszertifikat
In nur zwei Minuten zu Ihrem persönlichen Finanzierungszertifkat.
Infos
| Haustyp | Reihenmittelhaus |
|---|---|
| Etagenzahl | 2 |
| Wohnfläche ca. | 230 m2 |
| Grundstücksfläche | 583 m2 |
| Zimmer | 5 |
| Schlafzimmer | 4 |
| Badezimmer | 2 |
| Garage/Stellplatz | Außenstellplatz |
Kosten
| Kaufpreis |
897.000 € |
|---|---|
| Provision |
Käuferprovision beträgt 3,57 % |
Finanzierungsrechner:
Kaufpreis:
600.000 €
Eigenkapital:
600.000 €
Monatliche Rate
0 €
Effektiver Jahreszins
0 %
Sollzinsbindung
10 Jahre
Bausubstanz & Energieausweis
| Baujahr | 1987 |
|---|---|
| Wesentliche Energieträger | Gas |
| Energieausweis | liegt zur Besichtigung vor |
Beschreibung des Objekts
Ausstattung
AUSSTATUNG:
- Wohnfläche: ca. 230 m²
- 3 Ebenen (Erdgeschoss, Obergeschoss, Dachgeschoss) + Keller
- 5 Zimmer, davon 4 Schlafzimmer
- 2 Badezimmer + Gäste-WC
- Garten mit Terrasse
- Wohn- und Essbereich mit Holzkamin
- Bodenbeläge: Parkett, Laminat, Fliesen und Teppich
- Sauna im Untergeschoss
RAUMAUFTEILUNG:
- Erdgeschoss: großzügiges Wohn- und Esszimmer mit Kamin, Küche, Gäste-WC, Zugang zur Terrasse und Garten
- Obergeschoss: 2 Schlafzimmer, 1 Badezimmer
- Dachgeschoss: 2 Zimmer, 1 Badezimmer
- Kellergeschoss: Waschraum, Heizungsraum, Abstell-/Kellerraum
Lage
Dieses Einfamilienhaus liegt im exklusiven Villenviertel des Buchraingebiets, einer ruhigen und dennoch zentralen Wohngegend von Offenbach am Main. Die Umgebung besticht durch gepflegte Häuser und Villen inmitten von viel Grün. Einkaufsmöglichkeiten, Schulen, Kindergärten und Ärzte befinden sich in der Nähe und sind bequem zu Fuß oder mit dem Fahrrad erreichbar.
Auch die Verkehrsanbindung ist hervorragend: Der S-Bahnhof Offenbach-Bieber sowie die Autobahnen A3 und A661 sind nur wenige Minuten entfernt und bieten schnelle Verbindungen nach Frankfurt, Hanau oder Darmstadt. Die Offenbacher Innenstadt mit ihren Cafés, Restaurants und Geschäften ist ebenfalls in kurzer Zeit erreichbar. Für Erholung und Freizeit stehen der nahegelegene Wald und die umliegenden Grünflächen zur Verfügung, die zu Spaziergängen und Aktivitäten im Freien einladen.
Hier wohnen Sie in einer der besten Lagen Offenbachs – die perfekte Kombination aus exklusiver Wohnlage und urbaner Anbindung!
Adresse
63069 Offenbach am Main
Interessante Orte
Preis- und Lageinformationen
Preistrend für Bestandsimmobilien in Lauterborn