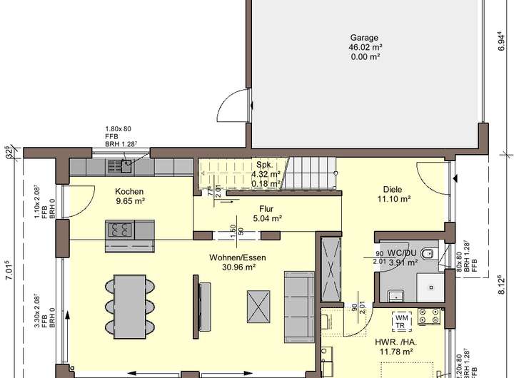
Bei dem angebotenen Objekt handelt es sich um einen Neubau mit einem Beispiel-Grundriss. Entsprechend Ihrer Wünsche und Vorstellungen passen wir natürlich Ihren Grundriss an. Alle Details zu Ihren Wünschen, der Bauweise und Qualitäten, besprechen wir gerne in einem persönlichen Treffen. Im Standard sind unsere Häuser mit Viessmann-Energiesystemen ausgerüstet. Ihr Haus wird mit Solarstrom versorgt und Warmwasser/Heizung wird mit ener Luft-Wärmepumpe erzeugt.Es enstehen durch die hervoragend gedämmte Gebäudehülle und des hocheffizienten Viessmann-Energiesystems, sehr gerimge Energie-Kosten. Somit sind Sie weitestgehend unabhängig von der Energiekosten-Entwicklung.
Da die Grundstück-Vermittlung bei uns ein kostenloser Service für unsere Kunden ist, habe Sie bitte Verständnis dafür, daß wir keine konkreten Anschriften ohne ein persönliches Gespräch preisgeben und das Grundstück nicht ohne ein entsprechendes Bauvorhaben durch meine Handelsvertretung zu erwerben ist. Bei dem hier beworbenen Angebot handelt es sich um eine Beispielbebauung auf einem Grundstück eines Erschließungsträgers, Maklers oder einer privaten Person. Büdenbender Hausbau tritt ausschließlich als das bauausführende Unternehmen auf. Eine Grundstück-Suche o./ u. -Vermittlungsauftrag kann über meine Handelsvertretung erfolgen. Gerne planen wir Ihr Traumhaus auf Ihrem bereits vorhandenen, oder reservierten Grundstück, oder unterstützen Sie bei Ihrer Suche..
Nicht im Angebot enthalten sind: das Grundstück u. dessen Erwerbskosten, Außen- und Nebenanlagen, sowie die branchenüblichen Baunebenkosten. Wie sich diese im Detail zusammensetzen, erörtern wir mit Ihnen gerne in einem persönlichen Gespräch.
Das Angebot ist freibleibend und unverbindlich.
Gerne lade ich Sie zu einem und
Individuellen Bauherren-Termin mit einer Präsentation in Rostock ein.
Hier spreche ich mit Ihnen und beantworte Ihre Fragen zu den Themen:
- Das Büdenbender-Architektenhaus mit seinen Architektur-Linien und seinen
Möglichkeiten der individuellen Gestaltung Ihres Grundrisses.
- Das Plus-Energiehaus mit hohem Selbstversorger-Anteil
Ich freue mich auf Ihre Rückmeldung zur Termin-Findung
Ein schönes Haus im schönen Hamburg. Modern und individuell geplant? Hier das Beispiel !
22391 Hamburg
Die vollständige Adresse der Immobilie erhalten Sie vom Anbieter.
Auf Karte anzeigen
Die vollständige Adresse der Immobilie erhalten Sie vom Anbieter.
Finanzierungszertifikat
In nur zwei Minuten zu Ihrem persönlichen Finanzierungszertifkat.
Infos
| Haustyp | Einfamilienhaus |
|---|---|
| Etagenzahl | 2 |
| Wohnfläche ca. | 164 m2 |
| Grundstücksfläche | 1.030 m2 |
| Zimmer | 6 |
| Anzahl Garage/Stellplatz | 1 |
Kosten
| Kaufpreis |
660.630 € |
|---|---|
| Provision | Nein |
Finanzierungsrechner:
Kaufpreis:
600.000 €
Eigenkapital:
600.000 €
Monatliche Rate
0 €
Effektiver Jahreszins
0 %
Sollzinsbindung
10 Jahre
Bausubstanz & Energieausweis
| Baujahr | 2026 |
|---|---|
| Bauphase | Haus in Planung (projektiert) |
| Objektzustand | Erstbezug |
| Qualität der Austattung | Gehoben |
| Heizungsart | Wärmepumpe |
| Wesentliche Energieträger | Strom |
| Energieausweis | liegt vor |
| Energieausweistyp | Bedarfsausweis |
| Energieverbrauchskennwert | 12,0 kWh/(m²*a) |
| Energieeffizienzklasse | A+ |
12,0
kWh/(m²*a)
Energieeffizienzklasse A+
- A+
- A
- B
- C
- D
- E
- F
- G
- H
- 0
- 25
- 50
- 75
- 100
- 125
- 150
- 175
- 200
- 225
- >250
Beschreibung des Objekts
Ausstattung
Die Austattung Ihres Hauses, ist neben Ihrem Wunsch-Grundriss ebenfalls ein Thema anlässlich unseres ersten Treffens. Ihre Wünsche und Ziele sind Basis unseres Anbebotes und Architekten-Planung für Sie.
Lage
Hamburg ist einer der attraktivsten Städte in Europa/Welt mit wirtschaftlicher und kultureller Infrastrukt mit starker Ausprägung.
Alles was Hamburg zu bieten hat erfahren Sie hier: https://www.hamburg.de/
Unser Haus-Projekt liegt im Bezirk HH-Wandsbek / Ortsteil Poppenbüttel hat grünes Ambiente u. liegt zu beiden Seiten der Oberalster und ist von den benachbarten Stadtteilen durch siedlungsfreie Grünzonen und Landschaftsschutzgebiete. In unmittelbarer Nähe verläuft der Alster-Wanderweg. Wandsbek gilt als äußerst lebenswerter und vor allem familienfreundlicher Bezirk in Hamburg und ist ein nahgefragter lebens.-u, wirtschaftsstandort mit vielferttigen Angeboten für Erziehung+Bildung+Einkauf+Jobs+effizienter ÖPNV+Parks u. Ruhezonen.
Sonstige Angaben
Familie Büdenbender baut Häuser in anspruchsvolle Architektur in robuster schlüsselfertiger Fertigbauweise in höchster Qualität, mit konsequente Energieeffizienz durch die Erzeugung und Nutzung erneuerbarer Energien. Seit mehr als 75 Jahen tragen diese Häuser ist den Namen Büdenbender. Deutsches Zimmermanshandwerkt trifft auf italienisches Wohnflair.
Büdenbender hat tiefgehende Erfahrung und know how seit vielen Jahren in der Umsetzung des Standards der Klasse KfW Effizienzhaus 40 + und hat diesen in den Serienstandard erhoben, wobei auch die aktuellen KfW-Förderbedingungen mit dem QNG-Siegel im Standard efüllt weden
Adresse
22391 Hamburg
Interessante Orte
Preis- und Lageinformationen
Preistrend für Bestandsimmobilien in Poppenbüttel