Zum Verkauf steht ein gepflegtes Reiheneckhaus aus dem Baujahr 1993 mit 4 Zimmern in ruhiger und beliebter Wohnlage von Neu-Anspach. Mit einer Wohnfläche von ca. 115 m², verteilt auf drei Ebenen, überzeugt die Immobilie durch einen praktischen Grundriss und eine attraktive Aufteilung. Das Grundstück ist nach dem Wohnungseigentumsgesetz (WEG) in 239/1.000 Miteigentumsanteile (MEA) an der Gesamtgrundstücksfläche aufgeteilt. Der Bereich des Gartens sowie die dazugehörigen Außenflächen stehen im Sondernutzungsrecht. Der Sondernutzungsrechtler hat in diesem Bereich des Gemeinschaftseigentums das alleinige und ausschließliche Verwaltungsrecht.
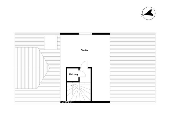
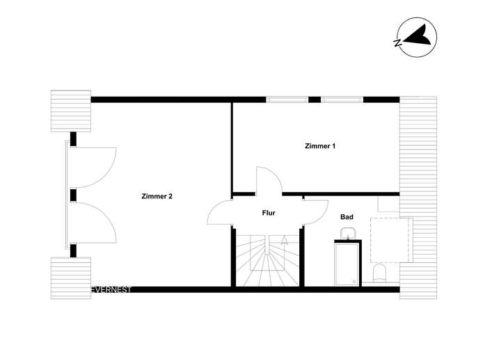
Beim Betreten des Hauses öffnet sich ein einladender Flur, von dem sowohl ein Gäste-WC als auch ein praktischer Abstellraum abgehen. Von hier aus führt der Weg in den großzügigen Wohn- und Essbereich, der durch große Fensterfronten viel Licht erhält und direkten Zugang zur Terrasse sowie zum liebevoll angelegten Garten bietet. Die angrenzende Küche fügt sich harmonisch in den Essbereich ein und schafft eine offene, moderne Wohnatmosphäre. Im Obergeschoss befinden sich zwei gut geschnittene Schlafzimmer sowie ein helles Tageslichtbad. Im Dachgeschoss ergänzt ein großzügig geschnittenes Zimmer das Raumangebot, das sich flexibel als zusätzliches Schlafzimmer, Arbeitszimmer oder Hobbyraum nutzen lässt.
Das Angebot richtet sich ausschließlich an Kapitalanleger. Der aktuelle Eigentümer möchte das Haus nach dem Verkauf weiterhin bewohnen. Dies bedeutet ein gesichertes Mietverhältnis von Beginn an und eine sofortige Rendite ohne Leerstand. Die vereinbarte monatliche Kaltmiete beträgt 1.400 €, entsprechend einer jährlichen Mieteinnahme von 16.800 €. Auf Basis des Kaufpreises ergibt sich eine attraktive Mietrendite von rund 4 % bei einem Kaufpreisfaktor von 25. Der Eigentümer stellt einen zuverlässigen, langjährigen Mieter dar, der das Haus bereits seit vielen Jahren bewohnt und pflegt. Dadurch entsteht eine stabile Grundlage für eine Kapitalanlage in einer gefragten und wertbeständigen Lage des Taunus.
Reiheneckhaus mit solider Rendite und zuverlässigen Mietern
61267 Neu-Anspach
Die vollständige Adresse der Immobilie erhalten Sie vom Anbieter.
Auf Karte anzeigen
Die vollständige Adresse der Immobilie erhalten Sie vom Anbieter.
Finanzierungszertifikat
In nur zwei Minuten zu Ihrem persönlichen Finanzierungszertifkat.
Infos
| Haustyp | Reiheneckhaus |
|---|---|
| Etagenzahl | 2 |
| Wohnfläche ca. | 115 m2 |
| Grundstücksfläche | 0 m2 |
| Zimmer | 4 |
| Schlafzimmer | 3 |
| Badezimmer | 1 |
| Garage/Stellplatz | Carport |
| Anzahl Garage/Stellplatz | 2 |
Kosten
| Kaufpreis |
420.000 € |
|---|---|
| Provision |
3.57 % inkl. MwSt. Bei Abschluss eines notariellen Kaufvertrages ist eine Käuferprovision vom Käufer in Höhe von 3.57 % inkl. MwSt. aus dem Kaufpreis fällig. |
Finanzierungsrechner:
Kaufpreis:
600.000 €
Eigenkapital:
600.000 €
Monatliche Rate
0 €
Effektiver Jahreszins
0 %
Sollzinsbindung
10 Jahre
Bausubstanz & Energieausweis
| Baujahr | 1993 |
|---|---|
| Letzte Sanierung | 2015 |
| Objektzustand | Modernisiert |
| Qualität der Austattung | Normal |
| Heizungsart | Zentralheizung |
| Wesentliche Energieträger | Gas |
| Energieausweis | liegt vor |
| Energieausweistyp | Verbrauchsausweis |
| Energieverbrauchskennwert | 99,5 kWh/(m²*a) |
| Energieeffizienzklasse | C |
99,5
kWh/(m²*a)
Energieeffizienzklasse C
- A+
- A
- B
- C
- D
- E
- F
- G
- H
- 0
- 25
- 50
- 75
- 100
- 125
- 150
- 175
- 200
- 225
- >250
Beschreibung des Objekts
Ausstattung
- Kein Mietverlust durch Leerstand
- Sofortige Mietrendite von 4 %
- Kaufpreisfaktor 25
- Zuverlässige Mieter
- Kein Sanierungsstau
Lage
Das Haus befindet sich in Westerfeld, einem Ortsteil von Neu-Anspach – einer charmanten Kleinstadt im Hochtaunuskreis, die durch ihre naturnahe und zugleich verkehrsgünstige Lage überzeugt. Neu-Anspach ist besonders bekannt für seine familienfreundliche Atmosphäre, die gute Infrastruktur und vielfältige Freizeitmöglichkeiten.
Der Ort bietet eine ausgewogene Mischung aus ruhigem Wohnen und einer lebendigen Gemeinschaft. Einkaufsmöglichkeiten, Schulen, Kindergärten sowie Ärzte sind in wenigen Minuten erreichbar. Für Naturliebhaber ist der nahegelegene Taunus mit seinen Wanderwegen und Erholungsgebieten ein großes Plus.
Zudem sorgen die Anbindung an den öffentlichen Nahverkehr und die Nähe zur A5 für schnelle Verbindungen in die umliegenden Städte und in die Mainmetropole Frankfurt.
Grundriss
Erdgeschoss
>
>
1.Obergeschoss
>
>
Dachgeschoss
>
>
Adresse
61267 Neu-Anspach
Interessante Orte
Preis- und Lageinformationen
Preistrend für Bestandsimmobilien in Neu-Anspach