Ihr perfektes Zuhause für Generationen – Wohnen mit Familie & Flexibilität
Willkommen in dieser außergewöhnlichen Villa in Hamburg-Marienthal, die speziell für Familien konzipiert wurde, die Generationen unter einem Dach vereinen möchten – mit ausreichend Platz für individuelle Entfaltung und Privatsphäre. Diese Immobilie bietet Ihnen nicht nur ein großzügiges Zuhause, sondern auch die Möglichkeit, Wohnen und Vermieten optimal zu kombinieren.
Viel Platz für alle – durchdachte Wohnkonzepte für Mehrgenerationenhaushalt
Mit einer Wohnfläche von 249 m², verteilt auf drei Etagen, bietet dieses Haus ausreichend Raum für mehrere Generationen. Ob Eltern, Großeltern oder heranwachsende Kinder – hier findet jeder seinen eigenen Bereich, ohne auf das Gefühl von Gemeinschaft verzichten zu müssen. Die intelligente Raumaufteilung sorgt für Rückzugsmöglichkeiten und gemeinsame Treffpunkte im perfekten Gleichgewicht.
Zwei Wohneinheiten – Gemeinsam leben, flexibel nutzen
Diese Villa bietet neben dem Haupthaus eine separate Einliegerwohnung mit eigenem Eingang, Küche, Bad, Schlafzimmer und Wohnbereich. Perfekt für erwachsene Kinder, die erste Unabhängigkeit genießen möchten, für Großeltern, die in familiärer Nähe wohnen wollen, oder als separate Einheit zur Vermietung. Die Flexibilität dieses Hauses macht es zur idealen Lösung für wachsende Familien oder als Mehrgenerationenkonzept.
Wohnen mit Komfort und Charakter
Die Villa wurde 1960 erbaut und 2003 umfassend kernsaniert, sodass sie modernen Wohnkomfort mit zeitlosem Charme vereint. Große Fensterflächen sorgen für lichtdurchflutete Räume, während hochwertige Materialien für ein stilvolles Wohngefühl sorgen. Die 2004 neu errichtete Garage bietet zusätzlichen Stauraum und Platz für Ihre Fahrzeuge.
Ein Garten für gemeinsame Momente
Das 657 m² große Grundstück bietet genügend Platz für gemeinsame Stunden im Freien. Ob Grillabende, Spielbereiche für Kinder oder einfach ein Rückzugsort in der Natur – dieser Garten ist ein Ort der Erholung und Begegnung zugleich.
Leben in Hamburg-Marienthal – Ruhige Lage mit perfekter Anbindung
Diese Villa liegt in einer der begehrtesten Wohngegenden Hamburgs. Die ruhige Nachbarschaft kombiniert urbanes Leben mit grüner Umgebung. Der nahegelegene Öjendorfer Park lädt zu Spaziergängen und Freizeitaktivitäten ein, während Einkaufsmöglichkeiten, Schulen und Verkehrsanbindungen optimal erreichbar sind.
Eine Investition in Ihre Zukunft
Diese Immobilie ist mehr als nur ein Zuhause – sie bietet Ihnen und Ihrer Familie langfristige Sicherheit, Flexibilität und eine hohe Lebensqualität. Ob Sie die gesamte Villa als Mehrgenerationenhaus nutzen oder einen Teil vermieten möchten, hier stehen Ihnen alle Möglichkeiten offen.
Lassen Sie sich dieses einmalige Wohnangebot nicht entgehen und vereinbaren Sie noch heute einen Besichtigungstermin!
Wohnen, Leben, Vermieten – Flexibles Familienkonzept in exklusiver Lage
22043 Hamburg
Die vollständige Adresse der Immobilie erhalten Sie vom Anbieter.
Auf Karte anzeigen
Die vollständige Adresse der Immobilie erhalten Sie vom Anbieter.
Finanzierungszertifikat
In nur zwei Minuten zu Ihrem persönlichen Finanzierungszertifkat.
Infos
| Haustyp | Einfamilienhaus |
|---|---|
| Etagenzahl | 3 |
| Wohnfläche ca. | 249 m2 |
| Grundstücksfläche | 657 m2 |
| Zimmer | 12 |
| Garage/Stellplatz | Garage |
| Anzahl Garage/Stellplatz | 1 |
Kosten
| Kaufpreis |
1.480.000 € |
|---|---|
| Provision |
3,57% Die Käufercourtage in Höhe von 3,57 % inkl. der gesetzlichen Mehrwertsteuer auf den Kaufpreis ist mit dem Zustandekommen des Kaufvertrages (notarieller Vertragsabschluss) verdient und fällig. |
Finanzierungsrechner:
Kaufpreis:
600.000 €
Eigenkapital:
600.000 €
Monatliche Rate
0 €
Effektiver Jahreszins
0 %
Sollzinsbindung
10 Jahre
Bausubstanz & Energieausweis
| Baujahr | 1960 |
|---|---|
| Letzte Sanierung | 2003 |
| Heizungsart | Gas-Heizung |
| Wesentliche Energieträger | Gas |
| Energieausweis | liegt zur Besichtigung vor |
Beschreibung des Objekts
Lage
Hamburg-Marienthal, im Osten der Stadt gelegen, vereint historische Architektur und moderne Annehmlichkeiten. Die Nähe zum Öjendorfer Park macht den Stadtteil
besonders attraktiv für Naturliebhaber.
Gleichzeitig punktet Marienthal mit exzellenten Verkehrsanbindungen sowie einer Vielzahl von Einkaufsmöglichkeiten, Schulen und Restaurants. Die lebhafte Atmosphäre und kulturelle Vielfalt prägen das Stadtteilbild. Hier treffen unterschiedliche Lebensstile aufeinander, was sich in gemütlichen Cafés, kleinen
Geschäften und grünen Parks widerspiegelt.
Insgesamt bietet Hamburg-Marienthal eine attraktive Mischung aus urbanem Leben
und naturnaher Erholung. Kein Wunder, dass der Stadtteil zu den begehrtesten
Wohnvierteln der Hansestadt zählt.
Sonstige Angaben
WICHTIGER HINWEIS: Es werden nur Anfragen mit vollständigen Kontaktinformationen wie Name, Adressdaten sowie Telefon und E-Mail bearbeitet.
Gefällt Ihnen die Darstellung dieser Immobilie und Sie planen auch einen Verkauf? Lassen Sie uns gern über eine Zusammenarbeit sprechen und auch Ihre Immobilie professionell vermarkten.
are. hat sich auf den hochwertigen Verkauf von Wohnimmobilien in und um Hamburg spezialisiert. Lassen Sie sich zunächst von einer kompetenten Bewertung des erzielbaren Kaufpreises durch uns überzeugen.
Wir freuen uns auf den Austausch mit Ihnen!
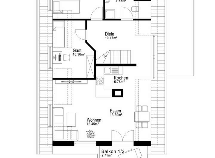
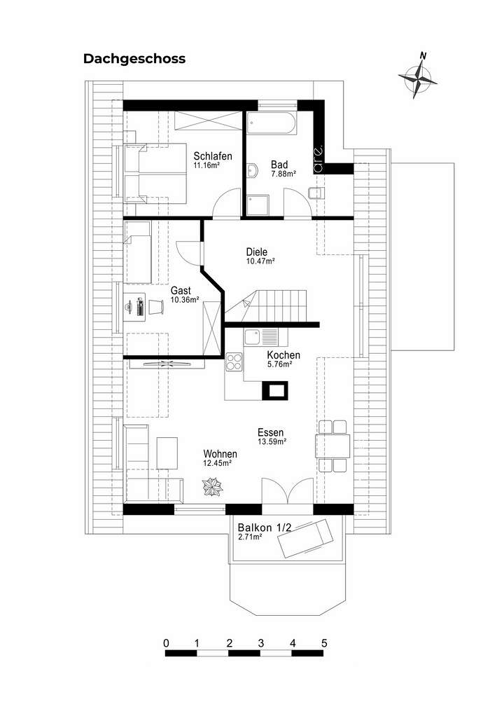
Grundriss
are.Souterrain:Kellergeschoss
>
>
are.Erdgeschoss
>
>
are.Obergeschoss_
>
>
are.Dachgeschoss
>
>
Adresse
22043 Hamburg
Interessante Orte
Preis- und Lageinformationen
Preistrend für Bestandsimmobilien in Marienthal