Diese markante Fachwerkhaus mit Einliegerwohnung bietet auf rund 230 m² Wohnfläche und mit insgesamt neun Zimmern außergewöhnlich viel Platz — ideal für Familien, Mehrgenerationen-Modelle oder die Kombination von Wohnen und Arbeiten.
Das Hauptgebäude ist L-förmig angelegt und öffnet sich zu einem privaten Innenhof, der genug Stellflächen für drei PKWs bietet. Der Hof ist von den Gebäuden umschlossen und schafft diskrete Privatsphäre; ein alter Weinstock und ein Brunnen prägen den Innenhofcharakter. Von der Hofzufahrt erreichen Sie das Nebengebäude, das über einen eigenen Stromanschluss verfügt und vielfältig nutzbar ist.
Erschlossen wird das Anwesen über zwei Eingänge: Der Haupteingang führt in das Haupthaus; ein separater Seiteneingang an der linken Gebäudeseite erschließt die Einliegerwohnung im Anbau. Im Obergeschoss sind Haupthaus und Anbau miteinander verbunden, im Erdgeschoss sind die Einheiten derzeit getrennt zugänglich — dadurch bleibt die Nutzung flexibel. Neben einer großen Wohneinheit oder zwei voneinander unabhängigen Wohneinheiten ist auch eine Kombination wie Wohnen und Vermieten durch den Grundriss naheliegend und praktisch vorbereitet.
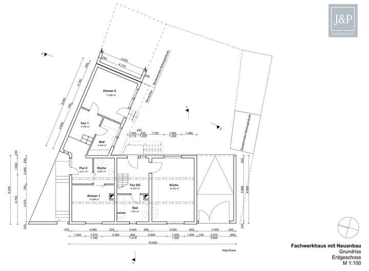
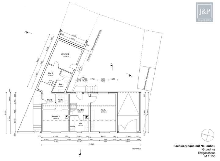
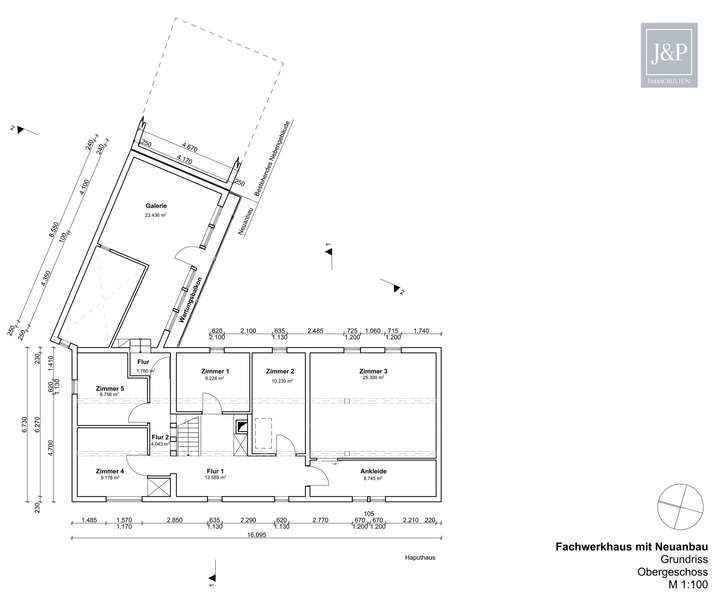
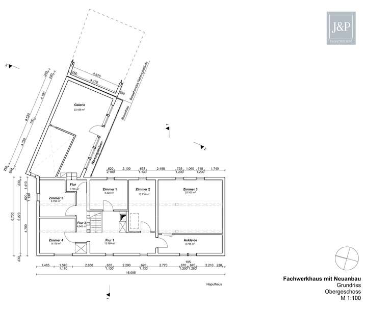
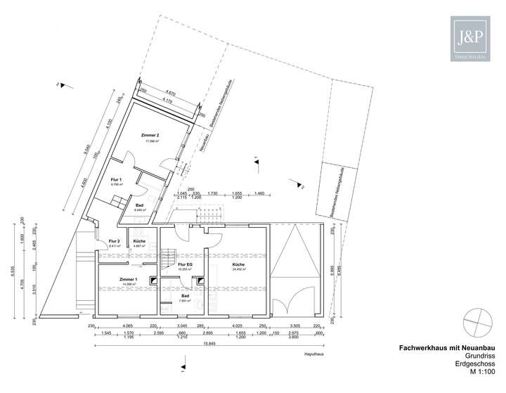
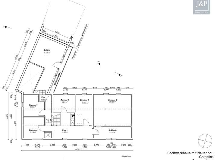
Im Haupthaus bietet der Erdgeschossgrundriss eine zentrale Diele mit Treppenhaus sowie ein angrenzendes Badezimmer; ein großzügiger Wohnbereich mit offener Küche schafft einen kommunikativen Mittelpunkt. Im Obergeschoss gliedert sich der Bereich in mehrere Zimmer, u. a. ein deutlich größeres Schlafzimmer sowie weitere Schlaf- bzw. Arbeitszimmer, die durch Flure sinnvoll erschlossen werden.
Der Massivholz-Anbau aus den 2000er verfügt im Obergeschoss über eine helle Galerie mit offener Blickverbindung in den Anbaubereich; derzeit besteht hier keine feste Treppenverbindung in das untere Anbauteil (die Blickbeziehung/Öffnung ist vorhanden). Im Erdgeschoss des Anbaus liegt die eigenständige Einliegerwohnung mit separatem Eingang: Sie umfasst einen Eingangsflur, eine Küche, ein Wohnzimmer, ein Schlafzimmer und ein Bad und ist somit unmittelbar nutzbar.
Technisch ist das Objekt mit einer Ölzentralheizung (Bj. 1997) sowie doppelt verglasten Fenstern ausgestattet. Die Bäder präsentieren sich in einem funktionalen Standard. Das umfangreiche Nebengebäude schafft weitere Nutzfläche und bietet Optionen als Werkstatt, Lager, Atelier oder zur gewerblichen Nutzung.
Insgesamt bietet dieses Fachwerkensemble eine seltene Kombination aus historischem Ambiente, großzügigen Räumen und hohen Gestaltungsoptionen.
Zentral & vielseitig: Großes Fachwerkhaus mit Einliegerwohnung und Nebengebäuden!
63486 Bruchköbel
Die vollständige Adresse der Immobilie erhalten Sie vom Anbieter.
Auf Karte anzeigen
Die vollständige Adresse der Immobilie erhalten Sie vom Anbieter.
Finanzierungszertifikat
In nur zwei Minuten zu Ihrem persönlichen Finanzierungszertifkat.
Infos
| Haustyp | Einfamilienhaus |
|---|---|
| Etagenzahl | 2 |
| Wohnfläche ca. | 230 m2 |
| Nutzfläche | 300 m2 |
| Grundstücksfläche | 380 m2 |
| Zimmer | 9 |
| Schlafzimmer | 6 |
| Badezimmer | 2 |
| Garage/Stellplatz | Außenstellplatz |
| Anzahl Garage/Stellplatz | 3 |
Kosten
| Kaufpreis |
549.000 € |
|---|---|
| Provision |
2,25% Hiermit möchten wir auf die Tätigkeit des Maklers unsererseits hinweisen, welche eine Provisionszahlung von Ihnen in Höhe von 2,25% inkl. ges. MWST beinhaltet. |
Finanzierungsrechner:
Kaufpreis:
600.000 €
Eigenkapital:
600.000 €
Monatliche Rate
0 €
Effektiver Jahreszins
0 %
Sollzinsbindung
10 Jahre
Bausubstanz & Energieausweis
| Baujahr | 1775 |
|---|---|
| Objektzustand | Gepflegt |
| Heizungsart | Öl-Heizung |
| Wesentliche Energieträger | Öl |
| Energieausweis | laut Gesetz nicht erforderlich |
Beschreibung des Objekts
Ausstattung
+ Ca. 230 m² Wohnfläche
+ 9 Schlafzimmer, 2 Küchen, 2 Bäder
+ Einliegerwohnung im Anbau mit separatem Eingang
+ Direkte Verbindung zwischen Haupthaus und Anbau im Obergeschoss
+ Galerie im Anbau mit offener Raumwirkung
+ Nebengebäude mit viel Nutzfläche und Stromanschluss
+ Charaktervoller Gewölbekeller
+ Privater Innenhof mit Weinstock und Brunnen
+ Vielfältige Nutzungsmöglichkeiten für Wohnen, Arbeiten und Freizeit
+ Parkett- und Laminatböden
Lage
Allgemeine Lage
Bruchköbel-Roßdorf verbindet ruhige, dörfliche Wohnqualität mit guter Erreichbarkeit der Zentren im Rhein-Main-Gebiet. Die Nachbarschaft ist überwiegend von Einfamilienhäusern geprägt und bietet eine angenehme Wohnumgebung für Familien.
Versorgungsangebot
Für den täglichen Bedarf stehen in Roßdorf und im nahegelegenen Bruchköbel Supermärkte, Bäckereien, Drogerien sowie Fachgeschäfte zur Verfügung; Ärzte und Apotheken sind vor Ort erreichbar. Die Stadt betreibt mehrere Kindertagesstätten und bietet damit ein breites Betreuungsangebot für Familien.
Verkehrsanbindung und Mobilität
Die Verkehrsanbindung ist gut: Roßdorf/Bruchköbel ist verkehrlich an die B45 sowie die Autobahnen A66/A45 angebunden, was schnelle Pkw-Verbindungen Richtung Hanau und Frankfurt ermöglicht.
ÖPNV-Anbindung: Buslinien bedienen Roßdorf fußläufig, der Bahnhof Bruchköbel liegt in kurzer Fahrdistanz (rund 1,4 km) und bietet Regionalzug-Verbindungen; von dort sind unter anderem Hanau und der regionale Bahnverkehr gut zu erreichen. Darüber hinaus ist der Bahnhof Windecken nur etwa 5 km bzw. 5 Pkw-Minuten entfernt. Von hier verkehrt eine Regionalbahn, die das Frankfurter Zentrum in rund 30 Minuten erreicht — eine attraktive Option für Pendler.
Freizeit & Erholung
Roßdorf/Bruchköbel verfügt über mehrere Spielplätze, Sport- und Vereinsangebote (z. B. Fußball, Tennis, Reiten), die Kindern und Jugendlichen ein reiches Freizeitangebot bieten. In der näheren Umgebung beginnen Wander- und Radwege ins Grüne; die Region bietet damit vielfältige Möglichkeiten für Familienaktivitäten im Freien.
Sonstige Angaben
HAFTUNG: Wir weisen darauf hin, dass die von uns weitergegebenen Objektinformationen, Unterlagen, Pläne etc. ausschließlich auf Informationen basieren, die uns vom Verkäufer zur Verfügung gestellt wurden. Wir übernehmen keine Gewähr für die Vollständigkeit, Richtigkeit und Aktualität dieser Angaben. Alle Immobilienangebote sind freibleibend und vorbehaltlich Irrtümer, Zwischenverkauf- und Vermietung oder sonstiger Zwischenverwertung. Die Bilder im Exposé können vom tatsächlichen Ergebnis abweichen.
GELDWÄSCHE: Wir weisen darauf hin, dass Immobilienmaklerunternehmen nach § § 1, 2 Abs. 1 Nr. 10, 4 Abs. 3 Geldwäschegesetz (GwG) vor dem Entstehen einer Geschäftsbeziehung zur Feststellung und Überprüfung des Vertragspartners verpflichtet sind. Dies erfolgt z.B. durch eine Kopie Ihres Personalausweises. Die Angaben hieraus müssen gemäß Geldwäschegesetz fünf Jahre aufbewahrt werden.
Grundriss
Grundriss Keller
>
>
Grundriss Obergeschoss
>
>
Grundriss Hochparterre
>
>
Adresse
63486 Bruchköbel
Interessante Orte
Preis- und Lageinformationen
Preistrend für Bestandsimmobilien in Bruchköbel