Mit unserem einzigartigen NEUBAUPROJEKT KfW KFN-40 Effizienzhaus in ruhiger und gesuchter Wohnlage von Langen keine 15 Minuten mit dem Auto von Frankfurt am Main entfernt, entsteht für Sie und Ihre Familie eine MODERNE Doppelhaushälfte -HAUS 2- im Bauhausstil mit südlicher Ausrichtung, Balkon, großer Terrasse und schönem Garten – einfach zum Wohlfühlen. Das Leistungspaket umfasst bereits in der Grundausstattung eine Luft-Wasser Wärmepumpe mit Kühlung im Sommer, Gäste –WC mit bodentiefer Dusche im EG, 2 Tageslichtbäder mit bodentiefen Duschen und einer Wanne im OG, Fenster mit 3-fach Verglasung, Malerarbeiten sowie Bodenbeläge nach Wunsch, elektrische Rollläden, Fußbodenheizung, Photovoltaikanlage, Terrasse, Balkon, 2 PKW - Stellplätze und vieles mehr siehe Ausstattungsmerkmale. Haus 1 mit ca.144,26 qm Wohnfläche, 323 qm Grund, Preis € 898.600,- Haus 2 mit ca.162,98 qm Wohnfläche, 345 qm Grund, Preis € 998.100,- Die zwei modernen Doppelhausheälften werden von einem unserer sehr erfahrenen und bonitätsstarken Bauträgerpartnern errichtet - Erstellungsziel ca. Q4 /2026. Hier wird hochwertig mit Markenprodukten gearbeitet. Änderungswünschen sind in der Raumaufteilung (nicht tragende Wände) noch möglich. Der Projektierer mit Erfahrung - Der Bauträger mit Substanz - Der Makler mit Nachhaltigkeit - Sie haben Interesse an einem neuen Familiendomizil – dann rufen Sie einfach unser freundliches Team von PREISS-IMMOBILIEN an. Wir freuen uns auf Ihren Anruf.
Modernes Wohnen in Langen! KfW 40 NH DHH im Bauhausstil mit Terrasse, Balkon und Garten!
63225 Langen (Hessen)
Die vollständige Adresse der Immobilie erhalten Sie vom Anbieter.
Auf Karte anzeigen
Die vollständige Adresse der Immobilie erhalten Sie vom Anbieter.

Finanzierungszertifikat
In nur zwei Minuten zu Ihrem persönlichen Finanzierungszertifkat.
Infos
Haustyp | Doppelhaushaelfte |
---|---|
Etagenzahl | 2 |
Wohnfläche ca. | 162 m2 |
Nutzfläche | 76,4 m2 |
Grundstücksfläche | 345 m2 |
Zimmer | 6,5 |
Schlafzimmer | 5 |
Badezimmer | 3 |
Garage/Stellplatz | Außenstellplatz |
Anzahl Garage/Stellplatz | 2 |
Kosten
Kaufpreis |
998.100 € |
---|---|
Provision |
2,975% des Kaufpreises inkl. der gesetzlichen Mehrwertsteuer Nach Vertragsabschluss hat der Käufer an Preiss Immobilien die Provision in Höhe von 2,975% des Kaufpreises inkl. der gesetzlichen Mehrwertsteuer zu zahlen. Mit dem Verkäufer wurde gem. § 656c BGB die Maklerprovision in identischer Höhe wie die Käufer-Maklerprovision vereinbart. |
Finanzierungsrechner:
Kaufpreis:
600.000 €
Eigenkapital:
600.000 €
Monatliche Rate
0 €
Effektiver Jahreszins
0 %
Sollzinsbindung
10 Jahre
Bausubstanz & Energieausweis
Baujahr | 2027 |
---|---|
Bauphase | Haus in Planung (projektiert) |
Objektzustand | Erstbezug |
Qualität der Austattung | Gehoben |
Heizungsart | Wärmepumpe |
Wesentliche Energieträger | Strom |
Energieausweis | liegt vor |
Energieausweistyp | Bedarfsausweis |
Energieverbrauchskennwert | 20,0 kWh/(m²*a) |
Energieeffizienzklasse | A+ |
20,0
kWh/(m²*a)
Energieeffizienzklasse A+
- A+
- A
- B
- C
- D
- E
- F
- G
- H
- 0
- 25
- 50
- 75
- 100
- 125
- 150
- 175
- 200
- 225
- >250
Beschreibung des Objekts
Ausstattung
- KfW KFN-40 Effizienzhaus, KfW förderfähig - Luft - Wasser - Wärmepumpe und Fußbodenheizung mit Kühlung in den Sommermonaten und warme Füße im Winter - Photovoltaikanlage plus Batteriespeicher - Lüftungsanlage - Zellulose / Holzfaser-Dachdämmung - Fenster mit 3-fach Verglasung - Markenausstattung für Elektro- und Sanitär - Multimedia in allen Zimmern - Bodenbeläge nach Wunsch - Malerarbeiten - Terrasse und Balkon - Fahrradabstellplätze - 2 PKW - Stellplätze - Energiebedarf der Gebäude: Endenergiebedarf: ca. 20 kWh / (m²a) Primärenergiebedarf: ca. 10 kWh / (m²a) Energieeffizienzklasse A+
Lage
Langen hat ca. 35.000 Einwohner und liegt etwa in der Mitte zwischen Frankfurt und Darmstadt (ca. 15 km Luftlinie). Das Haus selbst befindet sich in ruhiger Stadtrandlage und dennoch nur unweit vom Bäcker, der Post oder dem Super- und Drogeriemarkt entfernt. Zudem bietet das Gewerbegebiet Egelsbach mit einem Rewe Super Center, einem Media Markt und vielen anderen Geschäften viele Einkaufsmöglichkeiten. Die Infrastruktur ist mit Bushaltestellen, einem eigenen Bahnhof und kurzen Wegen zu den Autobahnen A611, A5 und A3 optimal ausgebaut. Die S-Bahnlinien (15 min Takt und nur 20 min Fahrzeit bis zur Konstablerwache) bringt einen auch ohne Auto schnell nach Frankfurt oder den Frankfurter Flughafen ca. 15 Minuten Fahrzeit. Alternativ verkehrt stündlich ein Zug zum HBF (9 min.). Die Fahrzeit nach Darmstadt ist ähnlich. Trotz dieser Nähe gibt es in Langen fast keinen Fluglärm. Langen verfügt über große Waldgebiete und hat mit dem Langener Waldsee auch ein Sommer Highlight. Der Odenwald und die Bergstraße eignen sich für kleine Ausflüge ebenfalls gut.
Sonstige Angaben
Für die sorgfältig zusammengetragenen Angaben können wir trotz ständiger Prüfung auf Richtigkeit und Vollständigkeit keine Gewähr geben, da wir uns hierbei auf die Informationen der Verkäufer und Dritter verlassen müssen. Diese Informationen werden hiermit nur dem Empfänger zugetragen, der bei unerlaubter Weitergabe an Dritte für die Provision haftet. Diese Angebot ist freibleibend unter Vorbehalt eines Zwischenverkaufs. Nach Vertragsabschluss hat der Käufer an Preiss Immobilien die Provision in Höhe von 2,975% des Kaufpreises inkl. der gesetzlichen Mehrwertsteuer zu zahlen. Mit dem Verkäufer wurde gem. § 656c BGB die Maklerprovision in identischer Höhe wie die Käufer-Maklerprovision vereinbart. PREISS IMMOBILIEN Ihr kompetenter Partner für den Verkauf und die Werteinschätzung Ihrer Immobilie im Rhein-Main-Gebiet und Raum Wiesbaden. Wir freuen uns auf Ihren Anruf.
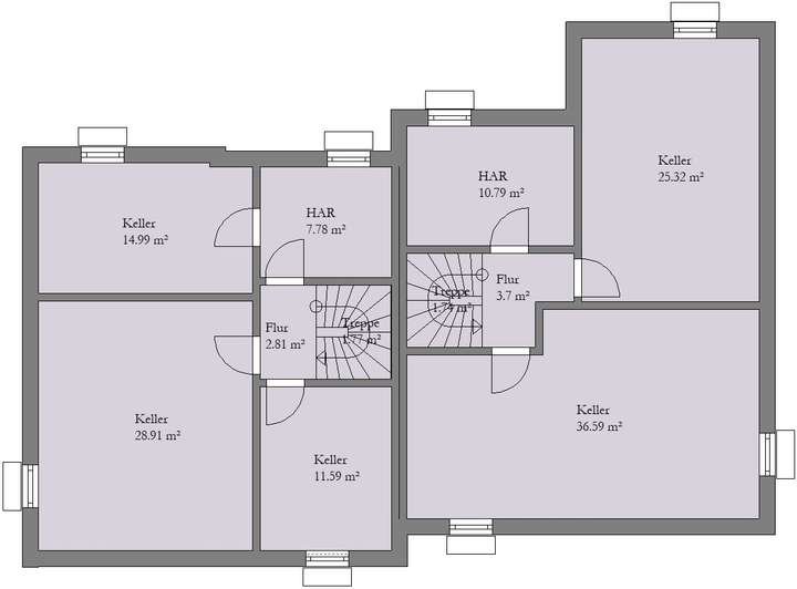
Grundriss
PrI 9308 Grundriss EG Haus 2
>

PrI 9308 Grundriss OG Haus 2
>

PrI 9308 Grundriss KG Haus 2
>

Adresse
63225 Langen (Hessen)
Interessante Orte
Preis- und Lageinformationen
Preistrend für Bestandsimmobilien in Langen (Hessen)