Im Karree angeordnetes Haus mit 4 separaten Wohnungen / Einheiten, Innenhof und großer Doppelgarage.
Die Liegenschaft wurde 1993 neu aufgebaut, aufgeteilt und im Laufe der letzten Jahre modernisiert.
Im Jahr 2018 wurde eine neue Gasheizungsanlage mit Pufferspeicher eingebaut.
Alle Wohnungen verfügen über einen eigenen separaten Eingang und sind mit Fussbodenheizung und Tageslichtbädern ausgestattet.
Die Wohnungen sind Stand Mai 2025 alle vermietet und verfügen über Einbauküchen.
Es liegt eine Teilungserklärung vor über 4 Einheiten vor.
Eine Wohnung ist als Gewerbe deklariert und müsste dementsprechend zu Wohnzwecken umgenutzt werden, oder weiterhin als Gewerbefläche genutzt werden.
*Für Kapitalanleger, oder Aufteiler* Wohn-Ensemble mit 4 separaten Einheiten und Doppelgarage
Marktstr. 2b,
60388 Frankfurt am Main
Auf Karte anzeigen
Finanzierungszertifikat
In nur zwei Minuten zu Ihrem persönlichen Finanzierungszertifkat.
Infos
| Haustyp | Mehrfamilienhaus |
|---|---|
| Etagenzahl | 2 |
| Wohnfläche ca. | 301 m2 |
| Grundstücksfläche | 271 m2 |
| Zimmer | 10 |
| Badezimmer | 4 |
| Garage/Stellplatz | Garage |
| Anzahl Garage/Stellplatz | 2 |
Kosten
| Kaufpreis |
890.000 € |
|---|---|
| Provision |
7,14% inkl. 19% MwSt. Die Courtage in Höhe von 7,14% inkl. gesetzl. MwSt. auf den Gesamt-Kaufpreis ist bei notariellem Vertragsabschluss fällig und vom Käufer an die AIS Alvarez Immobilien Service zu zahlen. |
| Mieteinnahmen | 4.000 € |
Finanzierungsrechner:
Kaufpreis:
600.000 €
Eigenkapital:
600.000 €
Monatliche Rate
0 €
Effektiver Jahreszins
0 %
Sollzinsbindung
10 Jahre
Bausubstanz & Energieausweis
| Baujahr | 1993 |
|---|---|
| Letzte Sanierung | 2018 |
| Bauphase | Haus fertig gestellt |
| Objektzustand | Modernisiert |
| Qualität der Austattung | Gehoben |
| Heizungsart | Zentralheizung |
| Wesentliche Energieträger | Gas |
| Energieausweis | liegt zur Besichtigung vor |
Beschreibung des Objekts
Ausstattung
Modernisierte Ausstattung
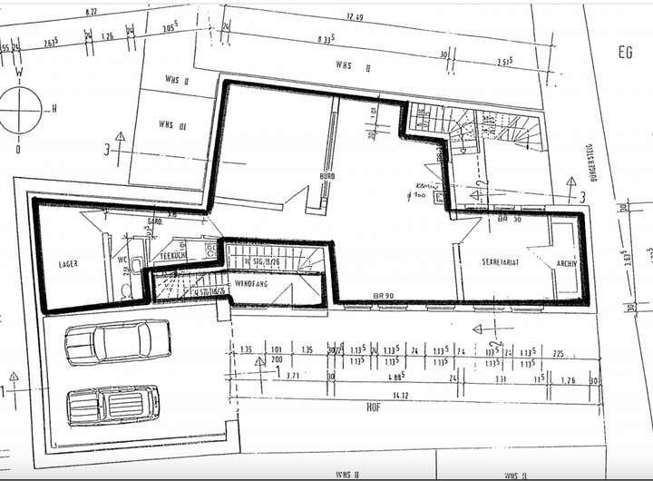
Wohnung / Gewerbe 1 EG mit ca. 112m²
- Einbauküche
- separater Eingang
- Fussbodenheizung
- Zugang zum Innenhof
- Kellerraum
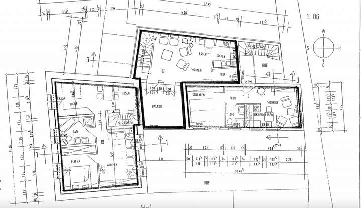
Wohnung 2 im 1. OG links & DG
- 2 Zimmer, Küche, Bad
- Fussbodenheizung
- Bad mit Tageslicht
- separater Zugang
- Kellerraum
Wohnung 3 im 1. OG links
- 3 Zimmer, Küche, Bad
- Maisonette 1. OG & DG
- Fussbodenheizung
- Bad mit Tageslicht
- Balkon zum Innenhof
- separater Zugang
- Kellerraum
Wohnung 4 über Garage
- 4 Zimmer, Küche, Bad
- Maisonette 1. OG & DG (über Garage)
- offene Bauweise
- Fussbodenheizung
- Bad mit Tageslicht
- separater Zugang
- Kellerraum
Untergeschoß
- 3 Kellerabteile
- Waschküche
- Heizungsraum (Gasheizung)
- separater Kellerraum
Lage
Die Wohnungen befinden sich in einem modernisierten Vier-Parteienhaus in guter Lage vom Frankfurter Stadtteil Bergen.
In Frankfurt-Bergen-Enkheim vereint sich eine traumhaft grüne Umgebung mit der hervorragenden Infrastruktur der hessischen Mainmetropole.
In der direkten Wohnumgebung genießen Sie eine Idylle im Grünen, ohne dabei auf städtischen Komfort verzichten zu müssen.
Geschäfte des täglichen Bedarfs, wie Bäckereien, Metzger, oder Supermärkte, sind fußläufig erreichbar. 2 Apotheken und Ärzte verschiedener Fachrichtungen sind ebenso fußläufig erreichbar wie auch Schule und Kindergärten.
Ebenfalls in unmittelbarer Umgebung befinden sich ausreichend Freizeitmöglichkeiten, wie Schwimmbad, Tennis- oder Fußballplatz, sowie Wander- und Radwege und weitläufige Felder und Wälder.
Mit dem Stadtbus, oder fussläufig, erreicht man in wenigen Minuten die U-Bahn-Station “Enkheim”, von der man mit der U7 in knapp 15 Minuten an der Konstablerwache ist.
Auch bietet das in der Nähe befindliche, modernisierte Einkaufszentrum "Hessen Center" viele Geschäfte, Restaurants und Cafés.
Zudem verfügt man über guten Anschluss an die Autobahn 66 und die Bundesstraße 521, die südlich und nördlich des Stadtteils verlaufen. Ebenfalls in nur wenigen Fahrminuten ist die A661, sowie der Anschluss zur A3 erreichbar.
Zum Flughafen benötigt man nur ca. 20 Minuten.
Sonstige Angaben
Herr Alvarez steht Ihnen unter 06109-3757-111 für die Abstimmung eines individuellen Termins gerne zur Verfügung.
Auf Wunsch lassen wir Ihnen auch gerne ein unverbindliches Finanzierungsangebot durch eine unserer Partnerbanken erstellen.
Bitte beachten Sie, dass wir nur komplett ausgefüllte Anfragen beantworten können.
Nach persönlichem Kontakt, erhalten Sie alle benötigten Unterlagen.
Alle vorgenannten Angaben sind ohne Gewähr und basieren ausschließlich auf Informationen, die uns von unserem Auftraggeber / Eigentümer übermittelt wurden.
Wir übernehmen keine Gewähr für die Vollständigkeit, Richtigkeit und Aktualität dieser Angaben.
Irrtum und Zwischenverkauf vorbehalten.
Auf Wunsch stehen wir Ihnen mit weiteren Informationen zum Objekt und zum Eigentümer gerne zur Verfügung.
Eine Prospekthaftung wird ausgeschlossen.
GELDWÄSCHE:
Als Immobilienmaklerunternehmen ist die Alvarez Immobilien Service nach § § 1, 2 Abs. 1 Nr. 10, 4 Abs. 3 Geldwäschegesetz (GwG) dazu verpflichtet, vor Begründung einer Geschäftsbeziehung die Identität des Vertragspartners festzustellen und zu überprüfen. Hierzu ist es erforderlich, dass wir die relevanten Daten Ihres Personalausweises festhalten – beispielsweise mittels einer Kopie. Das Geldwäschegesetz (GwG) sieht vor, dass der Makler die Kopien bzw. Unterlagen fünf Jahre aufbewahren muss.
Weitere Dokumente
1003 LiegenschaftskarteGrundriss
GR EG
>
>
GR 1. OG
>
>
GR DG
>
>
Gr Keller
>
>
Adresse
Marktstr. 2b, 60388 Frankfurt am Main
Interessante Orte
Preis- und Lageinformationen
Preistrend für Bestandsimmobilien in Bergen-Enkheim