Auf dem ca. 906 m² großen Grundstück wurde 1955 ein Haus in Massivbauweise erbaut, welches 1997 um einen Anbau erweitert wurde.
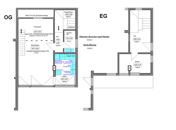
Ihnen stehen somit insgesamt 222 m² Wohnfläche zur Verfügung, wovon sich ca. 133 m² in dem größeren Bereich und ca. 89 m² im Anbau befinden.
Sie finden im Haupthaus einen Wohnbereich mit Kamin, ein Gäste-WC, die Küche mit Durchreiche und das vom Wohnzimmer offen zugängliche Esszimmer im Erdgeschoss.
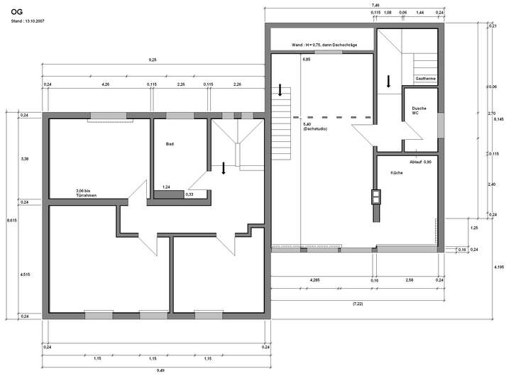
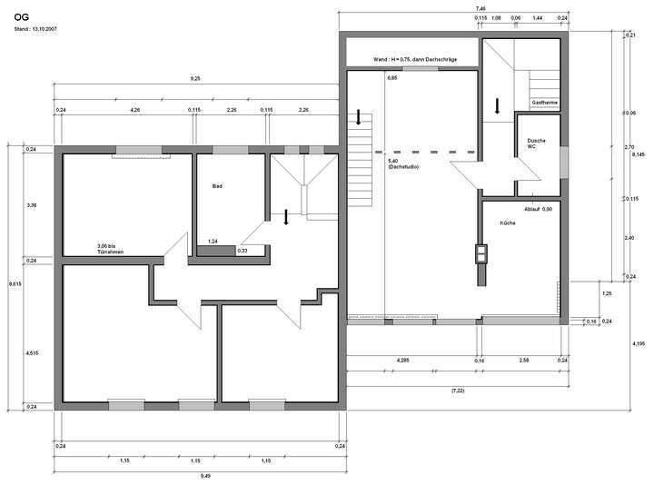
Im Obergeschoss befinden sich das Badezimmer mit Badewanne, WC und Fenster sowie die 3 Schlafzimmer.
Die zweite Wohneinheit betreten Sie durch die seitlich am Haus befindliche Eingangstür. Hier sind im Erdgeschoss das Schlafzimmer und das Büro / Garderobenbereich gelegen.
Über eine Steintreppe gelangen Sie in das Obergeschoss, wo sich neben dem Duschbad mit WC und Fenster das große Wohnzimmer mit anschließender Küche befindet.
Über eine Treppe gelangen Sie in das Dachgeschoss, welcher zur Zeit nur als Abstellmöglichkeit dient. Hier ist mit wenig Aufwand die Erschaffung eines weiteren Raumes (Schlafen, Hobby, etc.) möglich.
Wird die Küche im Anbau nicht benötigt, so kann mit wenig Aufwand ein weiteres Schlafzimmer geschaffen werden.
Den großen idyllischen Garten erreichen Sie entweder über die Terrasse vom Esszimmer des Haupthauses abgehend oder indem Sie rechts am Haus entlang gehen, wo sich auch der zweite Eingang befindet. Es gibt einige Obstbäume, einen kleinen Teich, Grillplatz für gemütliche Abende mit Freunden und Familie, eine Pergola mit Sitzgruppe, ein kleines Gartenhäuschen, Beete und ein Hochbeet. Der Garten ist teilweise durch alten Baum- und Heckenbestand schön bewachsen und uneinsichtig.
Sie sind neugierig geworden und möchten sich diese tolle Immobilie einmal persönlich anschauen?
Rufen Sie mich gerne unter 0176 / 32061064 an 7 Tagen in der Woche in der Zeit von 10 Uhr bis 22 Uhr an oder schreiben Sie mir eine E-Mail an becker@kmw-immobilien.de oder nutzen Sie einfach das Kontaktformular auf dieser Webseite.
Einfamilienhaus mit großem Garten und Kamin **2 Eingänge möglich**
Gablonzer Strasse 25,
38259 Salzgitter
Auf Karte anzeigen
Finanzierungszertifikat
In nur zwei Minuten zu Ihrem persönlichen Finanzierungszertifkat.
Infos
| Haustyp | Einfamilienhaus |
|---|---|
| Etagenzahl | 2 |
| Wohnfläche ca. | 222 m2 |
| Grundstücksfläche | 906 m2 |
| Bezugsfrei ab | sofort |
| Zimmer | 8 |
| Schlafzimmer | 5 |
| Badezimmer | 2 |
| Anzahl Garage/Stellplatz | 2 |
Kosten
| Kaufpreis |
270.000 € |
|---|---|
| Provision |
5,95% inkl. 19% USt. Da es sich rein baulich um ein Zweifamilienhaus handelt, ist die Provision in Höhe von 5,95% inkl. MWST. verdient, fällig und in voller Höhe vom Käufer zahlbar, nach Abschluß des notariellen Kaufvertrages. |
Finanzierungsrechner:
Kaufpreis:
600.000 €
Eigenkapital:
600.000 €
Monatliche Rate
0 €
Effektiver Jahreszins
0 %
Sollzinsbindung
10 Jahre
Bausubstanz & Energieausweis
| Baujahr | 1955 |
|---|---|
| Letzte Sanierung | 2023 |
| Bauphase | Haus fertig gestellt |
| Objektzustand | Gepflegt |
| Qualität der Austattung | Normal |
| Heizungsart | Gas-Heizung |
| Wesentliche Energieträger | Gas |
| Energieausweis | liegt vor |
| Energieausweistyp | Verbrauchsausweis |
| Energieverbrauchskennwert | 111,0 kWh/(m²*a) |
| Energieeffizienzklasse | C |
111,0
kWh/(m²*a)
Energieeffizienzklasse C
- A+
- A
- B
- C
- D
- E
- F
- G
- H
- 0
- 25
- 50
- 75
- 100
- 125
- 150
- 175
- 200
- 225
- >250
Beschreibung des Objekts
Ausstattung
* Einfamilienhaus / Zweifamilienhaus
* Baujahr 1955 + Anbau 1997
* Grundstück ca. 906 m²
* Wohnfläche ca. 133 m² (Haus) + ca. 89 m² (Wohnung im Anbau)
* 2 Eingänge (Haustüren aus 2022)
* Haupthaus mit 5 Zimmern
* EG: Diele, Küche, Gäste-WC, Wohnzimmer, Esszimmer
* OG: 3 Schlafzimmer, Badezimmer
* Anbau mit 3 Zimmern
* EG: Schlafzimmer, Büro/Garderobe
* OG: Wohnzimmer, Bad, Küche, Treppe zum DG (zusätzliches Zimmer möglich)
* Keller
* Garage
* großer Garten
* Pavillon / Pergola
* Gartenhaus
* Grillplatz
* Teich
* Terrasse
* 2 Gasheizungen
* getrennte Zähler für Strom und Gas
* Elektrik aus 2013
* Fassade + Dämmung aus 2023
* Komplettrenovierung in 2021
* Kamin
* Fenster aus 2012 (Kunststoff-Doppeliso)
* Dachboden als Ausbaureserve im Haupthaus (1 bis 2 Zimmer)
* Bodenrichtwert 95 €/m²
* Grundstückswert 86.070€
* Strom derzeit 130 € + 60 € mtl.
* Gas derzeit 200 € + 120 € mtl.
* Wasser/Abwasser derzeit 40 € + 40 € mtl.
* Abfallgebühren derzeit 336 € pro Jahr
* Grundsteuer derzeit 191,50 € im Quartal
* Wohngebäudeversicherung 72 € mtl.
Lage
Das Haus befindet sich im hinteren und ruhigen Teil in Salzgitter Bad, dem ältesten Teil der Stadt.
Hier finden Sie eine optimale Kombination aus Naturnähe, idyllischer Ruhe und dem urbanen Komfort mit seiner sehr guten Infrastruktur.
Mit seinen charmanten Fachwerkhäusern, dem historischen Kurpark und einer Vielzahl an kulturellen sowie sportlichen Freizeitangeboten ist Salzgitter-Bad ein beliebter Wohnort für Familien.
Diese schätzen die Nähe zu Schulen, Kindergärten und Spielplätzen, während Berufstätige von der guten Verkehrsanbindung an die umliegenden Städte wie Braunschweig, Hannover und Göttingen profitieren.
Die Nahversorgung ist hervorragend: Supermärkte, Bäckereien, Ärzte und Apotheken sind in wenigen Minuten erreichbar. Darüber hinaus laden zahlreiche Cafés, Restaurants und lokale Geschäfte in der historischen Altstadt zum Verweilen ein.
Für Erholungssuchende bieten die nahegelegenen Wälder und Wanderwege vielfältige Möglichkeiten, die Natur zu genießen und vom Alltag abzuschalten.
Die Innenstadt von Salzgitter Bad mit ihren zahlreichen Einkaufsmöglichkeiten erreichen Sie in ca. 20 Gehminuten (ca. 1,5km).
Über die nahegelegene Bundesstrasse 6 haben Sie optimale Anbindung nach Hildesheim und zur A7.
Die Städte Salzgitter, Braunschweig und Goslar sind in weniger als 30 Fahrminuten erreichbar.
Sonstige Angaben
Sie haben weitere Fragen zu dieser Immobilie?
Sie wünschen einen Besichtigungstermin?
Dann rufen Sie mich unter 0176 / 320 610 64 an.
Sie erreichen mich telefonisch von Montag bis Sonntag, in der Zeit von 10-22 Uhr.
Oder per Email unter becker@mkw-immobilien.de
Alle Daten wie z.B. Grundrisse, Maße, Zeichnungen, Zustand, Ausstattung etc. beruhen auf den Angaben des Eigentümers / Verkäufers / Vermieters / Verwalters / Vormieters.
Eine Gewähr für die Richtigkeit dieser Angaben kann daher von "Mieten Kaufen Wohnen Immobilien - Marcel Becker" NICHT übernommen werden.
Das Angebot ist freibleibend.
Irrtum und Zwischenverkauf /-vermietung bleiben vorbehalten.
Bitte lesen Sie die Widerrufsbelehrung im Anhang.
Wünschen Sie eine Besichtigung vor Ablauf der 2-wöchigen Widerrufsfrist (ab Kontaktaufnahme), senden Sie bitte das Formular
"Vorzeitige Vertragserfüllung"
parallel zu Ihrer Kontaktaufnahme per Email an:
becker@mkw-immobilien.de
Vielen Dank.
WIDERRUFSBELEHRUNG
Widerrufsrecht
Sie haben das Recht, binnen vierzehn Tagen ohne Angabe von Gründen diesen Vertrag zu widerrufen. Die Widerrufsfrist beträgt vierzehn Tage ab dem Tag des Vertragsabschlusses.
Um Ihr Widerrufsrecht auszuüben, müssen Sie uns
Mieten Kaufen Wohnen Immobilien - Marcel Becker
Osnabrücker Landstr. 15y
30926 Seelze
Tel.: 0176 32061064
E-Mail: becker@mkw-immobilien.de
mittels einer eindeutigen Erklärung (z.B. ein mit der Post versandter Brief oder E-Mail) über Ihren Entschluss, diesen Vertrag zu widerrufen, informieren. Sie können dafür das beigefügte Muster-Widerrufsformular verwenden, das jedoch nicht vorgeschrieben ist.
Zur Wahrung der Widerrufsfrist reicht es aus, dass Sie die Mitteilung über die Ausübung des Widerrufsrechts vor Ablauf der Widerrufsfrist absenden.
Folgen des Widerrufs
Wenn Sie diesen Vertrag widerrufen, haben wir Ihnen alle Zahlungen, die wir von Ihnen erhalten haben, einschließlich der Lieferkosten (mit Ausnahme der zusätzlichen Kosten, die sich daraus ergeben, dass Sie eine andere Art der Lieferung als die von uns angebotene, günstigste Standardlieferung gewählt haben), unverzüglich und spätestens binnen vierzehn Tagen ab dem Tag zurückzuzahlen, an dem die Mitteilung über Ihren Widerruf dieses Vertrags bei uns eingegangen ist. Für diese Rückzahlung verwenden wir dasselbe Zahlungsmittel, das Sie bei der ursprünglichen Transaktion eingesetzt haben, es sei denn, mit Ihnen wurde ausdrücklich etwas anderes vereinbart; in keinem Fall werden Ihnen wegen dieser Rückzahlung Entgelte berechnet.
Haben Sie verlangt, dass die Dienstleistung während der Widerrufsfrist beginnen soll, so haben Sie uns einen angemessenen Betrag zu zahlen, der dem Anteil der bis zu dem Zeitpunkt, zu dem Sie uns von der Ausübung des Widerrufsrechts hinsichtlich dieses Vertrags unterrichten, bereits erbrachten Dienstleistungen im Vergleich zum Gesamtumfang der im Vertrag vorgesehenen Dienstleistungen entspricht.
Hinweis zum vorzeitigen Erlöschen des Widerrufsrechts
Ihr Widerrufsrecht erlischt bei einem Vertrag zur Erbringung von Dienstleistungen vorzeitig, wenn wir die Dienstleistung vollständig erbracht haben und mit der Ausführung der Dienstleistung erst begonnen haben, nachdem Sie dazu Ihre Ausdrückliche Zustimmung gegeben haben und gleichzeitig Ihre Kenntnis davon bestätigt haben, dass Sie Ihr Widerrufsrecht bei vollständiger Vertragserfüllung durch uns verlieren.
Weitere Dokumente
DatenschutzerklärungWiderrufsrecht
vorzeitige Vertragserfüllung
Energie-Verbrauchs-Ausweis-Gab
Grundriss
Grundriss-EG
>
>
Grundriss-OG
>
>
Grundriss-DG
>
>
Adresse
Gablonzer Strasse 25, 38259 Salzgitter
Interessante Orte
Preis- und Lageinformationen
Preistrend für Bestandsimmobilien in Bad