Wir bieten hier einen sehr gepflegten Winkelbungalow eines renommierten Fertighaus-Herstellers an, der sehr großzügig geschnitten ist und einen ebenso großen Vollkeller, wie das Erdgeschoss, hat. Fakten: Das Bad ist im Jahr 2024 als ein behinderten-gerechtes Duschbad neu umgebaut worden. Die Fenster haben alle elektrische Rollläden. Die Terrasse wurde neu angelegt mit einem Abgang mit Sicherheitsgeländer Der Schornsteinkopf wurde ebenso neu verkleidet mit Schieferplatten und Umrandung Der Vollkeller hat in fast jedem Raum ein Waschbecken (Wasseranschluss und Abfluss) Die Lage des Grundstücks kommt in Garbsen-Berenbostel nicht häufig vor. Es handelt sich hierbei um ein Eckgrundstück in einem Wendehammer, von dem man in wenigen Gehminuten den Berenbosteler See erreichen kann. Auf dem 890m² großen Grundstück können entspannt schöne Stunden mit Freunden und Familie erlebt werden. Auch für Kinder ist der Garten ein Paradies. Im Erdgeschoss ist die Zimmeranzahl variabel, da auch 2 Zimmer zu einem zusammengelegt werden könnten. Das Vollwalmdach verleiht dem Winkelbungalow ein schickes, adäquates Aussehen. Die vordere Grundstücksgrenze wurde 2024 mit einem Doppelstab-Zaun neu gestaltet. Ein Verkehrswertbericht über 500.000,-€ liegt dem Eigentümer vor (begründet durch das große Grundstück, welches lt. Katasteramt einen reinen Grundstückswert von 260.000,-€ hat). Ein Gebot kann nach einer Besichtigung abgegeben werden.
Schicker Winkelbungalow mit viel Platz in bevorzugter Lage in Berenbostel
30827 Garbsen
Die vollständige Adresse der Immobilie erhalten Sie vom Anbieter.
Auf Karte anzeigen
Die vollständige Adresse der Immobilie erhalten Sie vom Anbieter.

Finanzierungszertifikat
In nur zwei Minuten zu Ihrem persönlichen Finanzierungszertifkat.
Infos
Haustyp | Bungalow |
---|---|
Wohnfläche ca. | 163 m2 |
Nutzfläche | 163 m2 |
Grundstücksfläche | 890 m2 |
Zimmer | 5 |
Anzahl Garage/Stellplatz | 2 |
Kosten
Kaufpreis |
0 € |
---|---|
Provision |
3,57% incl. MwSt. Zu zahlen an die KF BauTec GmbH nach Abschluss des not. Kaufvertrages. |
Finanzierungsrechner:
Kaufpreis:
600.000 €
Eigenkapital:
600.000 €
Monatliche Rate
0 €
Effektiver Jahreszins
0 %
Sollzinsbindung
10 Jahre
Bausubstanz & Energieausweis
Letzte Sanierung | 2024 |
---|---|
Energieausweis | liegt zur Besichtigung vor |
Beschreibung des Objekts
Sonstige Angaben
Zzgl. 3,57% incl. MwSt. Maklerprovision, zu zahlen an die KF BauTec GmbH nach Abschluss des not. Kaufvertrages.
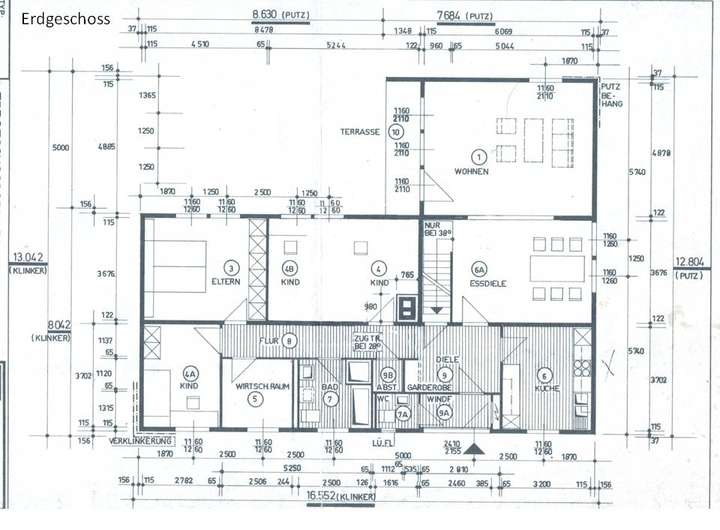
Grundriss
Folie60
>

Folie61
>

Folie62
>

Folie63
>

Folie64
>

Folie65
>

Folie66
>

Adresse
30827 Garbsen
Interessante Orte
Preis- und Lageinformationen
Preistrend für Bestandsimmobilien in Garbsen