Das Einfamilienhaus bietet eine großzügige Wohnfläche von 156m² in ruhiger zentraler Lage.
Die Bauweise ist massiv mit Verklinkerung, die teilweise mit einer Edelputzstruktur überzogen wurde.
Ein seperater Eingang zum Keller ist vorhanden.
Einige Türen und Fenster wurden 2022 erneuert.
Alle Fenster sind mit Einbaurolläden ausgestattet, einige davon sind elektrisch betrieben.
Große Gestaltungsmöglichkeiten der Räume und Wohnraumerweiterungen, z.B. im Dachgeschoß.
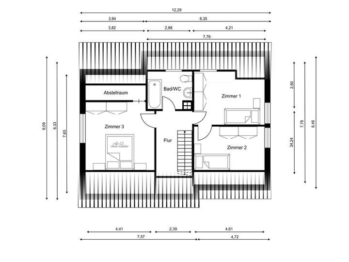
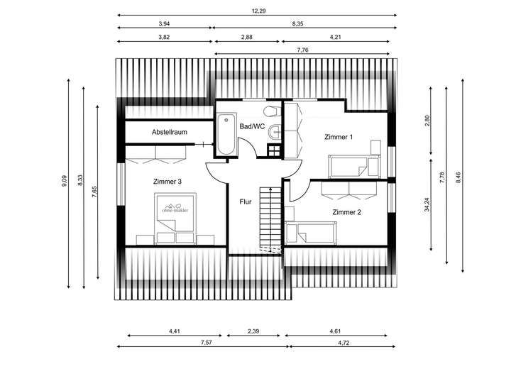
Es sind sechs Zimmer vorhanden, die als Schlaf- Büro oder Kinderzimmer genutzt werden können.
Es gibt 2 Badezimmer, diese wurden 2002 incl. Leitungsinstalation saniert.
Das Baujahr der Garage ist 1977 und 2018 wurde das Garagendach saniert.
Der Windfang und die Terrasse sind unterkelllert.
Das Haus hat eine Vollunterkellerung mit einer Deckenhöhe von 2,5m.
Damit ist sehr viel zusätzlicher Stauraum für Werkzeug, Gartengeräte oder Vorräte vorhanden.
Einfamilienhaus mit Garage in ruhiger Lage, provisionsfrei
38350 Helmstedt
Die vollständige Adresse der Immobilie erhalten Sie vom Anbieter.
Auf Karte anzeigen
Die vollständige Adresse der Immobilie erhalten Sie vom Anbieter.
Finanzierungszertifikat
In nur zwei Minuten zu Ihrem persönlichen Finanzierungszertifkat.
Infos
| Haustyp | Einfamilienhaus |
|---|---|
| Etagenzahl | 1 |
| Wohnfläche ca. | 156 m2 |
| Nutzfläche | 275 m2 |
| Grundstücksfläche | 439 m2 |
| Bezugsfrei ab | nach Absprache |
| Zimmer | 6 |
| Schlafzimmer | 4 |
| Badezimmer | 2 |
| Garage/Stellplatz | Garage |
| Anzahl Garage/Stellplatz | 1 |
Kosten
| Kaufpreis |
220.000 € |
|---|---|
| Provision | Nein |
Finanzierungsrechner:
Kaufpreis:
600.000 €
Eigenkapital:
600.000 €
Monatliche Rate
0 €
Effektiver Jahreszins
0 %
Sollzinsbindung
10 Jahre
Bausubstanz & Energieausweis
| Baujahr | 1973 |
|---|---|
| Bauphase | Haus fertig gestellt |
| Objektzustand | Erstbezug |
| Wesentliche Energieträger | Strom |
| Energieausweis | liegt vor |
| Energieausweistyp | Bedarfsausweis |
| Energieverbrauchskennwert | 207,4 kWh/(m²*a) |
| Energieeffizienzklasse | G |
207,4
kWh/(m²*a)
Energieeffizienzklasse G
- A+
- A
- B
- C
- D
- E
- F
- G
- H
- 0
- 25
- 50
- 75
- 100
- 125
- 150
- 175
- 200
- 225
- >250
Beschreibung des Objekts
Ausstattung
Garten, Keller, Vollbad, Duschbad, Gäste-WC, Laminat, Teppichboden, Fliesen
Bemerkungen:
Das Haus bietet:
Ein Duschbad im Dachgeschoß
Ein Hauptbad mit Badewanne im EG.
Im Kelller ist eine Werkstatt und ein Partykeller sowie eine
Waschküche und ein seperates WC vorhanden.
Der Garten ist in einem gepflegten Zustand und schön angelegt.
Lage
Ruhige Lage mit einer Parkanlage in unmittelbarer Umgebung.
Die überregionale Verkehrsanbindung ist optimal.
Die Autobahn A2, Bundesstrassen sowie der Bahnanschluß ist in der Nähe.
In wenigen Gehminuten kann der Kindergarten oder die Grundschule erreicht werden.
Ein Discounter und das Stadtzentrum sind auch in wenigen Gehminuten zu erreichen.
Infrastruktur (im Umkreis von 5 km):
Apotheke, Lebensmittel-Discount, Allgemeinmediziner, Kindergarten, Grundschule, Hauptschule, Realschule, Gymnasium, Gesamtschule, Öffentliche Verkehrsmittel
Sonstige Angaben
Heizungsart: Sonstiges (s. Text)
Energieträger: Strom
Makleranfragen nicht erwünscht. Nach § 7 UWG sind unaufgeforderte Kontaktaufnahmen durch Makler ohne ausdrückliche Einwilligung des Empfängers verboten!
ohne-makler (OM) ist weder Anbieter noch Vermittler der Immobilie. OM betreibt eine Plattform für Immobilieneigentümer, die unter anderem die gleichzeitige Veröffentlichung einzelner Inserate auf mehreren Immobilienportalen ermöglicht. Die Inhalte dieser Inserate werden ausschließlich von Dritten verantwortet. Für die Richtigkeit, Vollständigkeit oder Rechtmäßigkeit der Angaben übernimmt OM keine Haftung. Hinweise auf mögliche Rechtsverstöße können jederzeit gemeldet werden und werden nach Prüfung umgehend bearbeitet.
Grundriss
Dachgeschoss
>
>
Erdgeschoss
>
>
Keller
>
>
Garage
>
>
Adresse
38350 Helmstedt
Interessante Orte
Preis- und Lageinformationen
Preistrend für Bestandsimmobilien in Helmstedt