Dieses wunderschöne Ein- bis Zweifamilienhaus wurde im Jahr 1961 auf einem großzügigen Grundstück von 721 m² erbaut. In einer beliebten, idyllischen Wohnlage von Rödermark gelegen, fügt es sich harmonisch in eine gepflegte Nachbarschaft ein und bietet vielseitige Nutzungsmöglichkeiten.
Die Immobilie verfügt über ca. 162 m² Wohnfläche, die derzeit in zwei helle 3-Zimmer-Wohnungen aufgeteilt ist:
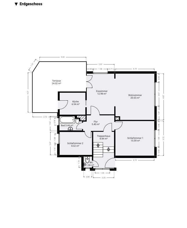
•Erdgeschoss (ca. 85 m²): 3 Zimmer, Küche, Tageslichtbad sowie eine Terrasse mit direktem Zugang zum Garten.
•Obergeschoss (ca. 77 m²): 3 Zimmer, Küche, Tageslichtbad und ein sonniger Balkon.
Zusätzlich bietet das Haus eine großzügige Nutzfläche von ca. 94 m² im Keller, die vielseitig verwendbar ist.
Das Highlight ist der schöne große Garten, der viel Platz zur Erholung bietet. Weiterhin stehen drei Garagen zur Verfügung.
Die beiden Wohnungen sind aktuell gut vermietet. Die monatlichen Mieteinnahmen belaufen sich auf:
•Erdgeschoss: 650 €
•Obergeschoss: 850 €
Dies ergibt eine jährliche Gesamtnettomiete von 18.000 €, was die Immobilie auch für Investoren interessant macht.
Fazit:
Ein gepflegtes Ein- bis Zweifamilienhaus mit großem Grundstück, attraktiver Aufteilung, solider Vermietung und besten Zukunftsperspektiven in einer der beliebtesten Lagen von Rödermark.
Ein- bis Zweifamilienhaus in idyllischer Ortslage - großer Garten, 3 Garagen -
63322 Rödermark
Die vollständige Adresse der Immobilie erhalten Sie vom Anbieter.
Auf Karte anzeigen
Die vollständige Adresse der Immobilie erhalten Sie vom Anbieter.
Finanzierungszertifikat
In nur zwei Minuten zu Ihrem persönlichen Finanzierungszertifkat.
Infos
| Haustyp | Mehrfamilienhaus |
|---|---|
| Etagenzahl | 2 |
| Wohnfläche ca. | 162 m2 |
| Nutzfläche | 94 m2 |
| Grundstücksfläche | 728 m2 |
| Zimmer | 6 |
| Badezimmer | 2 |
| Garage/Stellplatz | Garage |
| Anzahl Garage/Stellplatz | 3 |
Kosten
| Kaufpreis |
595.000 € |
|---|---|
| Provision |
3,57% inkl. MwSt. Wir haben einen provisionspflichtigen Maklervertrag mit dem Verkäufer in gleicher Höhe abgeschlossen. |
Finanzierungsrechner:
Kaufpreis:
600.000 €
Eigenkapital:
600.000 €
Monatliche Rate
0 €
Effektiver Jahreszins
0 %
Sollzinsbindung
10 Jahre
Bausubstanz & Energieausweis
| Baujahr | 1961 |
|---|---|
| Objektzustand | Gepflegt |
| Heizungsart | Zentralheizung |
| Wesentliche Energieträger | Gas |
| Energieausweis | liegt vor |
| Energieausweistyp | Bedarfsausweis |
| Energieverbrauchskennwert | 212,4 kWh/(m²*a) |
| Energieeffizienzklasse | G |
212,4
kWh/(m²*a)
Energieeffizienzklasse G
- A+
- A
- B
- C
- D
- E
- F
- G
- H
- 0
- 25
- 50
- 75
- 100
- 125
- 150
- 175
- 200
- 225
- >250
Beschreibung des Objekts
Lage
In Rödermark lässt es sich leben. Ohne die Hektik der nahen Großstädte, mitten in einer waldreichen Landschaft gelegen, hat sich Rödermark in den vergangenen Jahren zu einer aufstrebenden Stadt im südlichen Rhein-Main-Gebiet entwickelt. Soweit die Beschreibung in einer Broschüre der Stadt, die sich aus den beiden Hauptgemeinden Urberach und Ober-Roden und dem bereits 1957 Ober Roden angeschlossenen Messenhausen zusammensetzt.
Die Vergangenheit der Stadt als vorwiegend auf Landschaft ausgerichtete Gemeinde wird noch heute durch Fachwerkhäuser in den alten Ortskernen dokumentiert. Nichtsdestotrotz hat sich das Stadtbild Rödermarks natürlich weiterentwickelt und wird heute zunehmend durch moderne Bauten geprägt. Hier sind u. a. die Rathaus-Erweiterung in beiden Stadtteilen, Schulgebäude und Gebäude für öffentliche Einrichtungen zu erwähnen.
Für die Freizeit der Einwohner und Besucher wird eine Vielzahl von Betätigungsfeldern geboten.
Mit der S-Bahn erreichen Sie morgens und abends im Viertelstundentakt, tagsüber im Halbstundentakt die Mainmetropole Frankfurt und die Landeshauptstadt Wiesbaden.
Mit dem Auto erreichen Sie über die B45 und A3 in ca. 36 km die Mainmetropole Frankfurt. Darüber hinaus steht Ihnen die B26 nach Darmstadt und Aschaffenburg zur Verfügung.
Sonstige Angaben
Gerne stehen wir Ihnen für ein Beratungs- und Besichtigungstermin zur Verfügung.
Sie möchten selbst eine Immobilie verkaufen?
Wir ermitteln einen seriösen und marktgerechten Wert Ihrer Immobilie. Mit einem individuell für Sie abgestimmten Vermarktungsplan optimieren wir die Verkaufschancen. Als Tochtergesellschaft der Frankfurter Volksbank Rhein/Main unterstützt uns hierbei unser umfangreiches Netzwerk. Gerne begleiten wir Sie auf dem Weg zum erfolgreichen Verkauf Ihrer Immobilie und stehen Ihnen auch noch nach dem Beurkundungstermin zur Verfügung.
Für alle Fragen zur Finanzierung stehen Ihnen die Spezialisten der Frankfurter Volksbank Rhein/Main zur Verfügung. Hier stellen wir gerne einen Kontakt her.
Sprechen Sie uns an – wir freuen uns auf Sie!
Grundriss
Erdgeschoss
>
>
Obergeschoss
>
>
Kellergeschoss
>
>
Adresse
63322 Rödermark
Interessante Orte
Preis- und Lageinformationen
Preistrend für Bestandsimmobilien in Rödermark