Wir ersparen Ihnen Superlative wie "fantastisch", "super" oder "exklusiv" und versuchen Ihnen eine realistische Beschreibung der Immobilie zu geben.
Im alten Ortskern von Mainz-Bretzenheim gelegen. Angeboten wird ein leerstehendes Wohnhaus mit insgesamt drei Wohnungen. Erstellt auf einem kompakten, ca. 208 m² großen Grundstück mit kleinem Innenhof und einem PKW-Stellplatz. Das Haus aus dem Jahr 1925 verfügt über insgesamt ca. 205 m² Wohnfläche, verteilt auf 7 Zimmer mit entsprechenden Bädern und Küchen.
Die Liegenschaft besteht aus Vorder- und Hinterhaus, jeweils mit separaten Eingängen. Es bieten sich vielfältige Nutzungsmöglichkeiten. Das Vorderhaus erstreckt sich über Erdgeschoss, Obergeschoss und Speicher und ist teilunterkellert (Heizungsraum, Öltank, Werkstatt). Das Hinterhaus verfügt über zwei weitere Wohnungen. Eine im Erdgeschoss, eine weitere im Obergeschoss. Die Ölheizung stammt aus dem Jahr 1985, der Brenner wurde 2023 erneuert,
⚠️ Wichtiger Hinweis: Das Objekt wurde zuletzt 1970 umfassend modernisiert und weist heute einen erheblichen Sanierungsstau auf. Es eignet sich daher besonders für Handwerker, Investoren oder Käufer, die ein Haus nach eigenen Vorstellungen gestalten möchten.
Der Erwerb der Immobilie ist mit weiteren Investitionen verbunden und gleichzeitig angesichts der Lage eine mehr als sicheres Geldanlage.
Mainz-Bretzenheim, Dreifamilienhaus in wertstabiler Lage - Sanierung erforderlich
55128 Mainz
Die vollständige Adresse der Immobilie erhalten Sie vom Anbieter.
Auf Karte anzeigen
Die vollständige Adresse der Immobilie erhalten Sie vom Anbieter.
Finanzierungszertifikat
In nur zwei Minuten zu Ihrem persönlichen Finanzierungszertifkat.
Infos
| Haustyp | Einfamilienhaus |
|---|---|
| Etagenzahl | 2 |
| Wohnfläche ca. | 205 m2 |
| Grundstücksfläche | 208 m2 |
| Bezugsfrei ab | nach Absprache |
| Zimmer | 7 |
| Garage/Stellplatz | Außenstellplatz |
| Anzahl Garage/Stellplatz | 1 |
Kosten
| Kaufpreis |
459.000 € |
|---|---|
| Provision |
3,57% inkl. Mehrwertsteuer |
Finanzierungsrechner:
Kaufpreis:
600.000 €
Eigenkapital:
600.000 €
Monatliche Rate
0 €
Effektiver Jahreszins
0 %
Sollzinsbindung
10 Jahre
Bausubstanz & Energieausweis
| Baujahr | 1925 |
|---|---|
| Objektzustand | Renovierungsbedürftig |
| Heizungsart | Öl-Heizung |
| Wesentliche Energieträger | Öl |
| Energieausweis | liegt vor |
| Energieausweistyp | Bedarfsausweis |
| Energieverbrauchskennwert | 207,7 kWh/(m²*a) |
| Energieeffizienzklasse | G |
207,7
kWh/(m²*a)
Energieeffizienzklasse G
- A+
- A
- B
- C
- D
- E
- F
- G
- H
- 0
- 25
- 50
- 75
- 100
- 125
- 150
- 175
- 200
- 225
- >250
Beschreibung des Objekts
Lage
Mainz Bretzenheim. Zentral im alten Ortskern gelegen. Ruhige Wohnlage mit guter Anbindung an Einkaufsmöglichkeiten, öffentliche Verkehrsmittel und Infrastruktur.
Sonstige Angaben
Alle Angaben beruhen auf Informationen des Eigentümers/der Eigentümerin und sind trotz sorgfältiger Prüfung ohne Gewähr. Das Angebot ist freibleibend und ausschließlich für den Empfänger bestimmt. Irrtum und Zwischenverkauf sind vorbehalten. Es gelten unsere allgemeinen Geschäftsbedingungen (einzusehen unter www.ig-mainz.de/impressum/agb).
Käuferprovision: Käufer*in und Verkäufer*in zahlen jeweils 3,57% inkl. Mehrwertsteuer vom beurkundeten Kaufpreis an G.L. Kayser Immopartner GmbH Verdient und fällig mit Beurkundung.
Grundriss
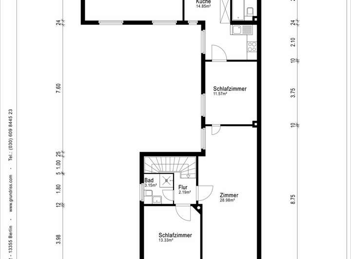
Grundriss EG
>
>
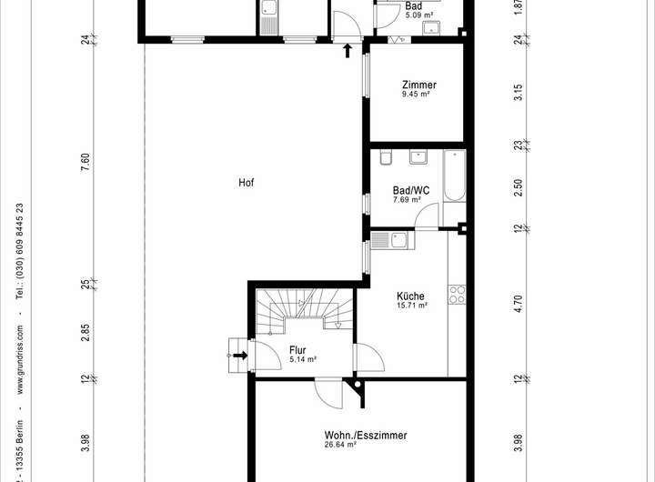
Grundriss OG
>
>
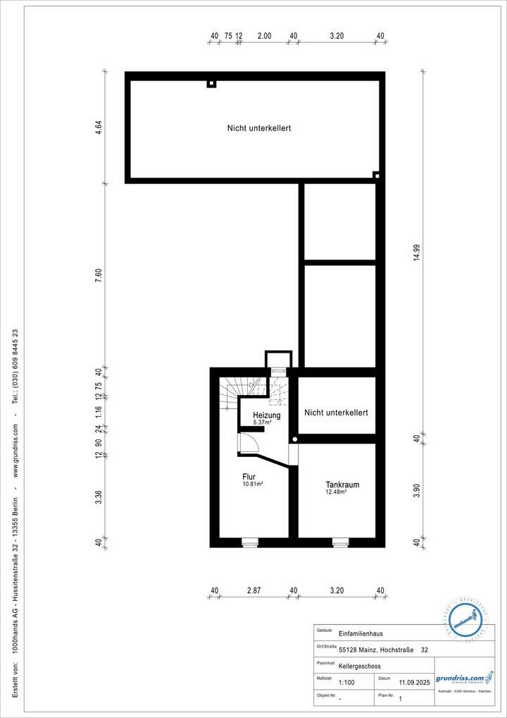
Grundriss Keller
>
>
Adresse
55128 Mainz
Interessante Orte
Preis- und Lageinformationen
Preistrend für Bestandsimmobilien in Bretzenheim