Das Einfamilienhaus mit einer Wohnfläche von 296.10 m² befindet sich derzeit in der Bauphase und wird in Holzbauweise errichtet. Es erstreckt sich über drei Etagen und verfügt über ein Satteldach. Die Energieeffizienzklasse A garantiert niedrige Energiekosten, während die Fußbodenheizung für angenehme Wärme sorgt. Ein Keller mit einer Fläche von 102,60 m² bietet zusätzlichen Stauraum und Platz für eine Einliegerwohnung. Auf einem Grundstück von 510 m² ist auch ein Parkplatz für ein Fahrzeug vorhanden. Mit insgesamt 7 Zimmern, einschließlich 5 Schlafzimmern und 3 Badezimmern, bietet das Haus ausreichend Platz für eine Familie. Die großzügig geschnittenen Räumlichkeiten sind lichtdurchflutet und bieten viel Raum für individuelle Gestaltungsmöglichkeiten. Durch die moderne Ausstattung und die hochwertigen Materialien wird ein gehobenes Wohngefühl geschaffen. Eine zusätzliche enthaltene Photovoltaikanlage mit einer Leistung von 8,4 kWp inkl. 8 kW Speicher sind enthalten und senken den Stromverbrauch im Sommer maßgeblich. Die Zukunft dieses projektierten Gebäudes verspricht ein komfortables und energieeffizientes Zuhause für seine zukünftigen Bewohner. Ein gelungenes Zusammenspiel aus modernem Design, hoher Funktionalität und nachhaltiger Bauweise machen dieses Einfamilienhaus zu einer attraktiven Immobilie mit viel Potential.
Einfamilienhaus mit Keller und Randlage
61479 Glashütten
Die vollständige Adresse der Immobilie erhalten Sie vom Anbieter.
Auf Karte anzeigen
Die vollständige Adresse der Immobilie erhalten Sie vom Anbieter.

Finanzierungszertifikat
In nur zwei Minuten zu Ihrem persönlichen Finanzierungszertifkat.
Infos
Haustyp | Einfamilienhaus |
---|---|
Etagenzahl | 3 |
Wohnfläche ca. | 296 m2 |
Grundstücksfläche | 510 m2 |
Bezugsfrei ab | 2025 |
Zimmer | 7 |
Schlafzimmer | 5 |
Badezimmer | 3 |
Kosten
Kaufpreis |
1.040.889 € |
---|---|
Provision | Nein |
Finanzierungsrechner:
Kaufpreis:
600.000 €
Eigenkapital:
600.000 €
Monatliche Rate
0 €
Effektiver Jahreszins
0 %
Sollzinsbindung
10 Jahre
Bausubstanz & Energieausweis
Qualität der Austattung | Gehoben |
---|
Beschreibung des Objekts
Ausstattung
Die hochwertig ausgestattete Immobilie verfügt über ein Badezimmer mit Badewanne, Dusche und einem Fenster für ausreichend Tageslicht. Zudem sind Rollläden vorhanden, um eine angenehme Verdunkelung zu gewährleisten. Ein weiterer Pluspunkt ist die Gästetoilette, die zusätzlichen Komfort für Bewohner und Gäste bietet. Die Qualität der Ausstattung kann als gehoben bezeichnet werden und sorgt für ein ansprechendes Ambiente im gesamten Wohnbereich. Die Ausstattungsbeschreibung des Hauses ist in der Bau- und Leistungsbeschreibung festgehalten.
Lage
Die Immobilie inkl. Grundstück liegt im Neubaugebiet „Am Silberbach“ in Glashütten-Schloßborn, einer der begehrtesten Wohngegenden der Region. Die ruhige und naturnahe Umgebung bietet eine hohe Lebensqualität. Einkaufsmöglichkeiten, Schulen und viele weitere Annehmlichkeiten befinden sich in unmittelbarer Nähe und sind bequem erreichbar. Hier verbinden sich ländlicher Charme und städtischer Komfort auf perfekte Weise. Die gute Anbindung an den öffentlichen Nahverkehr und die umliegenden Städte macht diese Lage besonders attraktiv für Familien und Pendler.
Sonstige Angaben
Alle Angaben sind nach bestem Wissen und Gewissen gemacht. Der Makler haftet nicht für Irrtümer oder Schriftfehler. Dem Käufer gegenüber entsteht keine Maklerprovision. Dieses Exposé ist eine Vorinformation, als Rechtsgrundlage gilt allein der notariell abgeschlossene Kaufvertrag. Das dargestellte Gebäude weicht von dem Bebauungsplan ab und kann somit nicht im Freistellungsverfahren beantragt werden. Das Gebäude enthält Sonderausstattungen gegenüber der Leistungsbeschreibung. Die Sonderausstattungen sind nicht im Preis inbegriffen.
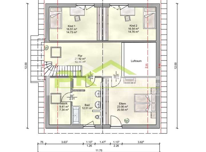
Grundriss
Grundriss KG
>

Grundriss EG
>

Grundriss DG
>

Schnitt
>

Adresse
61479 Glashütten
Interessante Orte
Preis- und Lageinformationen
Preistrend für Bestandsimmobilien in Glashütten