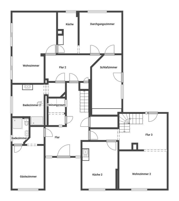
Objektnr: 1065206 Sie sind auf der Suche nach einem gemütlichen Zuhause für Ihre Familie, das mit einer besonderen Platzvielfalt punkten kann? Dann machen Sie dieses charmante Objekt zu Ihrem neuen Lebensmittelpunkt. Die vorteilhafte Lage am Stadtrand bietet Ihnen ruhige Wohnbedingungen und zugleich eine gute Anbindung an alle Anlaufstellen des täglichen Bedarfs. Ihren einladenden Zustand verdankt die 1896 erbaute Immobilie einem stets pfleglichen Umgang. Letzte Modernisierungsmaßnahmen wurden im Jahr 2009 durchgeführt. Auf einer familienfreundlichen Wohnfläche von ca. 214,44 m² bietet dieses Objekt genügend Platz für Paare und Familien: Es umfasst 9 Zimmer, darunter 6 Schlafzimmer, auf 2 Etagen. Zum Grundriss des Objektes gehören außerdem 5 Badezimmer mit Dusche und Badewanne. Freuen Sie sich im Außenbereich über ein ca. 961 m² großes Grundstück. Herausragend ist der große Garten mit 2 Terrassen, wodurch Sie immer auf der Sonnenseite sind. Erwecken Sie Ihren grünen Daumen zum Leben und lassen Sie Ihre Kreativität erblühen. Weiteren Stauraum erreichen Sie zudem im Keller. Zudem ist das komfortable Abstellen Ihrer Pkw mithilfe eines Doppelcarports und eines Freistellplatzes möglich.
vielseitig nutzbare Immobilie: ob Ein- oder Dreifamilienhaus mit Garten und 2 Terrassen
31311 Uetze
Die vollständige Adresse der Immobilie erhalten Sie vom Anbieter.
Auf Karte anzeigen
Die vollständige Adresse der Immobilie erhalten Sie vom Anbieter.

Finanzierungszertifikat
In nur zwei Minuten zu Ihrem persönlichen Finanzierungszertifkat.
Infos
Haustyp | Einfamilienhaus |
---|---|
Etagenzahl | 2 |
Wohnfläche ca. | 214 m2 |
Nutzfläche | 113,2 m2 |
Grundstücksfläche | 961,08 m2 |
Bezugsfrei ab | nach Absprache |
Zimmer | 9 |
Schlafzimmer | 6 |
Badezimmer | 5 |
Garage/Stellplatz | Carport |
Anzahl Garage/Stellplatz | 2 |
Kosten
Kaufpreis |
295.000 € |
---|---|
Provision |
3,57 % Die Provision i.H.v. 3,57 % inkl. MwSt. ist mit Kaufvertragsbeurkundung fällig, sofern der Verkaufspreis über 83.000,00 € liegt. Liegt der Verkaufspreis dagegen bei/unter 83.000,00 €, ist die fest vereinbarte Mindestprovision i.H.v. mind. 5.950,00 € inkl. MwSt. mit Kaufvertragsbeurkundung fällig. Die Mindestprovision fällt insg. nur einmal an, wodurch Verkäufer und Käufer die Mindestprovision dann jeweils mit 2.975,00 € inkl. MwSt. tragen. |
Finanzierungsrechner:
Kaufpreis:
600.000 €
Eigenkapital:
600.000 €
Monatliche Rate
0 €
Effektiver Jahreszins
0 %
Sollzinsbindung
10 Jahre
Bausubstanz & Energieausweis
Baujahr | 1896 |
---|---|
Letzte Sanierung | 2009 |
Bauphase | Haus fertig gestellt |
Objektzustand | Gepflegt |
Qualität der Austattung | Normal |
Heizungsart | Zentralheizung |
Wesentliche Energieträger | Gas |
Energieausweis | liegt vor |
Energieausweistyp | Bedarfsausweis |
Energieverbrauchskennwert | 290,4 kWh/(m²*a) |
Energieeffizienzklasse | H |
290,4
kWh/(m²*a)
Energieeffizienzklasse H
- A+
- A
- B
- C
- D
- E
- F
- G
- H
- 0
- 25
- 50
- 75
- 100
- 125
- 150
- 175
- 200
- 225
- >250
Beschreibung des Objekts
Ausstattung
+ In familienfreundlicher Umgebung von Uetze, ideal für eine Eigennutzung + Der teils sichtgeschützte Garten auf ca. 961 m² großzügigem Grund lädt zum Verweilen ein - 2 Terrassen bereichern das Erlebnis + Der gute Zustand der Immobilie bietet beste Voraussetzungen für eine schnelle Nutzung - zuletzt gab es 2009 Instandsetzungen. + Komfort durch eine solide Ausstattung des Hauses + Das Objekt bietet Staufläche dank des Kellers sowie Platz für Pkw dank Doppelcarport und Freistellplatz
Lage
Lage: Am ruhigen Stadtrand von guter Erreichbarkeit der Anlaufstellen des tägl. Bedarfs profitieren Bildung und Betreuung: Weniger Stress am Morgen dank Kindergarten und Schule in fußläufiger Entfernung Nahversorgung: Supermarkt, Apotheke, Postfiliale und Bankfiliale im Umkreis von ca. 800 m zu finden Anbindung: Bus, Bahnhof und B188 komfortabel erreichbar - entspannte Anbindung an Fernstraßennetz und ÖPNV
Sonstige Angaben
Vereinbaren Sie noch heute einen Besichtigungstermin! _____________________________________________________ Alle Angaben sind ohne Gewähr und basieren ausschließlich auf Informationen, die uns von unserem Auftraggeber zur Verfügung gestellt wurden. Wir übernehmen keine Gewähr für die Vollständigkeit, Richtigkeit und Aktualität der Angaben.
Grundriss
Grundriss Skizze EG
>

Grundriss Skizze OG
>

Grundriss Skizze DG
>

Adresse
31311 Uetze
Interessante Orte
Preis- und Lageinformationen
Preistrend für Bestandsimmobilien in Uetze