Neubau: Doppelhaushälfte (Effizienzhaus 55) als Ausbauhaus auf 361,5m² Grundstück - 238m² Garten.
Wichtig: 2 Varianten als Ausbauhaus:
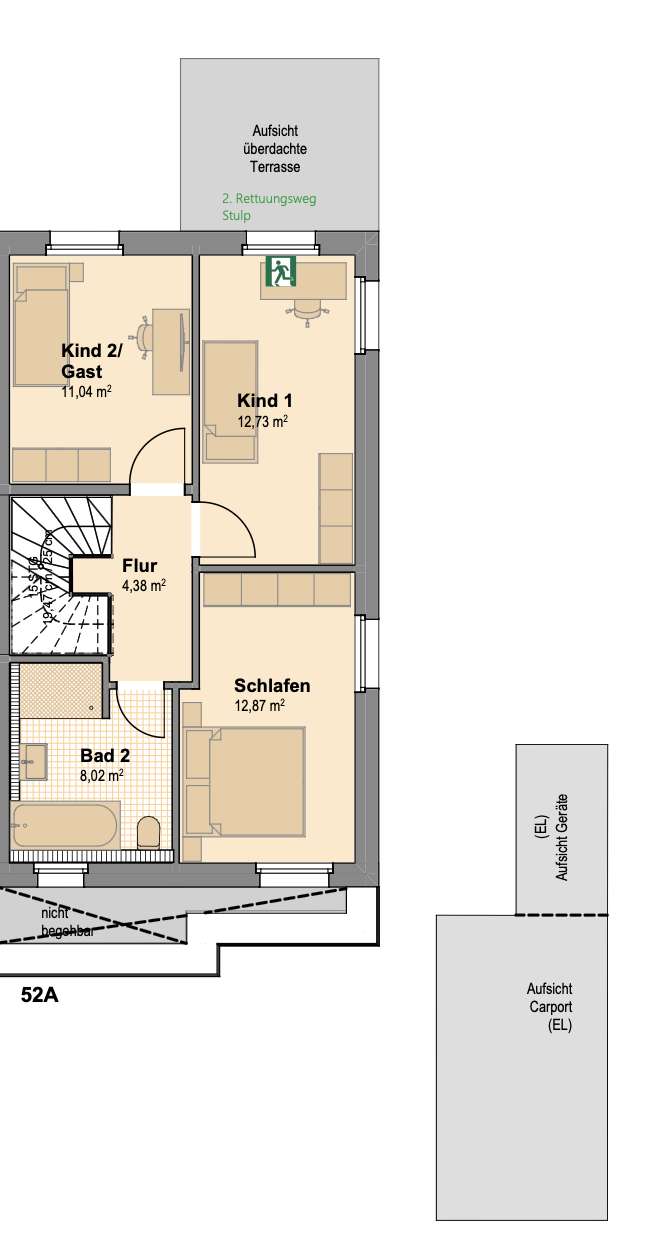
1) 384.900,00€ (4 Zimmer) wie im Grundriss dargestellt.
2) 387.900,00€ (5 Zimmer) INKLUSIVE im Grundriss nicht dargestelltes Arbeitszimmer und INKL. Dusche im Erdgeschoss!!
Hinweis: Ausbau ab den Estricharbeiten in Eigenleistung! Sie profitieren insbesondere dadurch, dass auf Leistungen, die in Eigenleistung, also unabhängig vom Bauträger ausgeführt werden, keine Kaufnebenkosten
(Notarkosten, Grunderwerbsteuer, Grundbucheintragung etc., üblicherweise ca. 7 % des Kaufpreises) anfallen.
In Eigenleistung:
• Fliesenarbeiten
• Sanitärobjekte (vorhanden sind Zu- u. Abflüsse sowie Halterungen/Spülkasten in der Vorwandinstallation. Lediglich Ventile für Zuflüsse müssen noch gesetzt werden)
• Innentüren
• Maler- und Fußbodenbelagsarbeiten
• Teile der Außenanlagen
Bei den Außenanlagen im Leistungsumfang enthalten sind die im Grundriss abgebildeten Zuwegungen zum Haus, die Pflasterung der Terrasse sowie die umlaufenden Spritzschutzstreifen
(nicht vorgesehen in Bereichen mit angrenzenden Pflasterflächen).
Auf Wunsch: Schlüsselfertig - sprechen Sie uns an, um mehr zu erfahren!
Neubau: Doppelhaushälfte (Energieeffizienzhaus 55) | 238 m² Garten | Terrasse | Stellplatz
Mühlenring 52A,
38554 Weyhausen
Auf Karte anzeigen
Finanzierungszertifikat
In nur zwei Minuten zu Ihrem persönlichen Finanzierungszertifkat.
Infos
| Haustyp | Doppelhaushaelfte |
|---|---|
| Wohnfläche ca. | 112 m2 |
| Grundstücksfläche | 362 m2 |
| Zimmer | 4 |
| Garage/Stellplatz | Außenstellplatz |
Kosten
| Kaufpreis |
384.900 € |
|---|---|
| Provision | Nein |
Finanzierungsrechner:
Kaufpreis:
600.000 €
Eigenkapital:
600.000 €
Monatliche Rate
0 €
Effektiver Jahreszins
0 %
Sollzinsbindung
10 Jahre
Bausubstanz & Energieausweis
| Baujahr | 2026 |
|---|---|
| Bauphase | Haus in Planung (projektiert) |
| Objektzustand | Erstbezug |
| Heizungsart | Wärmepumpe |
| Wesentliche Energieträger | Strom |
Beschreibung des Objekts
Ausstattung
ENERGIE, WÄRME, NACHHALTIGKEIT
- Energieeffizienzhaus 55, auf Wunsch auch förderfähiger, "klimafreundlicher Neubau" als Effizienzhaus 40 möglich (Mehrpreis)
- Geringer Energieverbrauch & niedriger Heizbedarf durch ...
• ... eine effiziente Luft-Wärmepumpe.
• ... eine Fußbodenheizung & Raumthermostate für die Aufenthaltsräume
• ... eine Warmwasserversorgung mit modernen energieeffizienten Durchlauferhitzern
- Vorbereitung Photovoltaik
- Dreifach-Wärmeschutz-Verglasung der Fenster inkl. 7-Kammer Profil mit 80 mm Blendrahmen.
- Die Außenwände werden aus nachhaltigen, sehr gut gedämmten Porotonsteinen bestehen. Dadurch entsteht im Winter und im Sommer ein hoher Wärmeschutz. Die Gebäudetrennwand wird zweischalig mit je 17,5 cm KS und einer 5cm Trennfuge ausgeführt. Für einen wirkungsvollen Schallschutz wird diese mit Dämmplatten (Splitrock Mineralwolle) gefüllt.
WOHNRÄUME:
- Helle, lichtdurchflutete Wohnräume durch eine großzügige Fensterverglasung
- Offene Koch-, Ess- und Wohnbereiche laden zum Wohlfühlen ein.
- Fußbodenheizung in allen Räumen.
- Eigener Technik- / Hauswirtschaftsraum
- Anschlüsse für Waschmaschinen,
Wäschetrockner & Spülmaschinen
- Rollläden mit Motoren, für die Beschattung der Räume.
AUßENANLAGE
- Eigentumsgrundstück mit privatem
Garten
- Terrasse in Ost-Westausrichtung mit
Überdachung
- 1 Autostellplatz pro Doppelhaushälfte
Optional: Carport und Geräteraum für den Garten (Mehrpreis)
Lage
Das Grundstück befindet sich in idyllischer Randlage des Neubaugebiets Klanze-Nord in Weyhausen und damit unmittelbar an der Wolfsburger Stadtgrenze.
Neben ländlichem Charme, Ruhe und Naturverbundenheit bietet Weyhausen alle Einrichtungen des täglichen Lebens, Einkaufsmöglichkeiten, eine Apotheke sowie Schulen und Kindergärten. Der Ortskern mit vielfältigem Angebot ist in wenigen Minuten fußläufig zu erreichen.
Direkt durch Weyhausen führt die Bundesstraße B188, die Wolfsburg und Gifhorn verbindet. Der Ort verfügt zudem über eine direkte Auffahrt auf die Autobahn A39, sodass auch nach Braunschweig und überregional eine ideale Anbindung besteht.
Auch mit öffentlichen Verkehrsmitteln lassen sich die Städte Wolfsburg, Gifhorn und Braunschweig sehr gut erreichen. Die Werkstore des Volkswagenwerks sind sowohl mit dem Auto aber auch dem Fahrrad in wenigen Minuten erreicht.
Die ruhige Randlage des Grundstücks bietet viel Raum für Erholung und einen traumhaften Fernblick in die Natur.
Für Naherholung und Spaziergänge im Grünen bietet sich südlich von Weyhausen das Allertal sowie das weitläufige Waldgebiet und Landschaftsschutzgebiet "Barnbruch" als natürliches Ausflugsziel.
Vielfältige kulturelle, sportliche und gastronomische Angebote finden Sie in den umliegenden Orten und Städten wie Wolfsburg und Gifhorn – seien es die Designer Outlets, das Kunstmuseum, das Mühlenmuseum und die Altstadt in Gifhorn oder die Autostadt.
Wenn Sie auf der Suche nach einem ruhigen und grünen Eigenheim sind und gleichzeitig von den vielfältigen Möglichkeiten und Angeboten des Stadtlebens profitieren möchten, sind Sie hier genau richtig.
Melden Sie sich ganz unverbindlich und lassen Sie sich von den vielfältigen Möglichkeiten und dieser einzigartigen Traumlage verzaubern - wir freuen uns auf Ihre Kontaktaufnahme!
Sonstige Angaben
Ihr Zuhause beginnt bei uns – zuverlässig aus einer Hand
Wie bei allen unseren Objekten übernehmen wir den Vertrieb als Bauträger selbst. Das bietet Ihnen den Vorteil, dass Ihnen unsere Mitarbeiter von Anfang an als verbindliche Ansprechpartner für die Planung, den Bau und die Projektabwicklung zur Verfügung stehen. Zudem fällt keine Maklerprovision an.
Leistungen gem. Baubeschreibung ohne Notarkosten und Grunderwerbsteuer. Änderungen und Irrtümer bleiben vorbehalten. Die Möblierung, Außenanlagen und andere Elemente dienen der Veranschaulichung und sind nicht Bestandteil der Leistung.
Abbildungen und Fotos sind beispielhafte Darstellungen. Wohnflächen- und Maßangaben geben den Stand der Planung wieder.
Kontaktieren Sie uns gerne - wir freuen uns, Sie hier oder telefonisch zu dieser schönen Doppelhaushälfte zu beraten!
Grundriss
Erdgeschoss Grundriss
>
>
Obergeschoss Grundriss
>
>
Adresse
Mühlenring 52A, 38554 Weyhausen
Interessante Orte
Preis- und Lageinformationen
Preistrend für Bestandsimmobilien in Weyhausen