In zentraler Lage von Bad Homburg sind zwei energieeffiziente Doppelhaushälften geplant. Optional kann ein ausgebautes Studio (insgesamt 136 m²) und/oder ein Vollkeller geplant werden. Im Anzeigenpreis enthalten: Grundstück, energieeffiziente Doppelhaushälfte, technikfertig, + kompletter Innenausbau! Nicht enthalten: Kauf- und Baunebenkosten, anteilige Abrisskosten. Es gibt kein Exposé ! Bei Interesse vereinbaren Sie einen Termin in der kommenden Woche, von Mittwoch bis Freitag im Musterhaus Bad Vilbel.
+++ DIE Chance, Doppelhaushälfte in Innenstadtnähe Bad Homburgs +++
61348 Bad Homburg vor der Höhe
Die vollständige Adresse der Immobilie erhalten Sie vom Anbieter.
Auf Karte anzeigen
Die vollständige Adresse der Immobilie erhalten Sie vom Anbieter.

Finanzierungszertifikat
In nur zwei Minuten zu Ihrem persönlichen Finanzierungszertifkat.
Infos
Haustyp | Doppelhaushaelfte |
---|---|
Etagenzahl | 2 |
Wohnfläche ca. | 112 m2 |
Grundstücksfläche | 340 m2 |
Bezugsfrei ab | 10/26 |
Zimmer | 3 |
Schlafzimmer | 2 |
Badezimmer | 1 |
Kosten
Kaufpreis |
697.397 € |
---|
Finanzierungsrechner:
Kaufpreis:
600.000 €
Eigenkapital:
600.000 €
Monatliche Rate
0 €
Effektiver Jahreszins
0 %
Sollzinsbindung
10 Jahre
Bausubstanz & Energieausweis
Baujahr | unbekannt |
---|---|
Bauphase | Haus in Planung (projektiert) |
Heizungsart | Wärmepumpe |
Energieausweis | liegt zur Besichtigung vor |
Beschreibung des Objekts
Ausstattung
Erleben Sie mit KINGSIZE ein Wohngefühl mit Weite. Durch die Raumhöhe von 2,75 Metern mit extra hohen Türen und Fenstern schaffen Sie eine Atmosphäre von echter Großzügigkeit. INKLUSIVLEISTUNGEN -Bodenplatte (Keller gegen Aufpreis möglich) -Architektenleistung, Vermesser, Freiflächenplanung -DGNB (Deutsche Gesellschaft für nachhaltiges Bauen ) Serienzertifizierung -Split-Luft-Wasser-Wärmepumpe -Kontrollierte Be-/Entlüftungsanlage mit Wärmerückgewinnung -Energieeffizienzhaus, KfW 55, weitere Standards optional möglich -Echtholztreppe -3-fach-Verglasung mit Aluminium-Rollläden -Photovoltaik-Vorbereitung inkl. Zählerschrankerweiterung -FB Heizung im EG und DG -Fassaden-Schutzanstrich -4 fach Bau-Sicherheitspaket bis zur Hausübergabe Inkl. Material-Ausbaupaket 1 -Haustechnikpaket inkl. Rohrleitungen -Heizungsanlage -Elektropaket -Dämm- und Beplankungspaket Inkl. Material-Ausbaupaket 2: -Sanitärobjekte (Dusche, WC, Armaturen) -Fliesen -Innentüren inkl. Zargen, Fensterbänke -Bodenbeläge -Tapeten
Lage
Dieses Haus ist auf einem AKTUELL vorhandenen Grundstück in zentraler Lage von Bad Homburg mit fußläufiger Einkaufsmöglichkeit geplant und ist im Angebotspreis enthalten! Das Grundstück erwerben Sie direkt vom Eigentümer. Wir respektieren die Vorgaben der Grundstückseigentümer. Daher werden wir keine Angaben über Eigentümer und Lage der Grundstücke vor einem persönlichen Gespräch erteilen.
Sonstige Angaben
Sonstige Angebotsinformationen: Die Baunebenkosten, wie zum Beispiel Erdarbeiten, Hausanschlüsse, behördliche Gebühren und/oder Finanzierungskosten sind nicht im Gesamtpreis enthalten. Bitte beachten Sie, dass die Bilder nur Wohnbeispiele darstellen und das Haus nach Ihren Wünschen geplant wird. Die Abbildungen zeigen zum Teil Sonderausstattungen, die mit Mehrkosten verbunden sind. Die von uns gemachten Informationen beruhen auf Angaben des Verkäufers bzw. der Verkäuferin. Für die Richtigkeit und Vollständigkeit der Angaben kann keine Gewähr bzw. Haftung übernommen werden. Ein Zwischenverkauf und Irrtümer sind vorbehalten. Die Quadratmeteranzahl entspricht der Nettogrundfläche gemäß DIN 277. Hinweis zu den gesetzlichen Pflichtangaben gemäß der EnEV: Das hier angebotene Haus ist ein Neubauprojekt und es liegt daher noch kein Energieausweis vor. Dieser wird Ihnen spätestens im Rahmen der Erstellung des Objektes ausgehändigt. Wir weisen auf unsere Allgemeinen Geschäftsbedingungen hin. Durch weitere Inanspruchnahme unserer Leistungen erklären Sie die Kenntnis und Ihr Einverständnis. Informationspflicht gem. Art. 13 DSGVO https://www.allkauf-ausbauhaus.de/interessenteninformationen/
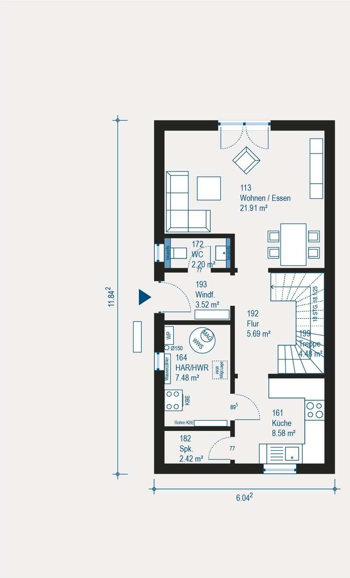
Grundriss
Grundriss
>

Grundriss
>

Grundriss
>

Adresse
61348 Bad Homburg vor der Höhe
Interessante Orte
Preis- und Lageinformationen
Preistrend für Bestandsimmobilien in Bad Homburg vor der Höhe