Zum Verkauf steht ein modernes, freistehendes Einfamilienhaus mit Carport und Garage, das keine Wünsche offenlässt. Dieses Zuhause überzeugt durch hochwertige Ausstattung, großzügige Räume und ein lichtdurchflutetes Ambiente.
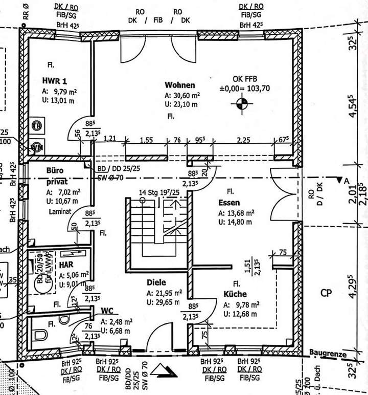
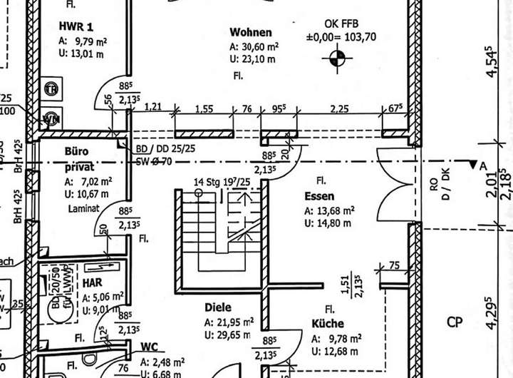
Bereits beim Betreten des Hauses empfängt Sie ein großzügiger und heller Eingangsbereich mit offenem Erker und stilvoller Natursteinwand. Die moderne Hauseingangstür lässt sich bequem per Fingerabdruck öffnen und verbindet damit Sicherheit und Komfort auf zeitgemäße Weise. Dieser einladende Flur führt Sie direkt in die Hauptbereiche des Hauses und vermittelt sofort ein Gefühl von Großzügigkeit und Eleganz. Im Erdgeschoss befinden sich ein Gäste-WC, eine offene Küche, der Essbereich, das Wohnzimmer sowie ein weiteres Zimmer, das derzeit als Büro genutzt wird. Vom Wohnbereich aus gelangen Sie auf die überdachte Terrasse, die den Zugang zum Garten und zur Garage bietet.
Die moderne und zeitlose Küche ist vollständig ausgestattet und begeistert durch ihre durchdachte Aufteilung. Sie verfügt über ein integriertes Kochfeld mit Dunstabzug, zwei Backöfen, Spülmaschine, Kühlschrank und viel Stauraum. Hier genießen Sie gemeinsam mit Familie und Freunden Kochen und Essen in entspannter Atmosphäre.
Der Wohn- und Essbereich ist lichtdurchflutet und wirkt durch bodentiefe Fenster besonders großzügig. Elektrische Rollläden, die sich bequem per Fernbedienung steuern lassen, sorgen für Komfort und Privatsphäre. Eine stilvolle Natursteinwand und ein Kamin mit Wärmespeicher schaffen eine behagliche Atmosphäre. Von hier aus betreten Sie die überdachte Terrasse und den liebevoll gestalteten Garten mit einem überdachten Loungebereich, der sich perfekt für entspannte Sommerabende und Grillfeste eignet.
Über eine moderne, offene Treppe erreichen Sie das Obergeschoss. Große Fenster sorgen auch hier für Helligkeit und ein freundliches Ambiente. Im Obergeschoss befinden sich drei Zimmer sowie ein großes Badezimmer, das mit Naturstein gestaltet ist. Eine Badewanne und eine bodentiefe Dusche laden zum Entspannen ein und geben dem Raum einen Hauch von Wellness.
Das gesamte Haus ist mit Fußbodenheizung ausgestattet und bietet durch elektrische Rollläden, Fliegengitter, Smart-Home-Technik sowie hochwertige Vinyl- und Natursteinböden ein modernes Wohngefühl. Eine Photovoltaikanlage mit großem Speicher sowie eine Wallbox zum Laden von Elektrofahrzeugen ergänzen die nachhaltige und zukunftsorientierte Ausstattung des Hauses. Zum Haus gehören außerdem eine Garage und zwei Stellplätze.
Die Lage des Hauses ist ideal für Familien, auch für größere Familien mit Kindern. Einkaufsmöglichkeiten, Schulen und Freizeitangebote befinden sich in direkter Nähe, und dennoch genießen Sie hier eine ruhige und angenehme Wohnumgebung.
Der Energieausweis liegt selbstverständlich bei der Besichtigung vor.
Dieses Haus vereint modernes Design, hochwertige Ausstattung und viel Platz für Ihre individuellen Wohnträume. Vereinbaren Sie gern einen Termin zur Besichtigung und erleben Sie dieses besondere Einfamilienhaus persönlich.
Modernes freistehendes Einfamilienhaus mit Garage – Wohnträume werden wahr
64331 Weiterstadt
Die vollständige Adresse der Immobilie erhalten Sie vom Anbieter.
Auf Karte anzeigen
Die vollständige Adresse der Immobilie erhalten Sie vom Anbieter.
Finanzierungszertifikat
In nur zwei Minuten zu Ihrem persönlichen Finanzierungszertifkat.
Infos
| Haustyp | Einfamilienhaus |
|---|---|
| Etagenzahl | 1 |
| Wohnfläche ca. | 191 m2 |
| Grundstücksfläche | 385 m2 |
| Bezugsfrei ab | Nach Vereinbarung |
| Zimmer | 5 |
| Schlafzimmer | 4 |
| Badezimmer | 2 |
| Garage/Stellplatz | Garage |
| Anzahl Garage/Stellplatz | 3 |
Kosten
| Kaufpreis |
998.500 € |
|---|---|
| Provision |
2,98 inkl. Mwst. Käuferprovision: Die Provision i.H.v. 2,98 % des Kaufpreises inkl. MwSt. ist mit Kaufvertragsbeurkundung fällig! |
Finanzierungsrechner:
Kaufpreis:
600.000 €
Eigenkapital:
600.000 €
Monatliche Rate
0 €
Effektiver Jahreszins
0 %
Sollzinsbindung
10 Jahre
Bausubstanz & Energieausweis
| Baujahr | 2012 |
|---|---|
| Letzte Sanierung | 2012 |
| Bauphase | Haus fertig gestellt |
| Objektzustand | Neuwertig |
| Qualität der Austattung | Gehoben |
| Heizungsart | Fußbodenheizung |
| Wesentliche Energieträger | Umweltwärme |
| Energieausweis | liegt vor |
| Energieausweistyp | Bedarfsausweis |
| Energieverbrauchskennwert | 15,3 kWh/(m²*a) |
| Energieeffizienzklasse | A+ |
15,3
kWh/(m²*a)
Energieeffizienzklasse A+
- A+
- A
- B
- C
- D
- E
- F
- G
- H
- 0
- 25
- 50
- 75
- 100
- 125
- 150
- 175
- 200
- 225
- >250
Beschreibung des Objekts
Ausstattung
+ Hauseingangstür mit Fingerabdruck-Öffnung
+ Einbauküche mit modernen Geräten
+ Dreifach verglaste Isolier-Kunststofffenster
+ Kamin mit Wärmespeicher
+ Fußbodenheizung im gesamten Haus
+ Elektrische Rollläden mit Fernbedienungssteuerung
+ Fliegengitter
+ Smart-Home-System
+ Hochwertige Vinylböden
+ Natursteinwände
+ Garage und zwei Stellplätze
+ Überdachte Terrasse und Loungebereich im Garten
+ Biohort-Gartenhütte
+ Wärmespeichersystem
+ Photovoltaikanlage
+ Luftwärmepumpe
+ Wallbox
Energieeffizientes Haus mit niedrigem Verbrauch und vieles mehr
Lage
Das Haus befindet sich in Braunshardt – einer modernen, neu gestalteten und familienfreundlichen Wohngegend.
Braunshardt ist ein Stadtteil von Weiterstadt im südhessischen Landkreis Darmstadt-Dieburg und überzeugt durch seine verkehrsgünstige Lage. Weiterstadt liegt im beliebten Rhein-Main-Gebiet, nur rund 20 Kilometer südlich des Frankfurter Flughafens und grenzt unmittelbar an Darmstadt. Die harmonische Mischung aus Wäldern und Kleinstädten sowie die Nähe zur Metropole Frankfurt machen diese Region zu einer äußerst gefragten Wohnlage. Besonders Pendler profitieren von der sehr guten Infrastruktur.
Dienstleister, Geschäfte des täglichen Bedarfs, Kindertagesstätten und Supermärkte sind bequem fußläufig erreichbar.
Auch verkehrstechnisch ist Braunshardt optimal angebunden: Die Autobahn A5 in Richtung Frankfurt sowie die Bundesstraßen B42 und B3 liegen in komfortabler Distanz. Darüber hinaus bietet der Bahnhof „Weiterstadt“ eine direkte Anbindung an den regionalen Schienenverkehr.
Fazit: Braunshardt vereint moderne Infrastruktur, familienfreundliche Wohnqualität und beste Verkehrsanbindung. Dieser Standort ist ideal für Familien, Berufspendler und alle, die das Leben in einer ruhigen Umgebung mit Nähe zu den Städten der Rhein-Main-Region schätzen.
Sonstige Angaben
Dieses Exposé wurde mit Sorgfalt zusammengestellt. Alle Angaben basieren auf Informationen der Eigentümer. Für die Richtigkeit und Vollständigkeit übernehmen wir keine Haftung. Änderungen und Zwischenverkauf bleiben vorbehalten.
VIDI Immobilien – Ihre kompetente Ansprechpartnerin für individuelle Immobilienlösungen im Rhein-Main-Gebiet.
Haben wir Ihr Interesse geweckt? Dann freuen wir uns auf Ihre Anfrage!
Gerne senden wir Ihnen weitere Unterlagen zu oder vereinbaren einen persönlichen Besichtigungstermin vor Ort.
Kontaktieren Sie uns – wir beraten Sie jederzeit freundlich und kompetent.
Es gelten die allgemeinen Geschäftsbedingungen der VIDI Immobilien. Die Käufer-Provision ist verdient und fällig mit der Beurkundung des notariellen Kaufvertrages. Die Immobilie hat einen provisionspflichtigen Maklervertrag mit dem Verkäufer in gleicher Höhe abgeschlossen (§ 656 a-d BGB).
Grundriss
Grundriss_OG
>
>
Grundriss_EG
>
>
Adresse
64331 Weiterstadt
Interessante Orte
Preis- und Lageinformationen
Preistrend für Bestandsimmobilien in Weiterstadt