Dieses hochwertige Bungalow-Einfamilienhaus, Baujahr 2013, wird im Auftrag des Eigentümers provisionsfrei für den Käufer verkauft.
Das Haus überzeugt durch seinen sehr gepflegten Zustand und wirkt wie neu. Mit einer großzügigen Wohnfläche von 175 m² und einem Grundstück von 822 m² ist es das ideale Zuhause für eine Familie, die Komfort, Nachhaltigkeit und modernes Wohnen zu schätzen weiß.
Das Haus entspricht dem KfW 55 Standard und wird umweltfreundlich über eine Erdwärmeanlage mit Flächenkollektoren (1,20 m Tiefe) beheizt. In Kombination mit einer Fußbodenheizung, die individuell über Raumthermostate gesteuert werden kann, bietet es ein behagliches Wohnklima. Ein Kamin im Wohnbereich sorgt an kalten Tagen für zusätzliche Gemütlichkeit. Das Haus wurde in einer umweltfreundlichen und innovativen Holzrahmenbauweise errichtet.
Ein weiteres Highlight ist die Glasüberdachung mit Markise über der Terrasse, die zum Verweilen einlädt. Der gepflegte Garten umgibt das Haus komplett, mit einer liebevoll angelegten Grünfläche sowohl vor als auch hinter dem Haus.
Bungalow aus 2013, KfW-55 (Effizienz A+), 5 Zimmer, 175 m² Wohnfl., 822 m² Grundst. – provisionsfrei
Barnstorfer Straße 7,
38444 Wolfsburg
Auf Karte anzeigen
Finanzierungszertifikat
In nur zwei Minuten zu Ihrem persönlichen Finanzierungszertifkat.
Infos
| Haustyp | Bungalow |
|---|---|
| Wohnfläche ca. | 175 m2 |
| Grundstücksfläche | 822 m2 |
| Bezugsfrei ab | 01/2026 |
| Zimmer | 5 |
| Schlafzimmer | 3 |
| Badezimmer | 3 |
| Garage/Stellplatz | Garage |
| Anzahl Garage/Stellplatz | 2 |
Kosten
| Kaufpreis |
589.000 € |
|---|---|
| Provision | Nein |
Finanzierungsrechner:
Kaufpreis:
600.000 €
Eigenkapital:
600.000 €
Monatliche Rate
0 €
Effektiver Jahreszins
0 %
Sollzinsbindung
10 Jahre
Bausubstanz & Energieausweis
| Baujahr | unbekannt |
|---|---|
| Objektzustand | Neuwertig |
| Qualität der Austattung | Gehoben |
| Heizungsart | Wärmepumpe |
| Wesentliche Energieträger | Strom |
| Energieausweis | liegt vor |
| Energieausweistyp | Verbrauchsausweis |
| Energieverbrauchskennwert | 9,4 kWh/(m²*a) |
| Energieeffizienzklasse | A+ |
9,4
kWh/(m²*a)
Energieeffizienzklasse A+
- A+
- A
- B
- C
- D
- E
- F
- G
- H
- 0
- 25
- 50
- 75
- 100
- 125
- 150
- 175
- 200
- 225
- >250
Beschreibung des Objekts
Ausstattung
Energieeffizient:
• KfW 55 Standard
• Erdwärmeheizung
• Fußbodenheizung mit Raumthermostaten
Moderne Technik:
• Wallbox
• Elektrische Rollläden
• Satellitenschüssel
• LED Deckenspots
• PV-Nachrüstbarkeit
Wohnkomfort:
• Offener Essbereich angrenzend an die hochwertige Küche
• Große Fenster, 3-fach verglast, für viel Tageslicht
• Großzügiges Hauptbad mit bodengleicher Dusche, Whirlpoolwanne und gefliesten Wänden bis 1,50 m Höhe
• Zusätzliches Gäste-WC und ein weiteres Bad mit Dusche in einem separaten Zimmer
• Hochwertige Einbauschränke
• Designfliesen im gesamten Erdgeschoss
Außenbereich:
• Terrasse mit Glasüberdachung und Markise
• Gepflegter Garten mit vielseitig angelegten Grünflächen
• Gartenhaus mit genügend Stauraum
Praktische Extras:
• Doppelgarage
• Spitzboden mit Stehbereich und viel Stauraum
• Hauswirtschaftsraum
• Eingebaute Garderobenschränke und zahlreiche Stauräume
Lage
Das Haus befindet sich in Wolfsburg-Heiligendorf, einer der begehrten Wohnlagen der Region. Heiligendorf bietet eine perfekte Mischung aus ruhigem, ländlichem Wohnen und einer gut angebundenen Infrastruktur.
Naturnahe Umgebung:
Die grüne Umgebung lädt zu Spaziergängen, Radfahren und Erholung ein. Das nahegelegene Naturschutzgebiet in der Barnstorfer Talniederung ist ein Paradies für Naturliebhaber und bietet vielfältige Möglichkeiten zur Entspannung im Freien.
Exzellente Verkehrsanbindung:
Heilgendorf ist ideal angebunden. Öffentliche Verkehrsmittel, wie die nahegelegene Bushaltestelle, verbinden Sie bequem mit Wolfsburgs Zentrum. Die Innenstadt und wichtige Arbeitgeber wie Volkswagen sind in wenigen Minuten erreichbar. Auch die Autobahnen A39 und A2 sind schnell zu erreichen, was die Lage für Berufspendler besonders attraktiv macht.
Umfassende Infrastruktur:
Heiligendorf verfügt über alle Annehmlichkeiten des täglichen Lebens. Supermärkte, Ärzte, Apotheken sowie Restaurants und Cafés befinden sich in der Nähe. Zudem ist die Lage ideal für Menschen jeden Alters: Schulen und Kindergärten sind vorhanden, ebenso wie Freizeitangebote für Jung und Alt.
Hohe Lebensqualität:
Die ruhige Wohnatmosphäre macht Heiligendorf zu einem Ort, an dem man sich wohlfühlt. Sowohl Familien, berufstätige Paare als auch Senioren finden hier ein attraktives Umfeld mit einem hohen Lebensstandard.
Sonstige Angaben
Das Haus wird provisionsfrei für den Käufer angeboten – die Maklerprovision wird ausschließlich vom Verkäufer getragen.
Die monatlichen Nebenkosten für Strom und Wasser belaufen sich auf ca. 170 Euro.
Einziehen und Wohlfühlen – dieses moderne und gepflegte Bungalow-Einfamilienhaus bietet alles, was das Herz begehrt. Vereinbaren Sie jetzt einen Besichtigungstermin und lassen Sie sich begeistern!
Ihr Team der Hans Drewes Projektentwicklung GmbH
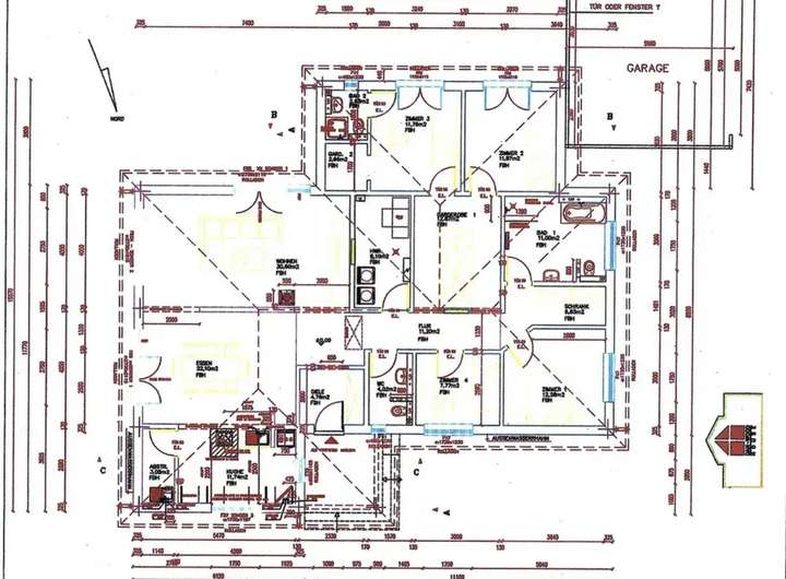
Grundriss
Grundriss
>
>
Adresse
Barnstorfer Straße 7, 38444 Wolfsburg
Interessante Orte
Preis- und Lageinformationen
Preistrend für Bestandsimmobilien in Heiligendorf