Das gepflegte, 1996 erbaute Reihenhaus bietet mit 135 m2 Wohnfläche Platz für eine große Familie. Es verfügt über sechs Zimmer, ein Vollbad, ein Duschbad, ein Gäste-WC sowie eine Einbauküche.
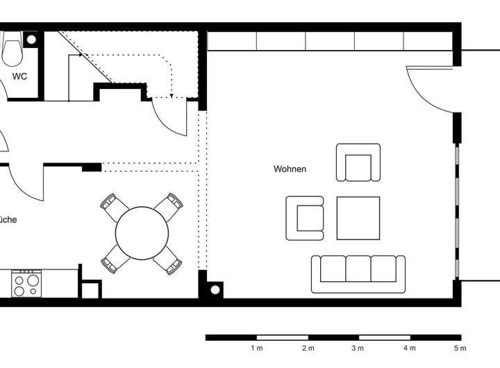
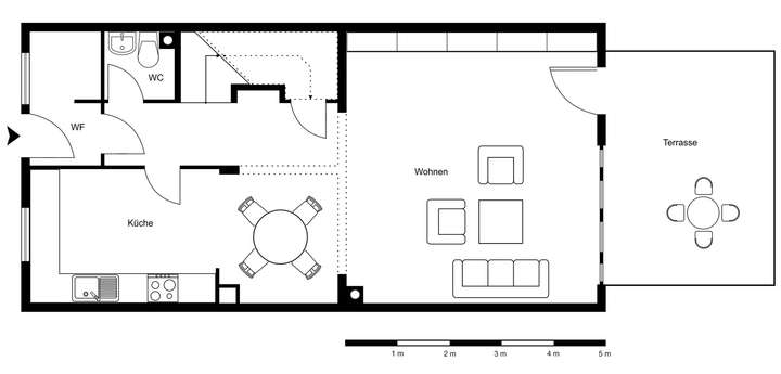
Hervorzuheben ist der großzügige Wohn-/ Essbereich mit Eichenparkett incl. Fußbodenheizung und angrenzender offener Einbauküche. Ein Kamin mit Panorama-Sichtfenster gibt ein gemütliches Ambiente. Bodentiefe Fensterfronten führen auf die mit Natursteinen gepflasterte Terrasse in Süd-West Ausrichtung und den eingewachsenen, blickdichten Garten.
Der Bereich unterhalb der Treppe wird durch einen begehbaren Abstellraum optimal genutzt. Zwischen Haustür und Gäste WC befindet sich eine Fläche mit integrierter Garderobe und Schuhregal.
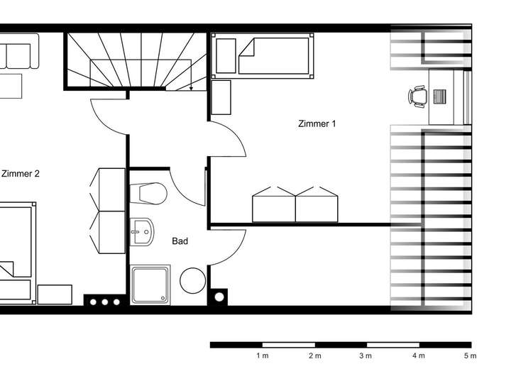
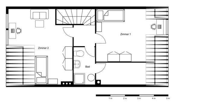
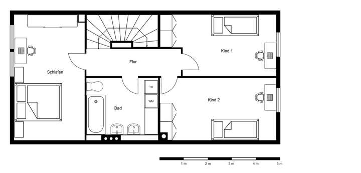
Im Obergeschoss befinden sich drei Zimmer und ein hell gekacheltes Badezimmer mit Badewanne und Doppelwaschbecken und Platz für Waschmaschine und Trockner.
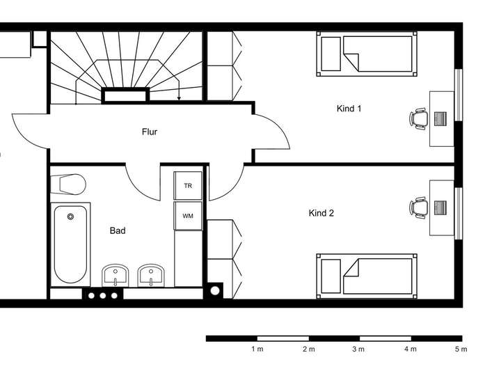
Im Dachgeschoss befinden sich zwei Zimmer mit Dachschrägen und Gauben, ein ebenso hell gekacheltes Duschbad und der Heizungsraum mit Dachfenster, der sich ideal zum Wäscheaufhängen eignet.
Der Spitzboden bietet viel Stauraum und könnte zusätzlich von einem der Zimmer ausgehend als Schlafraum/ Hochbett ausgebaut werden.
Darüber hinaus gibt es vor dem Haus einen PKW Stellplatz und einen Schuppen für Fahrräder.
6 Zimmer-Reihenhaus mit blickdichtem Garten, Glasfaseranschluss in Bergedorf / Neuallermöhe
21035 Hamburg
Die vollständige Adresse der Immobilie erhalten Sie vom Anbieter.
Auf Karte anzeigen
Die vollständige Adresse der Immobilie erhalten Sie vom Anbieter.
Finanzierungszertifikat
In nur zwei Minuten zu Ihrem persönlichen Finanzierungszertifkat.
Infos
| Haustyp | Reihenmittelhaus |
|---|---|
| Etagenzahl | 3 |
| Wohnfläche ca. | 135 m2 |
| Grundstücksfläche | 165 m2 |
| Bezugsfrei ab | nach Absprache |
| Zimmer | 6 |
| Schlafzimmer | 5 |
| Badezimmer | 2 |
| Garage/Stellplatz | Außenstellplatz |
| Anzahl Garage/Stellplatz | 1 |
Kosten
| Kaufpreis |
529.000 € |
|---|---|
| Provision | Nein |
Finanzierungsrechner:
Kaufpreis:
600.000 €
Eigenkapital:
600.000 €
Monatliche Rate
0 €
Effektiver Jahreszins
0 %
Sollzinsbindung
10 Jahre
Bausubstanz & Energieausweis
| Baujahr | 1996 |
|---|---|
| Bauphase | Haus fertig gestellt |
| Objektzustand | Gepflegt |
| Heizungsart | Zentralheizung |
| Wesentliche Energieträger | Fernwärme |
| Energieausweis | liegt vor |
| Energieausweistyp | Verbrauchsausweis |
| Energieverbrauchskennwert | 22,9 kWh/(m²*a) |
| Energieeffizienzklasse | B |
22,9
kWh/(m²*a)
Energieeffizienzklasse B
- A+
- A
- B
- C
- D
- E
- F
- G
- H
- 0
- 25
- 50
- 75
- 100
- 125
- 150
- 175
- 200
- 225
- >250
Beschreibung des Objekts
Ausstattung
Terrasse, Garten, Vollbad, Duschbad, Einbauküche, Gäste-WC, Kamin, Parkett, Sonstiges (s. Text)
Bemerkungen:
*Im EG: Einbauküche, Terracotta Fliesen in Küche und Flur, Eichenparkettboden und Fußbodenheizung im WZ, Kamin, Gäste WC
*im OG: drei Zimmer, Vollbad, Korkfußboden
*im DG: zwei Zimmer mit Gauben, Duschbad, Heizungsraum, Korkfußboden
*Holztreppen, zum OG geschlossene, zum DG offene Bauweise
*Spitzboden
*Terrasse, Garten, Stellplatz, Fahrradschuppen
Lage
Das Reihenhaus befindet sich im Hamburger Stadtteil Allermöhe in einer verkehrsberuhigten Spielstraße. Spielplätze und der Allermöher See sind ca. 200 m entfernt. Die Umgebung ist geprägt durch eine harmonische Mischung aus kleinen Wohnstraßen und großzügigen Grünflächen. Zehn Gehminuten entfernt befindet sich die S-Bahn Station "Allermöhe", von der man in 15 Minuten zum Hauptbahnhof gelangt, außerdem verkehren einige Buslinien. Kindergärten, Grundschulen, eine Stadtteilschule und ein Gymnasium sowie Einkaufsmöglichkeiten für den täglichen Bedarf und Ärzte sind fußläufig bequem erreichbar.
Die Autobahn A25 ist etwa 3 Autominuten entfernt.
Zur Naherholung laden der nahegelegene Allermöher See sowie mehrere Parks und Spielplätze ein. Durch die Vier- und Marschlanden und das Naturschutzgebiet Boberger Dünen lassen sich wunderschöne, ausgedehnte Radtouren machen.
Infrastruktur (im Umkreis von 5 km):
Apotheke, Lebensmittel-Discount, Allgemeinmediziner, Kindergarten, Grundschule, Gymnasium, Gesamtschule, Öffentliche Verkehrsmittel
Sonstige Angaben
Heizungsart: Zentralheizung
Energieträger: Fernwärme
Das Haus wurde fortlaufend modernisiert, so wurde
2018 das Duschbad komplett saniert und im Vollbad wurde ein neues Doppelwaschbecken mit Unterbau installiert.
2019 wurden einige Fensterscheiben ausgetauscht, wobei die Holzrahmung erhalten blieb. In dem Zuge wurden die Haustür und sämtliche Fensterrahmen behandelt und gestrichen.
2020 wurde die Dichtheitsprüfung für Grundleitungen und Schächte durchgeführt.
2021 wurde im Wohnzimmer eine Fußbodenheizung und der Fußboden mit Eichenparkett verlegt.
2022 wurde ein neuer Kamin - Contura 596 - eingebaut, der die vorgeschriebenen Emissionswerte erfüllt.
2024 wurde ein neuer Warmwasserspeicher inkl. neuer Zuleitung, Pumpe und Überdruckventil eingebaut.
2025 erfolgte Glasfaseranschluss.
Das Haus befindet sich in einem gepflegten Zustand mit altersgemäßen Gebrauchsspuren und kann nach individuellen Maler- oder Tapezierarbeiten bezogen werden.
Makleranfragen nicht erwünscht. Nach § 7 UWG sind unaufgeforderte Kontaktaufnahmen durch Makler ohne ausdrückliche Einwilligung des Empfängers verboten!
ohne-makler (OM) ist weder Anbieter noch Vermittler der Immobilie. OM betreibt eine Plattform für Immobilieneigentümer, die unter anderem die gleichzeitige Veröffentlichung einzelner Inserate auf mehreren Immobilienportalen ermöglicht. Die Inhalte dieser Inserate werden ausschließlich von Dritten verantwortet. Für die Richtigkeit, Vollständigkeit oder Rechtmäßigkeit der Angaben übernimmt OM keine Haftung. Hinweise auf mögliche Rechtsverstöße können jederzeit gemeldet werden und werden nach Prüfung umgehend bearbeitet.
Adresse
21035 Hamburg
Interessante Orte
Preis- und Lageinformationen
Preistrend für Bestandsimmobilien in Allermöhe
>
>
>