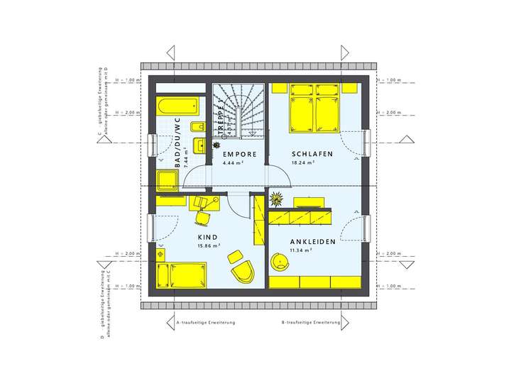
Willkommen in deinem zukünftigen Zuhause in Lachendorf! Dieses maßgeschneiderte Einfamilienhaus mit einer Wohnfläche von 124 m² und einem großzügigen Grundstück von 610 m² bietet dir alles, was du dir wünschst. Mit 5 Zimmern, darunter 3 Schlafzimmer und einem modernen Badezimmer, ist es der perfekte Ort für Familien, die Wert auf Individualität legen und sich ihre Wohnträume erfüllen möchten. Das klassische Satteldach mit einer Neigung von 38 Grad verleiht dem Haus nicht nur einen charmanten Charakter, sondern ermöglicht auch eine optimale Raumausnutzung. Besondere Highlights wie der Erker oder Giebel erweitern deinen Wohnbereich und schaffen eine helle und freundliche Atmosphäre. Die bodentiefen Fenster sorgen für einen lichtdurchfluteten Raum und stellen eine harmonische Verbindung zur Natur her.
LivingHaus geht jedoch über die reine Bauweise hinaus. Die Traumküche wird individuell auf deinen Grundriss abgestimmt und überzeugt durch modernes Design sowie innovative Technik. Du erhältst alles, was du für deine Kochabenteuer benötigst, rechtzeitig zum Einzug. Das Living Haus Bau-Cockpit stellt sicher, dass du jederzeit den Überblick über dein Bauprojekt behältst - alles ist digital und bequem zugänglich.
Mit I-KON - Intelligentes Bauen erhältst du ein energieeffizientes Zuhause, das umweltfreundlich ist und perfekt an deine Bedürfnisse angepasst wird. Das Zuhause-Darlehen ermöglicht dir eine attraktive Finanzierung deines Traumhauses mit exklusiven Vorteilen. Das Zuhause-Paket bietet dir eine hochwertige Grundausstattung, die alles umfasst, was du für einen sofortigen Einzug benötigst. Und mit dem DIY-Ausbau-Coaching hast du die Möglichkeit, deinen Innenausbau selbst zu gestalten und wertvolle Tipps von Experten zu erhalten.
Mit LivingHaus verwirklichst du dein individuelles Traumhaus, das nicht nur auf deine Wünsche abgestimmt ist, sondern auch höchste Ansprüche an Qualität und Nachhaltigkeit erfüllt.
Dein individuelles Traumhaus in Lachendorf - Wohnen nach deinen Wünschen mit LivingHaus
29331 Lachendorf
Die vollständige Adresse der Immobilie erhalten Sie vom Anbieter.
Auf Karte anzeigen
Die vollständige Adresse der Immobilie erhalten Sie vom Anbieter.
Finanzierungszertifikat
In nur zwei Minuten zu Ihrem persönlichen Finanzierungszertifkat.
Infos
| Haustyp | Einfamilienhaus |
|---|---|
| Etagenzahl | 2 |
| Wohnfläche ca. | 124 m2 |
| Nutzfläche | 124 m2 |
| Grundstücksfläche | 610 m2 |
| Zimmer | 5 |
| Schlafzimmer | 3 |
| Badezimmer | 1 |
Kosten
| Kaufpreis |
474.721 € |
|---|
Finanzierungsrechner:
Kaufpreis:
600.000 €
Eigenkapital:
600.000 €
Monatliche Rate
0 €
Effektiver Jahreszins
0 %
Sollzinsbindung
10 Jahre
Bausubstanz & Energieausweis
| Baujahr | 2026 |
|---|---|
| Bauphase | Haus in Planung (projektiert) |
| Qualität der Austattung | Gehoben |
| Energieausweis | liegt vor |
| Energieausweistyp | Bedarfsausweis |
| Energieverbrauchskennwert | 18,0 kWh/(m²*a) |
| Energieeffizienzklasse | A+ |
18,0
kWh/(m²*a)
Energieeffizienzklasse A+
- A+
- A
- B
- C
- D
- E
- F
- G
- H
- 0
- 25
- 50
- 75
- 100
- 125
- 150
- 175
- 200
- 225
- >250
Beschreibung des Objekts
Ausstattung
In deinem LivingHaus erhältst du eine breite Palette an hochwertigen Ausstattungsmerkmalen, die dein Zuhause zu etwas Besonderem machen. Die hochwertige Grundausstattung umfasst moderne Böden, elegante Türen und stilvolle Sanitäranlagen, die alles optimal aufeinander abgestimmt sind. Die Küche wird individuell geplant und bietet dir den Komfort, den du dir wünschst. Du profitierst von einer 18-monatigen Festpreisgarantie, die dir finanzielle Sicherheit bietet. Darüber hinaus sind wichtige Bauversicherungen bereits enthalten, sodass du bei unvorhergesehenen Ereignissen bestens abgesichert bist.
Du hast die Möglichkeit, dein Zuhause umweltfreundlich zu gestalten, indem du die I-KON-Lösung mit einer integrierten PV-Anlage und modernster Wärmepumpentechnik nutzt. Ein Bodengutachten und eine komplette Bauantragsplanung sind ebenfalls im Leistungspaket enthalten, um dir einen reibungslosen Bauablauf zu garantieren. Dank des hohen Vorfertigungsgrades und der geschlossenen Wände wird der Bauprozess effizient und zügig umgesetzt. Aluminiumgeschäumte Rollläden sorgen für zusätzlichen Komfort und ein angenehmes Raumklima. Dein LivingHaus wird so zu deinem »Wie ich es will Fertighaus«.
Lage
Lachendorf ist der ideale Standort für dein neues Zuhause. In der Umgebung findest du eine Vielzahl an Bildungseinrichtungen, darunter mehrere Kindergärten sowie Grund- und weiterführende Schulen, die sich durch ihre hohe Qualität auszeichnen. Eltern können sich auf positive Bewertungen und eine familiäre Atmosphäre freuen, die den Kindern eine optimale Förderung bietet. Zudem gibt es zahlreiche Supermärkte und Geschäfte, die deinen täglichen Einkauf erleichtern. Die medizinische Versorgung ist durch ansässige Ärzte und Apotheken gewährleistet, sodass du stets bestens versorgt bist.
Für Freizeitaktivitäten bietet Lachendorf viele Möglichkeiten. Die Umgebung lädt zu ausgedehnten Spaziergängen und Fahrradtouren ein und ist ideal für Naturliebhaber. In der Nähe findest du Sporteinrichtungen, Spielplätze und Grünflächen, die besonders für Familien attraktiv sind. Die Anbindung an den öffentlichen Nahverkehr sowie die Autobahn ist hervorragend, was Pendlern eine stressfreie Anreise zu ihrem Arbeitsplatz ermöglicht. Alles in allem ist Lachendorf ein lebendiger Ort, der sowohl für junge Familien als auch für Naturliebhaber und Berufstätige ideale Lebensbedingungen bietet.
Adresse
29331 Lachendorf
Interessante Orte
Preis- und Lageinformationen
Preistrend für Bestandsimmobilien in Lachendorf