Willkommen in Ihrem neuen Traumhaus in Alsbach!
Diese projektierte Architektenvilla wurde auf einem aktuell in der Vermarktung befindlichen Baugrundstück geplant und liegt in exklusiver Hanglage Alsbachs. Die Lage des Grundstücks bietet Ihnen einen atemberaubenden und unverbaubaren Fernblick bis in die Rheinebene. Das Grundstück umfasst 1.007 m2 Fläche, ist nach Westen ausgerichtet und liegt im Geltungsbereich des Bebauungsplans "Neuplanung im Hausstück".
Die Baugenehmigung für diese luxuriöse Architektenvilla mit über 400 m2 Wohnfläche liegt bereits vor. Somit können Sie umgehend mit der Realisierung Ihrer Wohnträume beginnen! Auf Wunsch kann die vorliegende Planung auch noch an Ihre individuellen Vorstellungen angepasst werden. Details entnehmen Sie gerne den beiliegenden Visualisierungen und Grundrissplänen.
Effiziente Flächennutzung durch clevere Planung: Trotz einer begrenzten Geschossflächenzahl (GFZ) von 0,3 wurde durch eine besonders durchdachte architektonische Planung eine großzügige Wohnfläche von über 400 m2 genehmigt. Dies gelang durch die geschickte Einbindung zweier nicht voll angerechneter Geschosse, die optimal zur Wohnflächenausnutzung beitragen, ohne die baurechtlichen Vorgaben zu überschreiten. Das Ergebnis ist ein außergewöhnlich großzügiges Raumangebot bei gleichzeitig harmonischer Einbettung des Baukörpers in die Umgebung.
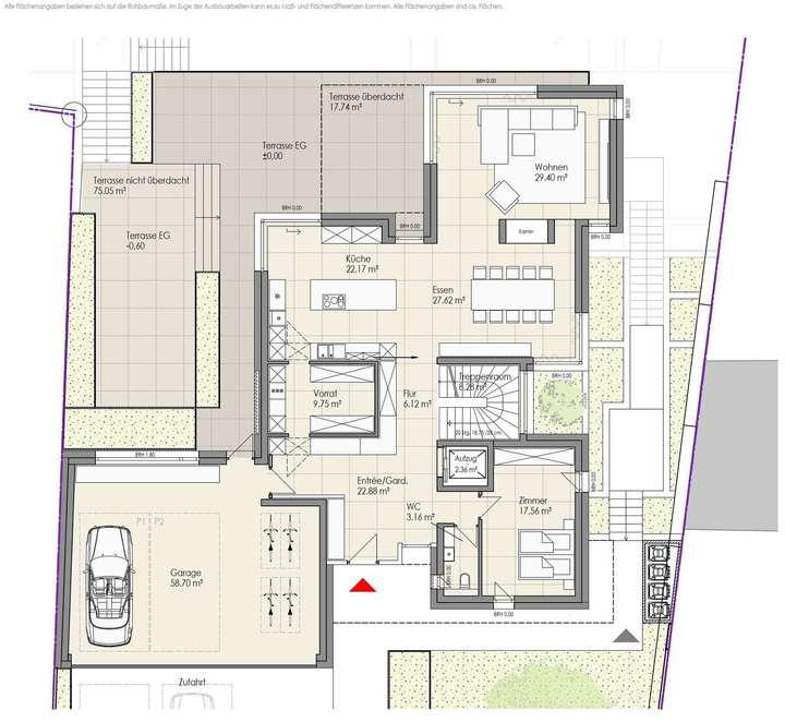
Beim Betreten des Hauses empfängt Sie ein großzügiger Eingangsbereich mit direktem Zugang zu allen Bereichen des Erdgeschosses. Herzstück der Ebene ist der offen gestaltete Wohn- und Essbereich, der mit viel Tageslicht und fließenden Übergängen ein harmonisches Wohngefühl vermittelt. Von hier aus genießen Sie während des Essens den wunderbaren Fernblick in Richtung Westen. Angrenzend befindet sich die offene Küche, die durch eine praktische Vorratskammer ergänzt wird. Ein separates Schlafzimmer samt Gäste-WC bietet flexible Nutzungsmöglichkeiten, sei es als Arbeits- oder Gästezimmer. Vom Eingangsbereich aus ist zudem ein direkter Zugang zur Doppelgarage gegeben, der kurze Wege gewährleistet. Ein Personenaufzug bringt Sie komfortabel in das Gartengeschoss oder in das Obergeschoss.
Das Obergeschoss überzeugt mit einer durchdachten und zugleich repräsentativen Raumgestaltung. Der private Elternbereich umfasst ein großzügiges Schlafzimmer mit Zugang zur Dachterrasse und einem luxuriösen Badezimmer. Die freistehende Badewanne, eine bodengleiche Dusche und hochwertige Sanitärelemente lassen keine Wünsche offen. Hier verbinden sich hochwertige Ausstattung und moderner Komfort zu einer wahren Wohlfühloase. Ein angrenzendes Ankleidezimmer sorgt für zusätzlichen Luxus und bietet reichlich Platz für eine stilvolle Garderobe. Auch der Nachwuchs genießt einen eigenen Rückzugsbereich: Das helle Kinderzimmer verfügt über ein separates, direkt angeschlossenes Kinderbad – ideal, um Privatsphäre und Komfort für jedes Familienmitglied zu gewährleisten.
Das Gartengeschoss besticht durch seine vielseitige Nutzbarkeit und den direkten Bezug zum Außenbereich mit Pool und vielseitigen Freiflächen. Ein großzügiger Hobbyraum mit Zugang zum Garten und einer Loggia bietet Ihnen zahlreiche Nutzungsmöglichkeiten – ob als Fitnessbereich, Heimkino oder kreatives Atelier. Besonders attraktiv ist die separate Einliegerwohnung mit eigenem Duschbad, die sich ideal für Gäste, Au-pair oder als Homeoffice eignet. Im hinteren Gebäudeteil befinden sich die Technikräume und zusätzliche Nutzflächen, die reichlich Stauraum und funktionale Möglichkeiten bieten, ohne den Wohnbereich zu beeinträchtigen.
Die schlüsselfertige Errichtung der projektierten Architektenvilla erfolgt durch ein renommiertes und regionales Bauunternehmen - hierzu beraten wir Sie gerne persönlich.
Die in diesem Exposé angenommenen Baukosten i.H.v. ca. 2,5 Mio. € brutto beziehen sich auf einen modernen und hochwertigen Gebäudestandard. Diese Kosten können jedoch e
Traumlage in Alsbach | schlüsselfertige Architektenvilla | Baugenehmigung liegt bereits vor
64665 Alsbach-Hähnlein
Die vollständige Adresse der Immobilie erhalten Sie vom Anbieter.
Auf Karte anzeigen
Die vollständige Adresse der Immobilie erhalten Sie vom Anbieter.
Finanzierungszertifikat
In nur zwei Minuten zu Ihrem persönlichen Finanzierungszertifkat.
Infos
| Haustyp | Einfamilienhaus |
|---|---|
| Wohnfläche ca. | 405 m2 |
| Grundstücksfläche | 1.007 m2 |
| Zimmer | 7 |
| Schlafzimmer | 5 |
| Badezimmer | 5 |
| Anzahl Garage/Stellplatz | 2 |
Kosten
| Kaufpreis |
3.400.000 € |
|---|---|
| Provision |
2,38 % inkl. MwSt. auf Grundstückspreis (929.000 €) = 22.110,20 € inkl. MwSt. 2,38 % Käuferprovision (inkl. MwSt.) auf den Grundstückspreis (929.000 €), verdient und fällig mit Beurkundung des notariellen Kaufvertrages. Der Immobilienmakler hat einen provisionspflichtigen Maklervertrag mit dem Verkäufer in gleicher Höhe abgeschlossen. |
Finanzierungsrechner:
Kaufpreis:
600.000 €
Eigenkapital:
600.000 €
Monatliche Rate
0 €
Effektiver Jahreszins
0 %
Sollzinsbindung
10 Jahre
Bausubstanz & Energieausweis
| Bauphase | Haus in Planung (projektiert) |
|---|---|
| Qualität der Austattung | Luxus |
Beschreibung des Objekts
Ausstattung
Grundstück
* Ausrichtung nach Westen / Hanglage / Fernblick
* Baugenehmigung vorliegend / Bebauungsplan "Neuplanung im Hausstück"
* GRZ 0,3 / GFZ 0,3 / 1 Vollgeschoss / offene Bauweise
Haus (Neubau projektiert)
* insgesamt ca. 405 m2 Wohnfläche
* inkl. Einliegerwohnung
* luxuriöse Ausstattung / frei wählbar nach Kundenwunsch
* moderne und effiziente Gebäudetechnik mit Lüftung, Klimatisierung, modernem Heizsystem und PV-Anlage
* Personenaufzug
* Echtholzböden oder großformatige Bodenfliesen aus Naturstein oder Keramik
* große und bodentiefe Fensterfronten (Holz-Alu oder Kunststoff-Alu)
* hochwerter Fassadenmix aus Naturstein und Wärmedämmverbundsystem mit Putz
* insgesamt 5 Bäder (Hauptbad, Gäste-WC, Kinderbad, WC Hobbyraum, Duschbad Einliegerwohnung)
* Doppelgarage mit direktem Hauszugang
* großzügige und hochwertige Außenanlage, komplett fertiggestellt inkl. Bepflanzung
* Pool inkl. moderner Technik
Die vorliegende Planung sowie die Ausstattungsmerkmale können auf Wunsch noch an Ihre individuellen Vorstellungen angepasst werden! Hierzu bersten wir Sie gerne persönlich.
Lage
Das angebotene Grundstück mit projektiertem Neubau befindet sich in bester Hanglage von Alsbach-Hähnlein, die sich durch Fernblick, Naturnähe, Ruhe, gepflegte Grünanlagen und exklusive Wohnhäuser auszeichnet.
Die Gemeinde mit. ca. 9.300 Einwohnern besticht durch ihre einzigartige Lage an der renommierten Bergstraße – perfekte Infrastruktur im idyllischen Spannungsfeld zwischen Odenwald und Rheinebene. In herrlicher Natur, eingebettet in sanfte Hügel, genießen Sie ein besonders mildes Mikroklima, das Ihre Terrasse, Ihr Gartenparadies und alle Außenbereiche das ganze Jahr über umspielt.
Besonderer Vorteil an der individuellen Lage des hier angebotenen Grundstückes ist der ebenerdige Zugang von der Straße aus. Sie betreten Ihr Grundstück direkt im Erdgeschoss und müssen keine zusätzlichen Treppen bis in Ihr Wohngeschoss zurücklegen. Die Hanglage ist in Richtung des hinteren Grundstücksbereiches abfallend.
Sowohl der Bahnhof "Hähnlein-Alsbach" mit Anschluss an das Regionalbahnnetz nach Bensheim/Heidelberg und Darmstadt/Frankfurt als auch die direkte Nähe zu den Autobahnen A5 und A67 garantieren eine perfekte Anbindung an die umliegenden Metropolen des Rhein-Main-Neckar-Gebietes.
Darüber hinaus bietet Alsbach-Hähnlein ein gut ausgebautes Radwegenetz sowie ein breites ÖPNV-Angebot inkl. direkter Straßenbahnanbindung nach Darmstadt. Mit dem Bus sind Sie in wenigen Minuten in der nahegelegenen Weinregion Hessische Bergstraße.
Jungen Familien bietet die Gemeinde Alsbach-Hähnlein eine hervorragende Bildungs- und Betreuungsinfrastruktur direkt vor Ort. Gleich drei Schulen sichern kurze Wege für Kinder aller Altersstufen: Zwei Grundschulen sowie eine kooperative Gesamtschule mit weiterführenden Angeboten. Auch die Betreuung der Kleinsten ist bestens gewährleistet, insgesamt stehen vier Kindertagesstätten zur Auswahl.
Historische Highlights wie das Alsbacher Schloss und der Melibokusturm verleihen dem Wohnumfeld eine besonders inspirierende Atmosphäre – ob bei einem morgendlichen Spaziergang oder als Ziel am Feierabend.
Sonstige Angaben
Die Käuferprovision beträgt 2,38 % (inkl. MwSt.) auf den Grundstückspreis (929.000 €), verdient und fällig mit Beurkundung des notariellen Kaufvertrages.
Bitte senden Sie uns zur ersten Kontaktaufnahme eine aussagekräftige Anfrage unter Angabe Ihrer persönlichen Daten über das Kontaktformular zu. Wir werden Sie dann zeitnah persönlich kontaktieren!
Alle Angaben und Zeichnungen basieren auf Informationen des Eigentümers. Es wird keine Gewähr für die Vollständigkeit, Richtigkeit und Aktualität dieser Angaben übernommen.
Grundriss
9_Grundriss_EG_Baugenehmigung
>
>
10_Grundriss_OG_Baugenehmigung
>
>
11_Grundriss_UG_Baugenehmigung
>
>
Adresse
64665 Alsbach-Hähnlein
Interessante Orte
Preis- und Lageinformationen
Preistrend für Bestandsimmobilien in Alsbach-Hähnlein