Objektnr: 1068160 Wenn Sie auf der Suche nach einem gemütlichen Zuhause für Ihre Familie sind, das sowohl im Innen- als auch im Außenbereich viel Platz zum Wohlfühlen bietet, könnte dieses charmante Objekt genau das Richtige für Sie sein. Die im Jahr 1880 erbaute Immobilie wurde stets pfleglich behandelt und präsentiert sich heute in einem einladenden Zustand. Die Hauptrenovierungen und Sanierungen wurden ab 2013 fortlaufend durchgeführt, unter anderem in den Badezimmern, den Schlafzimmern und der Küche. Der Eingangsbereich wurde komplett erneuert und mit einem Granitboden mit Fußbodenheizung ausgestattet. 2018 wurde eine neue Niedertemperatur - Brennwertheizung installiert. Direkt mit dem Haupthaus angrenzend befinden sich eine Doppelgarage, eine Sattelkammer/- Werkstatt und ein Pferdestall mit zwei großen Boxen. Außerdem gibt es ein separates Gebäude, mit eigener Zufahrt, das aktuell gewerblich als Hofcafé genutzt wird, aber auch anderweitig als Gewerbe oder Wohneinheit geeignet wäre. Das Grundstück ist zudem mit einem Paddock (mit Drainage) und einer Weide ausgestattet, die kürzlich neu eingezäunt wurden – ideal für Pferdeliebhaber oder Tierfreunde. Die hintere Hausweide verfügt über eine weitere separate Zufahrt. Das Haupthaus bietet eine großzügige Wohnfläche von etwa 220 m² und umfasst insgesamt 7 Zimmer, darunter 5 Schlafzimmer. Damit ist es perfekt für Familien oder auch für Paare, die viel Platz und Flexibilität suchen. Es gibt 2 Badezimmer mit Dusche, eines davon noch mit Badewanne, sowie ein Gäste-WC – so ist für Komfort und Gäste bestens gesorgt. Dank der vielfältigen Raumaufteilung können Sie das Zuhause ganz nach Ihren Wünschen nutzen, sei es für Hobbys, Arbeit oder gemeinsame Familienzeit. Die Ausstattung ist ebenfalls ansprechend: Es gibt eine Fußbodenheizung, eine Einbauküche und ein Kaminzimmer, das für gemütliche Abende sorgt. Zudem bietet das noch nicht ausgebaute Dachgeschoss weitere Möglichkeiten, um den Raum nach Ihren Vorstellungen zu gestalten und zu erweitern. Das Grundstück mit etwa 8.800 m² bietet Ihnen viele schöne Momente an der frischen Luft. Es verfügt übereinen großen Garten mit Terrasse und einen beeindruckenden Fischteich, der zahlreiche Nutzungsmöglichkeiten eröffnet. Das großzügige Grundstück lässt sich vielseitig gestalten, und dank eines natürlich gewachsenen Sichtschutzes können Sie in Ihrer eigenen Privatsphäre ungestört entspannen. Zudem wird aktuell auch Weidefläche gepachtet, was zusätzliche Nutzungsmöglichkeiten bietet. Für Ihre Fahrzeuge sind 2 Garagen und 4 Freistellplätze vorhanden, sodass ausreichend Platz für Pkw und ggf. Anhänger besteht.
Schönes Landhaus mit tollem Grundstück, ideal als Familienwohnsitz, gewerblich, oder Pferdeparadies
49699 Lindern (Oldenburg)
Die vollständige Adresse der Immobilie erhalten Sie vom Anbieter.
Auf Karte anzeigen
Die vollständige Adresse der Immobilie erhalten Sie vom Anbieter.

Finanzierungszertifikat
In nur zwei Minuten zu Ihrem persönlichen Finanzierungszertifkat.
Infos
Haustyp | Sonstige |
---|---|
Etagenzahl | 1 |
Wohnfläche ca. | 220 m2 |
Grundstücksfläche | 8.800,01 m2 |
Bezugsfrei ab | nach Absprache |
Zimmer | 7 |
Schlafzimmer | 5 |
Badezimmer | 2 |
Garage/Stellplatz | Garage |
Anzahl Garage/Stellplatz | 2 |
Kosten
Kaufpreis |
675.000 € |
---|---|
Provision |
3,57 % Die Provision i.H.v. 3,57 % inkl. MwSt. ist mit Kaufvertragsbeurkundung fällig, sofern der Verkaufspreis über 83.000,00 € liegt. Liegt der Verkaufspreis dagegen bei/unter 83.000,00 €, ist die fest vereinbarte Mindestprovision i.H.v. mind. 5.950,00 € inkl. MwSt. mit Kaufvertragsbeurkundung fällig. Die Mindestprovision fällt insg. nur einmal an, wodurch Verkäufer und Käufer die Mindestprovision dann jeweils mit 2.975,00 € inkl. MwSt. tragen. |
Finanzierungsrechner:
Kaufpreis:
600.000 €
Eigenkapital:
600.000 €
Monatliche Rate
0 €
Effektiver Jahreszins
0 %
Sollzinsbindung
10 Jahre
Bausubstanz & Energieausweis
Baujahr | 1880 |
---|---|
Letzte Sanierung | 2018 |
Bauphase | Haus fertig gestellt |
Objektzustand | Gepflegt |
Qualität der Austattung | Normal |
Heizungsart | Zentralheizung |
Wesentliche Energieträger | Öl |
Energieausweis | liegt vor |
Energieausweistyp | Bedarfsausweis |
Energieverbrauchskennwert | 285,6 kWh/(m²*a) |
Energieeffizienzklasse | H |
285,6
kWh/(m²*a)
Energieeffizienzklasse H
- A+
- A
- B
- C
- D
- E
- F
- G
- H
- 0
- 25
- 50
- 75
- 100
- 125
- 150
- 175
- 200
- 225
- >250
Beschreibung des Objekts
Ausstattung
+ Ruhig gelegen, in Mitten der Natur mit schönem Ausreitgelände + Die Immobilie präsentiert sich in einem gepflegten Zustand und wurde fortlaufend renoviert. + Solide Ausstattung mit zwei hochwertigen Bädern und einer neuwertigen Einbauküche, inklusive Fußbodenheizung + Parkähnlich angelegtes Grundstück mit Ziergarten, überdachter Terrasse, Teichanlage, eigener Hausweide und drainiertem Paddock + Zwei große Nebengebäude, derzeit genutzt als Garage/Pferdestall und als Hofcafe, bieten ausreichend Freiraum für Ihr Hobby oder Gewerbe.
Lage
Lage: Attraktive Lage in Lindern-Garen mit guten Voraussetzungen für Selbstnutzer Bildung und Betreuung: Mehreren Kindergärten und einigen Schulen in ca. 6 km bis ca. 9 km Entfernung Nahversorgung: Anlaufstellen wie Supermarkt, Apotheke, Postfiliale und Bankfiliale in einem Radius von max. 6 km
Sonstige Angaben
Vereinbaren Sie noch heute einen Besichtigungstermin! _____________________________________________________ Alle Angaben sind ohne Gewähr und basieren ausschließlich auf Informationen, die uns von unserem Auftraggeber zur Verfügung gestellt wurden. Wir übernehmen keine Gewähr für die Vollständigkeit, Richtigkeit und Aktualität der Angaben.
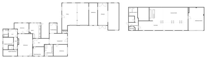
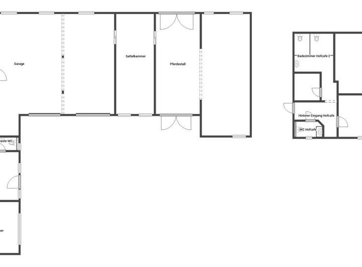
Grundriss
Grundriss Skizze EG
>

Grundriss Skizze UG
>

Adresse
49699 Lindern (Oldenburg)
Interessante Orte
Preis- und Lageinformationen
Preistrend für Bestandsimmobilien in Lindern (Oldenburg)