Inmitten der sanften Hügellandschaft von Arnoldshain, eingebettet in die natürliche Schönheit des Taunus, befindet sich dieses ganz besondere Anwesen: Das individuell geplante Architektenhaus aus dem Jahr 2002 trägt die Handschrift des renommierten Münsinger Architekten Rolf Gremmelspacher und vereint architektonische Präzision mit einem unverwechselbaren Lebensgefühl.
Raum für Leben und Rückzug – neun Zimmer, fünf Bäder, zwei potenzielle Einliegerwohnungen: Auf einem großzügigen Grundstück von ca. 1.256 m² erstreckt sich das Haus über mehrere Ebenen mit insgesamt neun lichtdurchfluteten Zimmern und fünf Bädern – ideal für Gäste, Familie oder als Büroeinheit. Der Wohnraum besticht durch luftige Proportionen, eine offene Gestaltung und ein einzigartiges Raumklima, unterstützt durch einen Innengarten, der nicht nur ein architektonisches Highlight ist, sondern auch ein funktionales Element zur Raumklimaregulierung.
Chalet-Atmosphäre mit süddeutschem Ursprung: Errichtet in hochwertiger Holzständerbauweise aus Fichtenholz der Schwäbischen Alb, verleiht die Bauweise dem Haus seinen charakteristischen Chalet-Charme. Natürliche Materialien, harmonische Farbwelten und handwerkliche Detailliebe schaffen eine warme, einladende Atmosphäre. Die massive Betonwanne im Kellergeschoss sorgt für strukturelle Sicherheit und Langlebigkeit.
Ein Panorama, das den Atem raubt: Ein 200-Grad-Rundumblick über die Taunuslandschaft eröffnet sich von zahlreichen Räumen sowie den Terrassen – ideal für Naturliebhaber und Ruhesuchende. Ob Sonnenaufgang mit Blick über die Baumwipfel oder ein Glas Wein beim Sonnenuntergang: Diese Kulisse ist täglich erlebbar.
Zustand & Potenzial: Das Haus befindet sich in einem sehr gepflegten Zustand und wurde kontinuierlich instand gehalten. Es bietet die perfekte Grundlage, um mit einem modernen Update den zeitgemäßen Wohnstil, gleichzeitig mit der ursprünglichen Architektur in Einklang zu bringen – sei es durch neue Oberflächen, smarte Haustechnik oder individuelle Gestaltungsideen.
Ein Haus für Menschen mit Sinn für Architektur, Natur und Raumqualität – ein Rückzugsort mit Charakter, der nicht alltäglich ist. Ein besonderes Objekt mit einzigartigem Charme, das bei einer Besichtigung erlebbar wird.
Architektenhaus mit Weitblick – Chalet-Charme trifft auf zeitlose Holzarchitektur in Arnoldshain
61389 Schmitten
Die vollständige Adresse der Immobilie erhalten Sie vom Anbieter.
Auf Karte anzeigen
Die vollständige Adresse der Immobilie erhalten Sie vom Anbieter.
Finanzierungszertifikat
In nur zwei Minuten zu Ihrem persönlichen Finanzierungszertifkat.
Infos
| Haustyp | Einfamilienhaus |
|---|---|
| Wohnfläche ca. | 302 m2 |
| Grundstücksfläche | 1.256 m2 |
| Bezugsfrei ab | nach Absprache |
| Zimmer | 9 |
| Garage/Stellplatz | Carport |
| Anzahl Garage/Stellplatz | 2 |
Kosten
| Kaufpreis |
0 € |
|---|---|
| Provision |
3,57 % inkl. gesetzlicher MwSt. von aktuell 19 % bezogen auf den Kaufpreis |
Finanzierungsrechner:
Kaufpreis:
600.000 €
Eigenkapital:
600.000 €
Monatliche Rate
0 €
Effektiver Jahreszins
0 %
Sollzinsbindung
10 Jahre
Bausubstanz & Energieausweis
| Baujahr | 2002 |
|---|---|
| Objektzustand | Gepflegt |
| Qualität der Austattung | Gehoben |
| Heizungsart | Holz-Pelletheizung |
| Wesentliche Energieträger | Pelletheizung |
| Energieausweis | liegt vor |
| Energieausweistyp | Verbrauchsausweis |
| Energieverbrauchskennwert | 41,0 kWh/(m²*a) |
| Energieeffizienzklasse | A |
41,0
kWh/(m²*a)
Energieeffizienzklasse A
- A+
- A
- B
- C
- D
- E
- F
- G
- H
- 0
- 25
- 50
- 75
- 100
- 125
- 150
- 175
- 200
- 225
- >250
Beschreibung des Objekts
Ausstattung
_ neun Zimmer, sechs Schlafzimmer
_ fünf Badezimmer
_ Einbauschränke
_offene Küche
_ Kamin
_ Holzfenster
_ Fliesen und Parkettboden
_ Süd-Balkon, Süd-Terrasse, seitliche Terrasse
_ besonders liebevoll angelegter und gepflegter Garten
_ Keller
_Feuerstelle
_Photovoltaik
_ Stellplatz, Carport
_ Wallbox
_ 200-Grad-Panoramablick
_zwei Einliegerwohnungen möglich
_Innengarten
Lage
_ Schmitten ist eine idyllische Großgemeinde im Hochtaunuskreis mit knapp 9.000 Einwohnern
_ Arnoldshain und die Hegewiese sind besonders familienfreundlich
_ Kindergarten und Grundschule vor Ort
_ Weiterführende Schulen in Königstein (öffentlich, privat, bilingual), Oberursel oder Neu-Anspach
_ Alle Einkaufsmöglichkeiten des täglichen Bedarfs in Schmitten vorhanden
_ Der Große Feldberg ist nur 8 Autominuten entfernt
_ In ca.10 Autominuten ist man an der Hohemark in Oberursel (U3-Anschluss nach Frankfurt), in etwa 18 Minuten in Königstein
_ In 4 Minuten Entfernung ist die Bushaltestelle Arnoldshain Schule. Von dort geht die Buslinie 60.
_ Bad Homburger Kreuz (A5 und A661) ist etwa 20 Minuten entfernt
_ Flughafen und Hauptbahnhof Frankfurt sind jeweils in ca. 30 Autominuten erreichbar
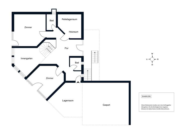
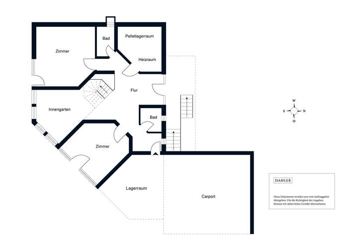
Grundriss
Erdgeschoss
>
>
Dachgeschoss
>
>
Untergeschoss
>
>
Adresse
61389 Schmitten
Interessante Orte
Preis- und Lageinformationen
Preistrend für Bestandsimmobilien in Schmitten