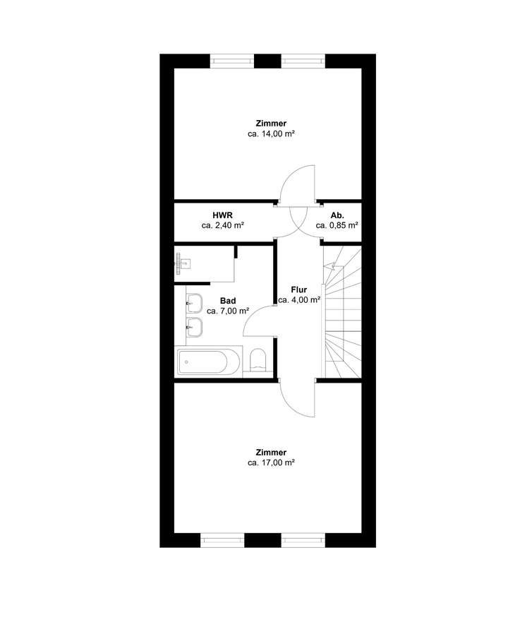
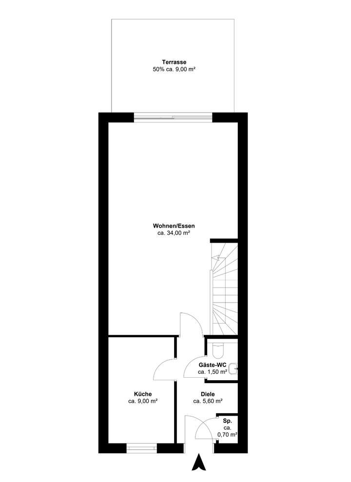
Im EG des Hauses befinden sich der Flur, Wohnzimmer, Küche, Gästetoilette (WC+Waschbecken) und eine Abstellkammer. Durch das Wohnzimmer kommt man auf die ca 16qm große überdachte (inkl. Unterdachmarkise) Terrasse, wo sich durch den kleinen Garten die Parkplätze leicht erreichen lassen.
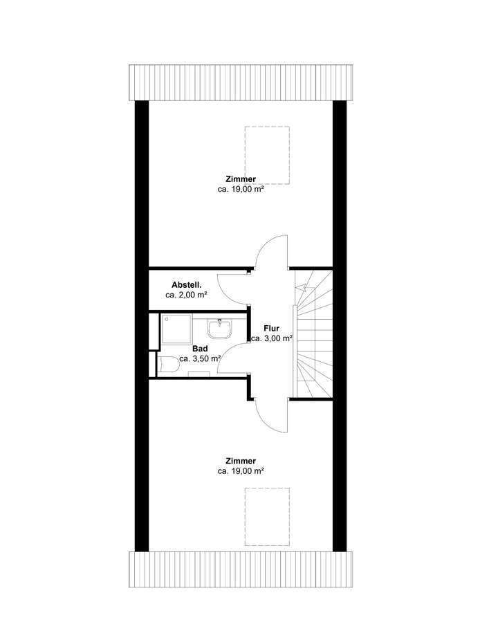
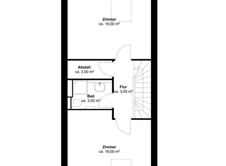
Das OG besteht aus 2 Schlafräumen, einem Bad (WC, Dusche, Badewanne, Doppelwaschbecken) ein HWR für Waschmaschine und Trockner und eine Abstellkammer.
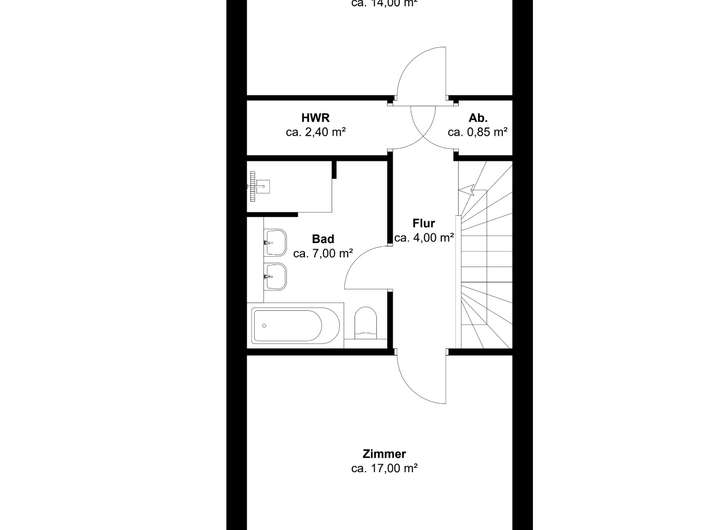
Im DG befinden sich 2 weitere Schlafräume, ein Badezimmer (WC, Dusche, Waschbecken), eine Abstellkammer und der Zugang zum Dachboden (ca. 21qm).
Beheizt wird die Immobilie durch ein Blockheizkraftwerk im Wohngebiet (Pelletheizung).
Die Parkplätze sind im Preis enthalten.
Ausstattung:
KFW55
Fußbodenheizung im EG
Einbauküche
Netzwerkverkabelung CAT 7 in jeden Stockwerk
Glasfaseranschluss
(Kleiner) Garten
Terrasse
2 Parkplätze
Überdachte Terrasse mit Unterdachmarkise
Dachboden (ca. 21qm Lagerfläche)
Energieeffizienz lt. Energieausweis: B (55kw/m2)
Verkauf von privat, keine Provision
Die Immobilie steht bereits frei und kann sofort genutzt werden.
Bei weiteren Fragen gerne kontaktieren.
Besichtigungen gern nach Absprache.
MAKLERANFRAGEN UNERWÜNSCHT UND WERDEN NICHT BEANTWORTET!
*SOFORT VERFÜGBAR* Modernes Reihenmittelhaus in familienfreundlichem Wohngebiet
65439 Flörsheim am Main
Die vollständige Adresse der Immobilie erhalten Sie vom Anbieter.
Auf Karte anzeigen
Die vollständige Adresse der Immobilie erhalten Sie vom Anbieter.
Finanzierungszertifikat
In nur zwei Minuten zu Ihrem persönlichen Finanzierungszertifkat.
Infos
| Haustyp | Reihenmittelhaus |
|---|---|
| Etagenzahl | 3 |
| Wohnfläche ca. | 141 m2 |
| Nutzfläche | 25 m2 |
| Grundstücksfläche | 105 m2 |
| Bezugsfrei ab | 25.9.2025 |
| Zimmer | 5 |
| Schlafzimmer | 4 |
| Badezimmer | 3 |
| Garage/Stellplatz | Außenstellplatz |
| Anzahl Garage/Stellplatz | 2 |
Kosten
| Kaufpreis |
565.000 € |
|---|---|
| Provision | Nein |
Finanzierungsrechner:
Kaufpreis:
600.000 €
Eigenkapital:
600.000 €
Monatliche Rate
0 €
Effektiver Jahreszins
0 %
Sollzinsbindung
10 Jahre
Bausubstanz & Energieausweis
| Baujahr | 2015 |
|---|---|
| Letzte Sanierung | 2022 |
| Bauphase | Haus fertig gestellt |
| Objektzustand | Neuwertig |
| Qualität der Austattung | Gehoben |
| Heizungsart | Holz-Pelletheizung |
| Wesentliche Energieträger | Pelletheizung |
| Energieausweis | liegt vor |
| Energieausweistyp | Bedarfsausweis |
| Energieverbrauchskennwert | 55,0 kWh/(m²*a) |
| Energieeffizienzklasse | B |
55,0
kWh/(m²*a)
Energieeffizienzklasse B
- A+
- A
- B
- C
- D
- E
- F
- G
- H
- 0
- 25
- 50
- 75
- 100
- 125
- 150
- 175
- 200
- 225
- >250
Beschreibung des Objekts
Lage
Die Immobilie befindet sich in einem Wohngebiet im Flörsheimer Ortsteil Bad Weilbach.
Bad Weilbach ist ein kleiner Ort zwischen Weilbach und Flörsheim, der durch seine fußläufig erreichbare Schwefelquelle, Wälder (mit Waldspielplatz und Wildtiergehege) und Felder einen hohen Erholungswert bietet.
Die Waren des täglichen Bedarfes, sowie Kitas, Schulen, Ärzte und sonstiges findet man in der näheren Umgebung in Weilbach und Flörsheim.
Grundriss
Grundriss EG
>
>
Grundriss OG
>
>
Grundriss DG
>
>
Adresse
65439 Flörsheim am Main
Interessante Orte
Preis- und Lageinformationen
Preistrend für Bestandsimmobilien in Flörsheim am Main