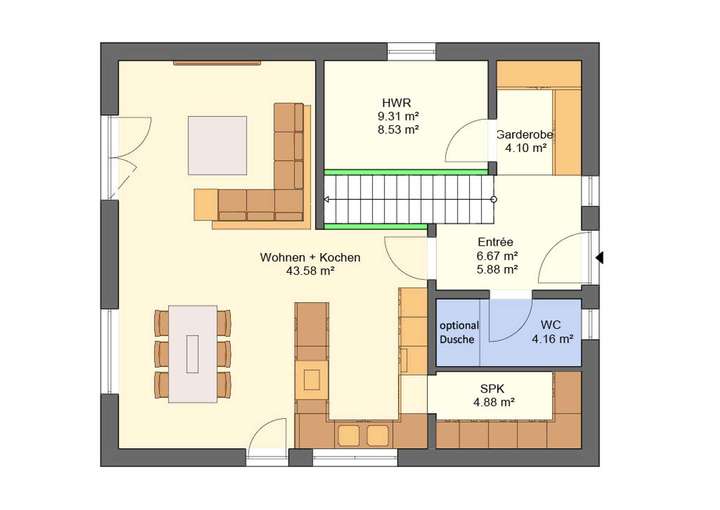
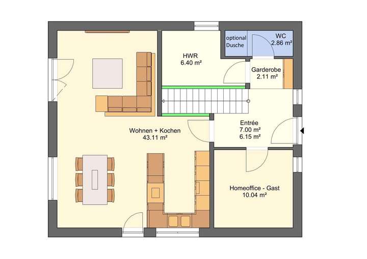
Ankommen in Frohburg - mit Weitblick und Feldrandlage! Im neuen Baugebiet in Frohburg (Benndorfer/Bahnhofsstraße) haben wir für Ihr neues Zuhause ein Südwest-Grundstück am Ende des Gebietes mit Weitblick und Feldrandlage reserviert. Das angebotene, moderne Haus besticht durch eine praktische Raumaufteilung, die großzügigen Zimmer und einen offenen, harmonisch ineinander übergehenden Wohn-, Ess- und Küchenbereich. Direkt angrenzend befindet sich eine praktische Speisekammer, die zusätzlichen Stauraum bietet und den Alltag erleichtert. Ein separates Zimmer steht flexibel als Homeoffice oder Gästezimmer zur Verfügung – ideal für modernes Arbeiten oder Besuch. Im Elternbereich ergänzt ein komfortables Ankleidezimmer das Raumangebot und sorgt für zusätzlichen Komfort. Die Kinderzimmer laden zum Spielen, Lernen und Verweilen ein. Alternativ sind auch 3 Kinderzimmer, 1 Elternbereich und 1 Homeoffice möglich. Unsere Grundrisse sind jedoch nur ein Beispiel, Sie können diese frei wählen und komplett nach Ihren Wünschen gestalten. Ein Keller ist möglich und Sie entscheiden ob Bungalow, Satteldach oder Stadtvilla. Der angebotene Preis beinhaltet das Grundstück und die schlüsselfertige 140 qm Stadtvilla mit modernem Walmdach (ohne Einbauküche). Die Baunebenkosten mit Hausanschlüssen, Malerarbeiten und Bodenbeläge in den Wohnräumen und die Außenanlagen kommen gemäß den Pauschalen der beigefügten Kostenaufstellung hinzu. Sie kaufen das Grundstück bauträgerfrei direkt vom Eigentümer.
Ankommen in Frohburg, mit Weitblick und Feldrandlage
Benndorfer Weg 20,
04654 Frohburg
Auf Karte anzeigen

Finanzierungszertifikat
In nur zwei Minuten zu Ihrem persönlichen Finanzierungszertifkat.
Infos
Haustyp | Sonstige |
---|---|
Wohnfläche ca. | 140 m2 |
Nutzfläche | 140 m2 |
Grundstücksfläche | 532 m2 |
Bezugsfrei ab | April 2027 |
Zimmer | 6 |
Schlafzimmer | 5 |
Badezimmer | 2 |
Kosten
Kaufpreis |
399.900 € |
---|---|
Provision | Nein |
Finanzierungsrechner:
Kaufpreis:
600.000 €
Eigenkapital:
600.000 €
Monatliche Rate
0 €
Effektiver Jahreszins
0 %
Sollzinsbindung
10 Jahre
Bausubstanz & Energieausweis
Baujahr | 2026 |
---|---|
Bauphase | Haus in Planung (projektiert) |
Objektzustand | Erstbezug |
Qualität der Austattung | Gehoben |
Heizungsart | Fußbodenheizung |
Wesentliche Energieträger | Umweltwärme |
Energieausweis | liegt vor |
Energieausweistyp | Bedarfsausweis |
Beschreibung des Objekts
Ausstattung
Ausstattung: - langlebige und wertbeständige Massivbauweise - wir bauen inkl. Bodenplatte, optional bieten wir gern die vorbereitenden Erdarbeiten an - Architektenleistung inkl. - geringer Mehrpreis für Effizienzhausstandard 40, mit der Möglichkeit für KfW-Fördermittel - klimafreundliche Luftwasser-Wärmepumpe - Fußbodenheizung - Dusche im Erdgeschossbad ist optional möglich - einzugsfertig (außer Malern/Bodenbeläge) - 3-fach verglaste Fenster inkl. elektrischen Aluminiumrolladen - Wohnraumhöhe von 2,60/ 2,50 m enthalten – Wand- und Bodenfliesen im Bad und Gäste-WC – hochwertige Sanitärausstattung – umfangreiche Elektroausstattung - und vieles mehr...
Lage
Familienfreundlich wohnen in Frohburg – naturnah und gut angebunden! Das neue Wohngebiet in Frohburg entsteht in idealer Lage zwischen Bahnhofstraße und Benndorfer Weg, am nordwestlichen Rand des charmanten Kleinstadtzentrums. Hier verbindet sich die Ruhe einer gewachsenen Wohnlage mit moderner Infrastruktur – perfekt für Familien, Paare und alle, die naturnah und dennoch gut angebunden wohnen möchten. Direkt angrenzend entsteht ein neues Nahversorgungszentrum mit Edeka, Rossmann und Ernsting's family. Die Stadt im Süden des Landkreises Leipzig bietet jungen Familien die ideale Mischung aus ländlicher Ruhe, guter Infrastruktur und schneller Anbindung in die Region. Hier finden Sie ein Zuhause, das viel Platz für Familienleben, Freizeit und Erholung lässt – und gleichzeitig kurze Wege in die Stadt bietet. Alles vor Ort – perfekt für Familien In Frohburg gibt es mehrere Kindertagesstätten, eine Grundschule sowie eine Oberschule Einkaufsmöglichkeiten für den täglichen Bedarf, Ärzte, Apotheken und Sportvereine sind ebenso vorhanden. Spielplätze, grüne Wege und ein familienfreundliches Umfeld machen das Wohnen hier besonders attraktiv. Anbindung & Mobilität Mit der Bahn: Vom Bahnhof Frohburg gelangen Sie mit der Regionalbahn in ca. 35–40 Minuten direkt nach Leipzig. Mit dem Auto: Über die B95 erreichen Sie Leipzig in rund 35 Minuten. Die Autobahn A72 (Anschluss Borna-Nord) ist in etwa 10 Minuten erreichbar, die A38 in ca. 20 Minuten. Damit bestehen schnelle Verbindungen nach Leipzig, Chemnitz, Altenburg und ins Umland. Buslinien verbinden Frohburg zuverlässig mit den umliegenden Orten. Freizeit & Erholung Die Umgebung lädt zu Radtouren, Wanderungen und Ausflügen ein – ob zum nahegelegenen Rochlitzer Berg, ins Kohrener Land oder zu den Badeseen der Region. Vereine, Sportanlagen und kulturelle Angebote runden die hohe Lebensqualität für Familien ab.
Sonstige Angaben
WAS ZEICHNET UNS AUS: - alle Leistungen aus einer Hand - umfassende, kundenorientierte Beratung und Betreuung von Anfang bis zum Einzug - individuelle Hausplanung - Kommunikation mit Ämtern und Behörden, sowie externen Dienstleistern - massive Bauweise - Energieeffizienzhäuser - Festpreisgarantie und Bauzeitvereinbarung Nehmen Sie gern mit uns Kontakt auf und wir erzählen Ihnen von unserem RÜHMANNSWEG in IHR neues Zuhause. Wir freuen uns auf Sie!
Weitere Dokumente
Rweg Kostenplanung_2025 FrohbuGrundriss
Grundrissvorschlag 5 Zimmer EG
>

Grundrissvorschlag 5 Zimmer OG
>

Grundrissvorschlag 6 Zimmer EG
>

Grundrissvorschlag 6 Zimmer OG
>

Adresse
Benndorfer Weg 20, 04654 Frohburg
Interessante Orte
Preis- und Lageinformationen
Preistrend für Bestandsimmobilien in Frohburg