Dieses Reihenmittelhaus überzeugt durch seine helle und freundliche Atmosphäre sowie die attraktive, ruhige Lage in einem gepflegten Wohnumfeld. Es vereint Wohnkomfort und Ruhe - perfekt für Familien, Paare oder alle, die ein behagliches Zuhause suchen.
BÖTTGER bietet: Helles Reihenmittelhaus in ruhiger Wohnlage mit Garage in Garbsen OT. Frielingen
30826 Garbsen
Die vollständige Adresse der Immobilie erhalten Sie vom Anbieter.
Auf Karte anzeigen
Die vollständige Adresse der Immobilie erhalten Sie vom Anbieter.

Finanzierungszertifikat
In nur zwei Minuten zu Ihrem persönlichen Finanzierungszertifkat.
Infos
Haustyp | Reihenmittelhaus |
---|---|
Etagenzahl | 3 |
Wohnfläche ca. | 125 m2 |
Nutzfläche | 55 m2 |
Grundstücksfläche | 216 m2 |
Bezugsfrei ab | sofort |
Zimmer | 5 |
Schlafzimmer | 4 |
Badezimmer | 2 |
Garage/Stellplatz | Garage |
Anzahl Garage/Stellplatz | 1 |
Kosten
Kaufpreis |
275.000 € |
---|---|
Provision |
3,57% inkl. 19% Mehrwertsteuer Die Käuferprovision beträgt 3,57% inkl. der gesetzlichen Mehrwertsteuer bezogen auf den Kaufpreis, verdient und fällig mit Abschluss eines notariellen Kaufvertrags, zahlbar vom Käufer. Mit dem Eigentümer dieser Immobilie wurde ein provisionspflichtiger Makleralleinauftrag in gleicher Provisionshöhe abgeschlossen. |
Finanzierungsrechner:
Kaufpreis:
600.000 €
Eigenkapital:
600.000 €
Monatliche Rate
0 €
Effektiver Jahreszins
0 %
Sollzinsbindung
10 Jahre
Bausubstanz & Energieausweis
Baujahr | 1968 |
---|---|
Letzte Sanierung | 2004 |
Bauphase | Haus fertig gestellt |
Objektzustand | Gepflegt |
Qualität der Austattung | Normal |
Heizungsart | Zentralheizung |
Wesentliche Energieträger | Öl |
Energieausweis | liegt vor |
Energieausweistyp | Bedarfsausweis |
Energieverbrauchskennwert | 162,9 kWh/(m²*a) |
Energieeffizienzklasse | F |
162,9
kWh/(m²*a)
Energieeffizienzklasse F
- A+
- A
- B
- C
- D
- E
- F
- G
- H
- 0
- 25
- 50
- 75
- 100
- 125
- 150
- 175
- 200
- 225
- >250
Beschreibung des Objekts
Ausstattung
- Einbauküche mit technischen Geräten - Wohnzimmer Stäbchenparkett, übrige Räume Laminatboden - Bäder und Gäste-WC Bodenfiesen und Tageslicht - Bad Obergeschoss Badewanne - Bad Dachgeschoss Eckwanne mit Whirlpool und Dusche - Fenster doppelt isolierverglast teilweise Holz teilweise Kunststoff - Innenliegende Sonnenrollos - Terrasse mit Sonnenmarkise - Brunnen für Gartenbewässerung (Funktion ist nicht geprüft) - Kellerausgang zum Garten - Kleine Kellerbar - Dachgeschoss Verkabelung 3-adrig - Keller, Erdgeschoss und 1. OG 2-adrig - Zwei Öltanks je 1.500 Liter, Füllstand ein Tank mit ca. 1.000 Liter - Garage unterm Haus mit direktem Zugang zum Keller
Lage
Ruhige Wohngegend. Alle Einkaufsmöglichkeiten für den täglichen Bedarf im Ort z.B. Supermarkt und Bäcker sowie praktische Ärzte, Zahnarzt, Apotheke, Krippe, Kindergarten, Grundschule und Hort, Restaurant, Biergarten, Hotel, Kinderspielplatz. Schnelle Verkehrsanbindungen nach Garbsen, Wunstorf, Neustadt a. Rbge. und Hannover sowie zum Flughafen Hannover-Langenhagen. Anschluss an Autobahnen A2 und A7 in kurzer Zeit erreichbar.
Sonstige Angaben
Eine ausreichende Bonität bzw. eine gesicherte Kreditzusage zur Finanzierung dieser Immobilie setzen wir bei Ihrer Anfrage voraus. Bitte teilen Sie uns in Ihrer Anfrage unbedingt Ihre vollständigen Kontaktdaten (inkl. Vorname, Nachname, Telefonnummer, Emailadresse und Anschrift) mit. Wenn Sie diese Immobilie über uns tatsächlich kaufen bzw. es zu einem notariellen Kaufvertragsabschluss kommt, berechnen wir Ihnen für den Nachweis und/oder die Vermittlung die in diesem Angebot ausgewiesene Provision. Bis dahin ist unsere Tätigkeit als Makler für Interessenten unverbindlich und kostenfrei. Wenn Sie noch auf der Suche nach einer passenden Finanzierung für diese Immobilie sind, helfen wir Ihnen gern, einen seriösen Ansprechpartner zu finden. Als Käufer erhalten Sie so eventuell eine wertvolle Alternative zum Angebot Ihrer Hausbank oder Ihres Finanzberaters. Wir empfehlen seit vielen Jahren erfolgreich die Allianz Generalvertretung für Immobilienfinanzierungen Alexander Tritz in Garbsen. Dieses Angebot ist freibleibend, Irrtum und Zwischenverkauf bleiben vorbehalten. Grundlage für die Vermittlung dieser Immobilie sind unsere Allgemeinen Geschäftsbedingungen (AGB), die diesem Angebot als Pdf-Datei beigefügt sind. Der Inhalt dieses Angebotes mit allen Angaben zum Objekt einschließlich der Größenangaben, Darstellungen und Zeichnungen (z.B. Grundrisse) beruhen ausschließlich auf den Auskünften und Angaben des Verkäufers und wurden von uns nicht geprüft. Eine Gewähr, Haftung oder Garantie für die Richtigkeit aller Angaben und Beschreibungen wird nicht übernommen Inventar ist nur dann im Kaufpreis enthalten, wenn dieses schriftlich so vereinbart ist. Auf den Fotos ggf. abgebildete Einrichtungsgegenstände sind nicht im Kaufpreis enthalten. Bitte beachten Sie auch folgenden Verbraucherhinweis: Online-Streitbeilegung gemäß Art. 14 Abs. 1 ODR-VO: Die Europäische Kommission stellt eine Plattform zur Online-Streitbeilegung (OS) bereit, die Sie hier finden: ec.europa.eu/consumers/oder Verbraucher haben die Möglichkeit, diese Plattform für die Beilegung ihrer Streitigkeiten zu nutzen. Für den Inhalt dieses Links übernehmen wir wie auch für etwaige andere Links auf unserer Homepage ausdrücklich keine Haftung. Hier ist ausschließlich der jeweilige Herausgeber bzw. Verantwortliche der verlinkten Seite verantwortlich.
Weitere Dokumente
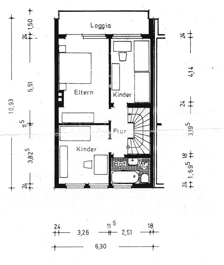
Allgemeine GeschäftsbedingungeGrundriss
Obergeschoss
>

Dachgeschoss
>

Keller
>

Adresse
30826 Garbsen
Interessante Orte
Preis- und Lageinformationen
Preistrend für Bestandsimmobilien in Garbsen