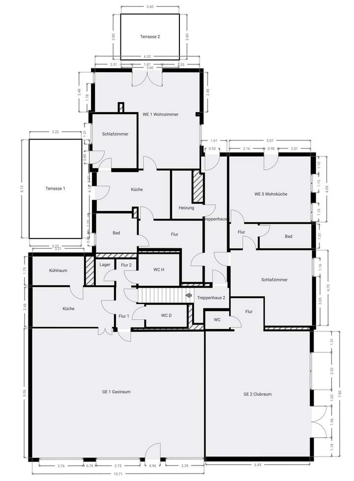
Das Wohn- und Geschäftshaus aus dem Jahr 1908 erstreckt sich über eine Grundstücksfläche von ca. 980 m² und bietet eine Wohnfläche von ca. 295.71 m² sowie eine Gewerbefläche von 175,81m².
Die jährlichen Mieteinnahmen belaufen sich auf 34.800€, was einem Mietfaktor von 11,75 entspricht. Ein Nutzungsdauergutachten bestätigt eine Nutzungsdauer von 18 Jahren. Dadurch kann die Immobilie mit 5,56% abgeschrieben werden. In Kombination mit einer Mietrendite von ca. 8,50% stellt dies eine hervorragende Investitionsmöglichkeit dar.
Das Gebäude wurde im Jahr 1964 umgebaut und modernisiert, um es zu einem Wohn- und Geschäftshaus zu machen. In den Jahren 1994, 1999, 2010 und 2011 wurden weitere Umbauten durchgeführt, um den gewerblichen Teil zu erweitern und eine neue Wohneinheit zu schaffen.
Die Heizungsanlage wurde zuletzt im Jahr 2018 erneuert, um den Energieverbrauch zu optimieren. Das Objekt präsentiert sich als vielseitige Immobilie mit einer interessanten Historie und zahlreichen Entwicklungsschritten.
Die Immobilie zeichnet sich durch ihre zentrale Lage aus, die eine gute Anbindung an Geschäfte, Restaurants und öffentliche Verkehrsmittel ermöglicht. Der Mix aus Wohn- und Gewerbeflächen bietet vielfältige Nutzungsmöglichkeiten und eignet sich ideal für Investoren auf der Suche nach einem wertstabilen und rentablen Anlageobjekt.
Insgesamt präsentiert sich dieses Objekt als attraktive Investitionsmöglichkeit mit kontinuierlichen Mieteinnahmen und Potential für weiteres Wachstum. Mit den An- und Umbauten sowie der zentralen Lage bietet es eine solide Basis für langfristige Wertsteigerung. Der Zustand der Immobilie ist teilweise als Renovierungs- und Sanierungsbedürftig einzustufen und kann somit weiter gehoben werden.
Kontaktieren Sie uns für weitere Informationen und vereinbaren Sie einen Besichtigungstermin, um sich selbst von den Vorzügen dieser Immobilie zu überzeugen.
Profitables Investment: Haus mit 5,56% Abschreibung / 8,50% Mietrendite
26655 Westerstede
Die vollständige Adresse der Immobilie erhalten Sie vom Anbieter.
Auf Karte anzeigen
Die vollständige Adresse der Immobilie erhalten Sie vom Anbieter.
Finanzierungszertifikat
In nur zwei Minuten zu Ihrem persönlichen Finanzierungszertifkat.
Infos
| Etagenzahl | 2 |
|---|---|
| Wohnfläche ca. | 295 m2 |
| Nutzfläche | 56,11 m2 |
| Grundstücksfläche | 980 m2 |
| Zimmer | 12 |
| Badezimmer | 7 |
| Garage/Stellplatz | Garage |
| Anzahl Garage/Stellplatz | 3 |
Kosten
| Kaufpreis |
409.000 € |
|---|---|
| Provision |
Käuferprovision beträgt 3,57 % (inkl. MwSt.) des beurkundeten Kaufpreises |
Finanzierungsrechner:
Kaufpreis:
600.000 €
Eigenkapital:
600.000 €
Monatliche Rate
0 €
Effektiver Jahreszins
0 %
Sollzinsbindung
10 Jahre
Bausubstanz & Energieausweis
| Baujahr | 1908 |
|---|---|
| Letzte Sanierung | 2018 |
| Heizungsart | Zentralheizung |
| Wesentliche Energieträger | Gas |
| Energieausweis | liegt vor |
| Energieausweistyp | Bedarfsausweis |
| Energieverbrauchskennwert | 186,9 kWh/(m²*a) |
| Energieeffizienzklasse | F |
186,9
kWh/(m²*a)
Energieeffizienzklasse F
- A+
- A
- B
- C
- D
- E
- F
- G
- H
- 0
- 25
- 50
- 75
- 100
- 125
- 150
- 175
- 200
- 225
- >250
Beschreibung des Objekts
Lage
Lage und Infrastruktur:
Ocholt ist ein charmantes Dorf in der Stadt Westerstede, Niedersachsen. Es bietet eine ruhige und friedliche Atmosphäre, die ideal für ein entspanntes Wohnen ist. Die Infrastruktur in Ocholt ist gut entwickelt und bietet den Bewohnern alle Annehmlichkeiten für den täglichen Bedarf:
Einkaufsmöglichkeiten: In Ocholt gibt es mehrere Supermärkte und Geschäfte, die eine breite Palette von Produkten anbieten. Von Lebensmitteln über Haushaltswaren finden Sie hier alles, was Sie brauchen.
Gesundheitsversorgung: Die Gesundheitsversorgung in Ocholt ist ebenfalls gut. Es gibt mehrere Arztpraxen und Apotheken in der Umgebung, die eine umfassende medizinische Versorgung gewährleisten.
Bildung: In Bezug auf Bildungseinrichtungen gibt es in Ocholt und der näheren Umgebung mehrere Kindergärten und Schulen. Dies macht den Ort ideal für Familien mit Kindern.
Öffentliche Dienstleistungen: Ocholt verfügt auch über eine Reihe von öffentlichen Dienstleistungen, darunter eine Poststelle, eine Bank und eine Bücherei. Diese Dienstleistungen tragen zur Bequemlichkeit und zum Komfort der Bewohner bei.
Verkehrsanbindung:
Die Verkehrsanbindung in Ocholt ist ausgezeichnet.
Der Bahnhof Westerstede-Ocholt ist ein wichtiger Verkehrsknotenpunkt in der Region. Er liegt etwa acht Kilometer vom Zentrum von Westerstede entfernt und befindet sich auf der Strecke zwischen Oldenburg und Leer. Die zwei Gleise werden stündlich von Zügen in Richtung Norddeich Mole und Oldenburg angefahren.
Es gibt auch gute Busverbindungen von Ocholt nach Westerstede.
Darüber hinaus ist Ocholt gut an das Straßennetz angebunden, was eine schnelle und bequeme Anreise mit dem Auto ermöglicht.
Sonstige Angaben
GELDWÄSCHE: Als Immobilienmaklerunternehmen ist die von Poll Immobilien GmbH nach § 2 Abs. 1 Nr. 14 und § 11 Abs. 1, 2 Geldwäschegesetz (GwG) dazu verpflichtet, bei der Begründung einer Geschäftsbeziehung die Identität des Vertragspartners festzustellen und zu überprüfen, bzw. sobald ein ernsthaftes Interesse an der Durchführung des Immobilienkaufvertrages besteht. Hierzu ist es erforderlich, dass wir nach § 11 Abs. 4 GwG die relevanten Daten Ihres Personalausweises festhalten (wenn Sie als natürliche Person handeln) – beispielsweise mittels einer Kopie. Bei einer juristischen Person benötigen wir eine Kopie des Handelsregisterauszugs, aus welchem der wirtschaftlich Berechtigte hervorgeht. Das Geldwäschegesetz sieht vor, dass der Makler die Kopien bzw. Unterlagen fünf Jahre aufbewahren muss. Als unser Vertragspartner haben Sie auch eine Mitwirkungspflicht nach § 11 Abs. 6 GwG.
HAFTUNG: Wir weisen darauf hin, dass die von uns weitergegebenen Objektinformationen, Unterlagen, Pläne etc. vom Verkäufer bzw. Vermieter stammen. Eine Haftung für die Richtigkeit oder Vollständigkeit der Angaben übernehmen wir daher nicht. Es obliegt daher unseren Kunden, die darin enthaltenen Objektinformationen und Angaben auf ihre Richtigkeit hin zu überprüfen. Alle Immobilienangebote sind freibleibend und vorbehaltlich Irrtümer, Zwischenverkauf- und Vermietung oder sonstiger Zwischenverwertung.
UNSER SERVICE FÜR SIE ALS EIGENTÜMER:
Planen Sie den Verkauf oder die Vermietung Ihrer Immobilie, so ist es für Sie wichtig, deren Marktwert zu kennen. Lassen Sie kostenfrei und unverbindlich den aktuellen Wert Ihrer Immobilie professionell durch einen unserer Immobilienspezialisten einschätzen. Unser bundesweites und internationales Netzwerk ermöglicht es uns, Verkäufer bzw. Vermieter und Interessenten bestmöglich zusammenzuführen.
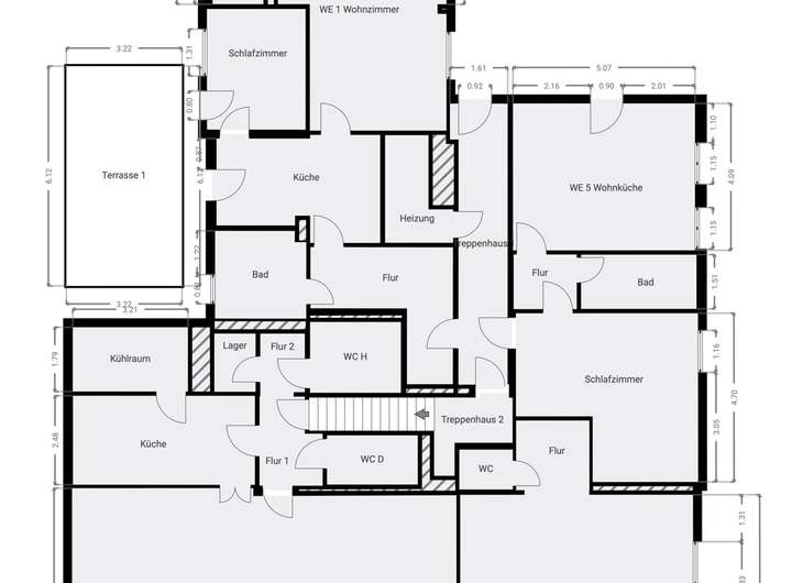
Grundriss
EG
>
>
OG
>
>
Adresse
26655 Westerstede
Interessante Orte
Preis- und Lageinformationen
Preistrend für Bestandsimmobilien in Westerstede