Dieses wunderschöne Friesenhaus aus dem Jahr 1996 präsentiert sich als echtes Juwel in idyllischer Lage. Mit einer Wohnfläche von ca. 160 m² auf einem großzügigen Grundstück von 649 m² verbindet es gehobenes Wohnambiente mit liebevoller Architektur und einem hohen Maß an Wohnkomfort.
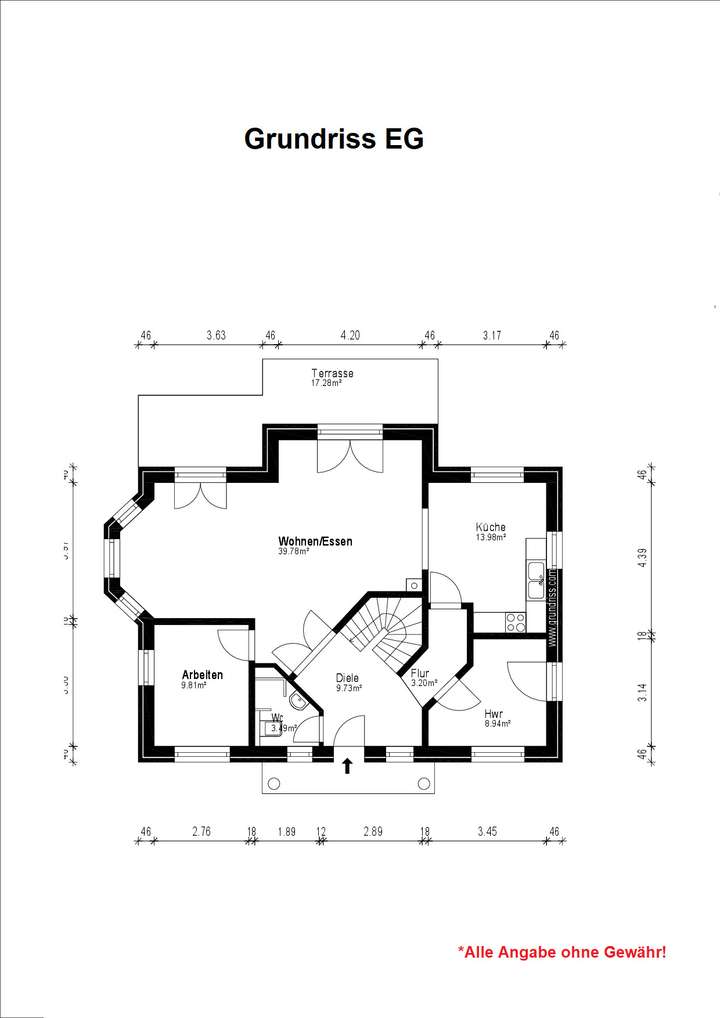
Schon beim Betreten des Hauses empfängt Sie ein großzügiger Eingangsbereich, der den Blick direkt in das weitläufige Wohnzimmer mit Wohn- und Essbereich freigibt. Von hier aus gelangen Sie auf die sonnige Terrasse, die einen herrlichen Blick über die umliegenden Weiden bietet. Rechts vom Wohnzimmer liegt die helle Küche, die ebenfalls einen Zugang zur Terrasse eröffnet. Auf der linken Seite befindet sich das Büro, ideal für modernes Wohnen und Arbeiten unter einem Dach.
Im Erdgeschoss finden Sie außerdem ein komfortables Gäste-WC mit Dusche sowie einen Hauswirtschaftsraum mit Zugang zur Garage.
Das Obergeschoss überzeugt durch eine durchdachte Raumaufteilung: Ein helles Schlafzimmer, zwei Kinderzimmer mit Zugang zu einem gemeinsamen Balkon, ein Gästezimmer sowie das Hauptbadezimmer mit eigenem Balkon bieten Platz für die ganze Familie. Ein besonderes Highlight: Von den Kinderzimmern führen jeweils Treppen in die ausgebauten Dachgeschosse, die derzeit als zusätzliche Spielzimmer genutzt werden und den Kindern viel Raum zur Entfaltung geben.
Im Obergeschoss befindet sich auch die Infrarotsauna, die zum Entspannen einlädt.
Der Außenbereich lässt keine Wünsche offen: Ein beheizter Pool sorgt für sommerliches Badevergnügen. Hier vereinen sich Komfort, Erholung und Lebensqualität in einzigartiger Weise.
Dieses Haus ist nicht nur ein Ort zum Wohnen, sondern ein Ort zum Wohlfühlen, hochwertig, großzügig und mit viel Liebe zum Detail gestaltet.
Traumhaftes freistehendes Friesenhaus mit Pool und Weitblick
27809 Lemwerder
Die vollständige Adresse der Immobilie erhalten Sie vom Anbieter.
Auf Karte anzeigen
Die vollständige Adresse der Immobilie erhalten Sie vom Anbieter.
Finanzierungszertifikat
In nur zwei Minuten zu Ihrem persönlichen Finanzierungszertifkat.
Infos
| Haustyp | Einfamilienhaus |
|---|---|
| Etagenzahl | 2 |
| Wohnfläche ca. | 160 m2 |
| Grundstücksfläche | 649 m2 |
| Bezugsfrei ab | nach Absprache |
| Zimmer | 6 |
| Schlafzimmer | 5 |
| Badezimmer | 2 |
| Garage/Stellplatz | Außenstellplatz |
| Anzahl Garage/Stellplatz | 1 |
Kosten
| Kaufpreis |
540.000 € |
|---|---|
| Provision |
3,57 % (inkl. 19 % MwSt.) vom beurkundeten Kaufpreis, jeweils vom Käufer und Verkäufer |
Finanzierungsrechner:
Kaufpreis:
600.000 €
Eigenkapital:
600.000 €
Monatliche Rate
0 €
Effektiver Jahreszins
0 %
Sollzinsbindung
10 Jahre
Bausubstanz & Energieausweis
| Baujahr | 1996 |
|---|---|
| Objektzustand | Neuwertig |
| Heizungsart | Wärmepumpe |
| Energieausweis | liegt vor |
| Energieausweistyp | Verbrauchsausweis |
| Energieverbrauchskennwert | 120,0 kWh/(m²*a) |
| Energieeffizienzklasse | A |
120,0
kWh/(m²*a)
Energieeffizienzklasse A
- A+
- A
- B
- C
- D
- E
- F
- G
- H
- 0
- 25
- 50
- 75
- 100
- 125
- 150
- 175
- 200
- 225
- >250
Beschreibung des Objekts
Ausstattung
-Baujahr 1996
-ca. 160 m² Wohnfläche
-ca. 649 m² Grundstück
-Freistehendes Friesenhaus in idyllischer Lage
-Großzügiger Eingangsbereich
-Wohn- und Esszimmer mit Terrassenzugang
-Helle Küche mit Zugang zur Terrasse
-Büro im Erdgeschoss
-Gäste-WC mit Dusche
-Hauswirtschaftsraum mit Garagenzugang
-Schlafzimmer, Gästezimmer, zwei Kinderzimmer mit Balkonzugang
-Hauptbadezimmer mit Balkon
-Zwei ausgebaute Dachgeschosse (z. B. als Spielzimmer nutzbar)
-Beheizter Pool im Garten mit Pumpe
-Infrarotsauna
-Doppelbalkon mit Blick auf die umliegenden Weiden
-Garage mit direktem Hauszugang
-Photovoltaikanlage
- Wärmepumpe
- Ladestation in der Garage
Lage
In einer ruhigen Wohnstraße, unweit der Weser und eingebettet in die grüne Landschaft der Stedinger Marsch, liegt dieses charmante Friesenhaus im Mellumring 28 in Lemwerder. Die Lage verbindet idyllisches Wohnen mit allen Annehmlichkeiten des täglichen Lebens.
Familien profitieren von kurzen Wegen: Zwei Grundschulen sowie das örtliche Gymnasium und die moderne Eschhofschule als Ganztags-Oberschule sind schnell erreichbar. Auch Kindergärten und vielfältige Betreuungsangebote befinden sich in der Nähe, sodass sich der Alltag bequem gestalten lässt.
Für die Versorgung ist bestens gesorgt – ob der gut sortierte EDEKA mit Frischetheke, die Discounter Lidl und Netto oder der Getränkemarkt HOL’AB!, alle wichtigen Einkaufsmöglichkeiten liegen in unmittelbarer Nähe. Ergänzt wird dies durch ärztliche Versorgung, Apotheken sowie weitere Dienstleister im Ortskern.
Lemwerder selbst überzeugt durch seine besondere Lage direkt an der Weser. Spaziergänge und Radtouren auf dem Deich, der beliebte Weserradweg oder ein Besuch der Weserside-Gallery laden zur Freizeitgestaltung ein. Die Fährverbindung nach Bremen-Vegesack macht die Hansestadt schnell erreichbar – ideal für Pendler wie auch für kulturelle Abstecher. Auch die Nachbarorte Berne, Ganderkesee und Delmenhorst sind gut angebunden, während Oldenburg und Bremen über die Autobahnen A 28, A 29 und A 281 schnell erreichbar sind.
So vereint dieses Friesenhaus die Vorzüge eines ruhigen, naturnahen Lebensmittelpunkts mit der Nähe zu lebendigen Nachbarstädten. Hier lassen sich maritime Gelassenheit, historisch gewachsene Kultur und moderner Wohnkomfort auf besondere Weise verbinden.
Sonstige Angaben
Der Energieausweis ist in Bearbeitung und liegt bei den Besichtigungen vor.
Teile der hochwertigen Einrichtung können nach Absprache übernommen werden
Unsere Objektangaben basieren auf den uns erteilten Informationen. Eine Haftung für die Richtigkeit und Vollständigkeit können wir deshalb nicht übernehmen.
Grundriss
Grundriss EG
>
>
Grundriss DG
>
>
Adresse
27809 Lemwerder
Interessante Orte
Preis- und Lageinformationen
Preistrend für Bestandsimmobilien in Lemwerder