Diese Doppelhaushälfte aus dem Jahr 2020 bietet auf mehreren Etagen viel Platz für die ganze Familie und liegt in einer ruhigen Lage mit Nähe zur Natur.
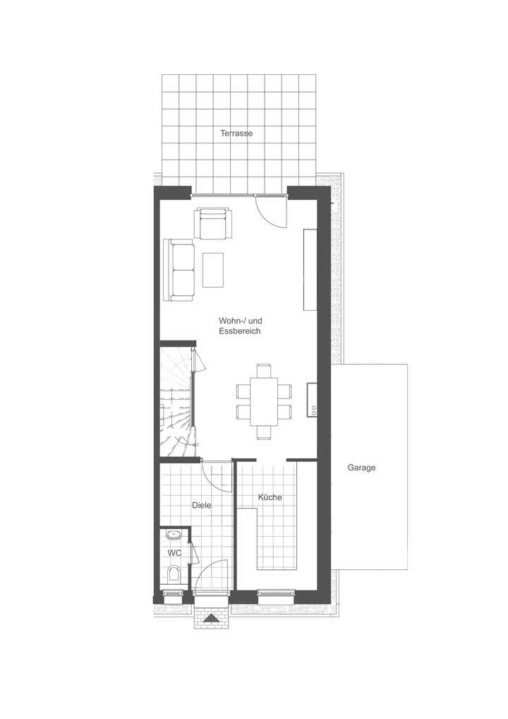
Helle, offene Wohnbereiche, eine funktionale Küche und ein Garten mit Terrasse schaffen Raum zum Wohlfühlen und Entspannen.
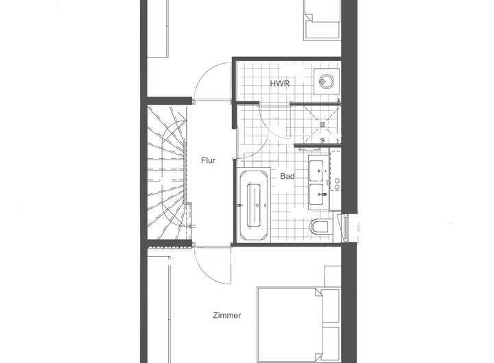
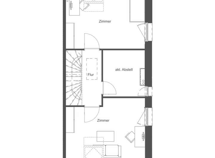
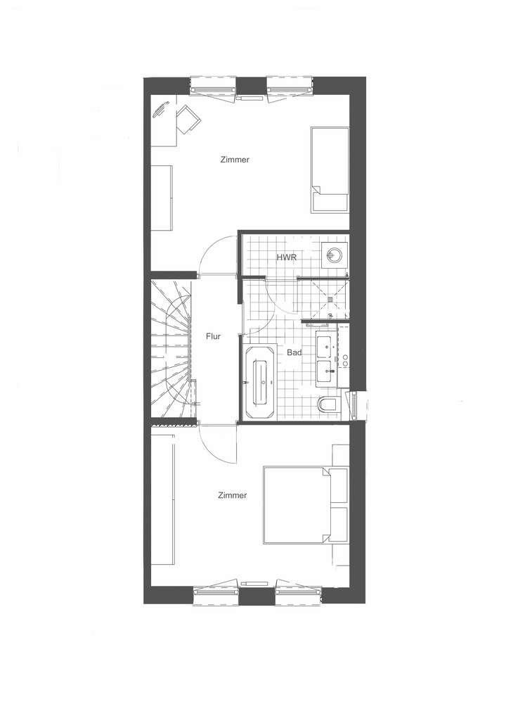
Im Obergeschoss finden Sie mehrere Zimmer, die flexibel genutzt werden können, sowie ein modernes Badezimmer. Das Dachgeschoss bietet zusätzlichen Raum, der individuell gestaltbar ist – ideal für Kinder, Gäste oder ein Homeoffice. Praktische Abstellflächen und vorbereitete Anschlüsse für ein weiteres Bad runden das Angebot ab.
Dieses Haus vereint modernen Wohnkomfort mit einer einladenden Atmosphäre.
Weitere Informationen sowie eine größere Auswahl an Fotos finden Sie im Exposé – wir freuen uns auf Ihre Kontaktaufnahme!
Neuwertige Doppelhaushälfte in familienfreundlicher Lage!
61194 Niddatal
Die vollständige Adresse der Immobilie erhalten Sie vom Anbieter.
Auf Karte anzeigen
Die vollständige Adresse der Immobilie erhalten Sie vom Anbieter.
Finanzierungszertifikat
In nur zwei Minuten zu Ihrem persönlichen Finanzierungszertifkat.
Infos
| Haustyp | Doppelhaushaelfte |
|---|---|
| Wohnfläche ca. | 140 m2 |
| Grundstücksfläche | 299 m2 |
| Zimmer | 5 |
| Schlafzimmer | 4 |
| Badezimmer | 1 |
| Anzahl Garage/Stellplatz | 1 |
Kosten
| Kaufpreis |
495.000 € |
|---|---|
| Provision |
3,57 % Der Makler-Vertrag mit uns kommt durch schriftl. Vereinbarung und durch die Inanspruchnahme unserer Maklertätigkeit auf der Basis des Objekt-Exposés und seiner Bedingungen zustande. Die Käufercourtage in Höhe von 3,57 % auf den Kaufpreis einschl. 19% Mehrwertsteuer ist bei notariellem Vertragsabschluss verdient und fällig. Wir haben einen entgeltpflichtigen Maklervertrag über den gleichen Provisionssatz mit dem Verkäufer geschlossen (Maklervertrag mit beiden Seiten gem. § 656 c BGB) |
Finanzierungsrechner:
Kaufpreis:
600.000 €
Eigenkapital:
600.000 €
Monatliche Rate
0 €
Effektiver Jahreszins
0 %
Sollzinsbindung
10 Jahre
Bausubstanz & Energieausweis
| Baujahr | 2020 |
|---|---|
| Objektzustand | Neuwertig |
| Qualität der Austattung | Gehoben |
| Energieausweis | liegt vor |
Beschreibung des Objekts
Ausstattung
* Teil einer Wohnungseigentümergemeinschaft (WEG) * Grundstücksanteil ca. 241 m² (§8 WEG geteilt) zzgl. ca. 58 m² gemeinschaftlicher Fläche
* Grundstücksausrichtung nach Osten
* Wohnfläche ca. 140 m²
* Hausbaujahr 2020
* Fenster 3-fach verglast
* Garage direkt neben dem Haus
* elektrische Rollladenantriebe mit Jalousienschalter (größtenteils, einzelne Fenster mit manueller Bedienung)
* Fußbodenheizung im Erdgeschoss und elektrische Badheizung im Obergeschoss * Heizkörper in den oberen Etagen
* Fernwärme, Blockheizkraftwerk
* isolierter Dachboden als zusätzliche Abstellfläche
* Wallbox in der Garage
* Böden: Schlafzimmer und Flur: Eiche Parkett, geölt, Erdgeschoss und Bäder: Feinsteinzeug
Lage
Das Haus liegt in ruhiger und naturnaher Lage in Niddatal. Einkaufsmöglichkeiten, Schulen und öffentliche Verkehrsanbindungen sind in wenigen Minuten erreichbar. Gleichzeitig bietet die Umgebung viel Grün für entspannte Stunden im Freien.
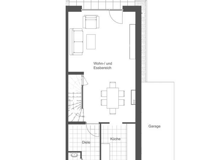
Grundriss
Erdgeschoss
>
>
Obergeschoss
>
>
Dachgeschoss
>
>
Adresse
61194 Niddatal
Interessante Orte
Preis- und Lageinformationen
Preistrend für Bestandsimmobilien in Niddatal