1968 wurde dieses ansprechende 4-Zimmer-Einfamilienhaus mit Walmdach, Vollkeller und Garage erstellt.
Die Wohnfläche beträgt ca. 100m² zzgl. ca. 60m² im Vollkeller.
Die Garage ist ebenfalls geräumig und bietet Platz für Gartengeräte und ein Auto. Zudem gibt es Abstellmöglichkeiten im geräumigen Spitzboden.
Die Beheizung erfolgt über eine Ölzentralheizung (Buderus 1991).
Das real geteilte Grundstück ist 569qm groß (Flurstück 1521),
Dabei wurde das Haus recht mittig platziert, so dass man einen über sehr geschützten rückwärtig gelegenen Gartenbereich und einen ansprechenden Vorgarten verfügt.
Klassisches Walmdach-Einfamilienhaus mit sonnigem Grundstück in Lurup
22549 Hamburg
Die vollständige Adresse der Immobilie erhalten Sie vom Anbieter.
Auf Karte anzeigen
Die vollständige Adresse der Immobilie erhalten Sie vom Anbieter.
Finanzierungszertifikat
In nur zwei Minuten zu Ihrem persönlichen Finanzierungszertifkat.
Infos
| Haustyp | Einfamilienhaus |
|---|---|
| Wohnfläche ca. | 100 m2 |
| Nutzfläche | 60 m2 |
| Grundstücksfläche | 569 m2 |
| Bezugsfrei ab | Frei lieferbar |
| Zimmer | 4 |
| Badezimmer | 1 |
| Garage/Stellplatz | Garage |
| Anzahl Garage/Stellplatz | 1 |
Kosten
| Kaufpreis |
549.000 € |
|---|---|
| Provision |
3,57% inkl. Mwst. |
Finanzierungsrechner:
Kaufpreis:
600.000 €
Eigenkapital:
600.000 €
Monatliche Rate
0 €
Effektiver Jahreszins
0 %
Sollzinsbindung
10 Jahre
Bausubstanz & Energieausweis
| Baujahr | 1968 |
|---|---|
| Objektzustand | Renovierungsbedürftig |
| Heizungsart | Öl-Heizung |
| Wesentliche Energieträger | Öl |
| Energieausweis | liegt vor |
| Energieausweistyp | Bedarfsausweis |
| Energieverbrauchskennwert | 288,4 kWh/(m²*a) |
| Energieeffizienzklasse | H |
288,4
kWh/(m²*a)
Energieeffizienzklasse H
- A+
- A
- B
- C
- D
- E
- F
- G
- H
- 0
- 25
- 50
- 75
- 100
- 125
- 150
- 175
- 200
- 225
- >250
Beschreibung des Objekts
Ausstattung
Die Ausstattung ist gepflegt, aber weitestgehend aus dem Baujahr. Die Immobilie ist renovierungs- und sanierungsbedürftig.
Die Aufteilung der Räume ist gelungen und eignet sich bestens für ein zukünftiges Familiendomizil.
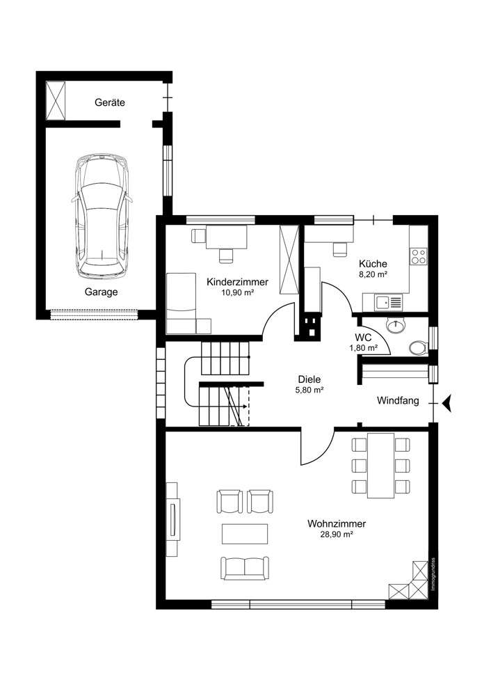
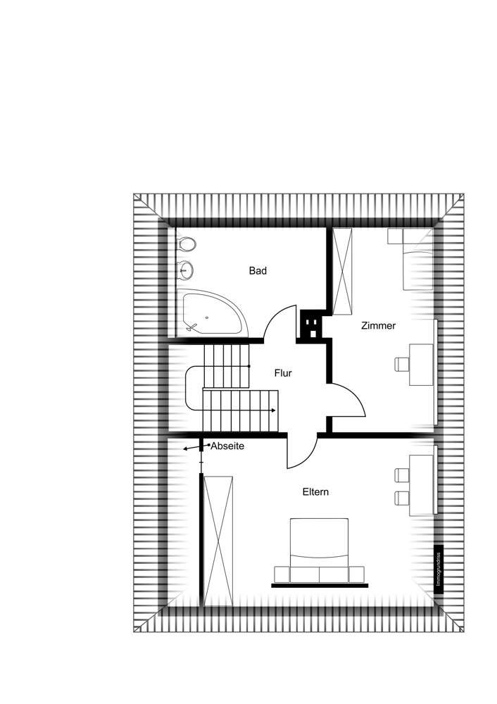
Das Haus verfügt über 4 geräumige Zimmer, eine weiße Einbauküche mit modernen Elektrogeräten, Gäste-WC sowie ein weißes Vollbad mit Rundbadewanne.
Im Erdgeschoss gibt es elektrische Rollläden.
Lage
Der Luckmoor ist eine sehr hübsche Wohnstraße mit überwiegend Einfamilienhausbebauung.
Schulen und Einkaufsmöglichkeiten sind im nahen Umfeld schnell erreichbar. Die angrenzende Luruper Hauptstraße wird von der Metrobuslinie 2 bis Altona befahren. Auch Anschlussmöglichkeiten an die S_Bahnstationen (z.B. Elbgaustraße S21/S3) sind gegeben.
Die Autobahnauffahrt zur A7 (Auffahrt Othmarschen) ist schnell mit dem Auto zu erreichen.
Sonstige Angaben
Die Gebäudesubstanz ist sanierungsbedürftig. Die Kelleraußenwände sind feucht.
Grundriss
Grundriss_EG
>
>
Grundriss_OG
>
>
Grundriss_KG
>
>
Adresse
22549 Hamburg
Interessante Orte
Preis- und Lageinformationen
Preistrend für Bestandsimmobilien in Lurup