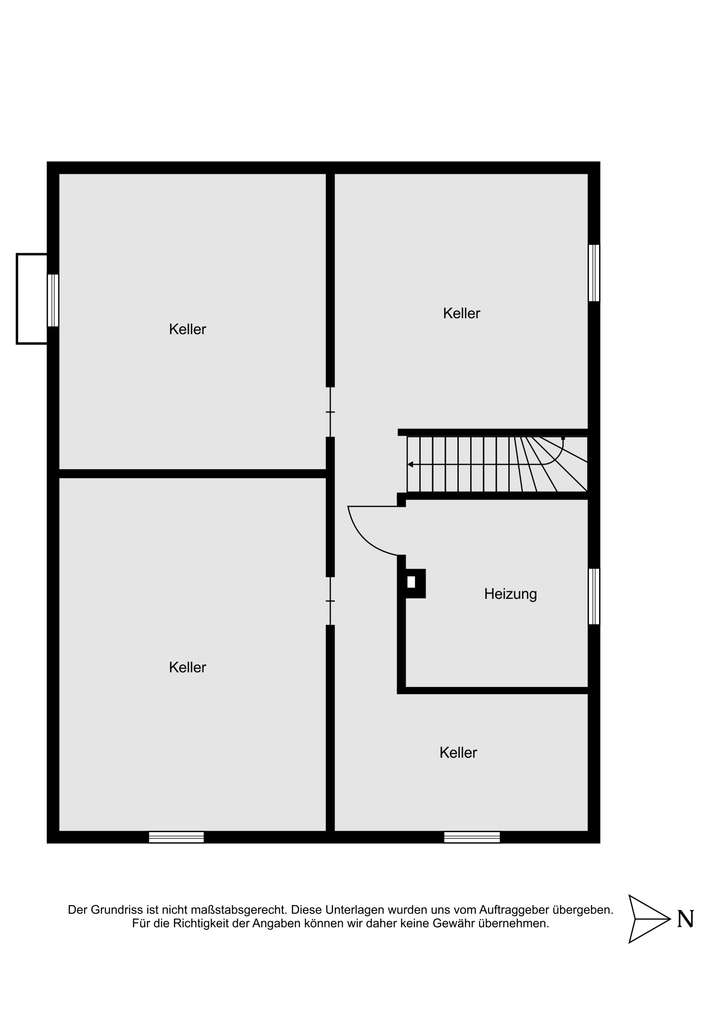
Diese sehr gepflegte Doppelhaushälfte befindet sich in einer ruhigen und sehr gut angebundenen Lage von Sievershausen. Das Haus wurde 1978 erbaut und erstreckt sich über eine Wohnfläche von ca. 116 m². Mit seinen drei Zimmern sowie einem großen Studio im ausgebauten Dachgeschoss eignet sich diese Immobilie ideal für Familien oder Paare. Der helle Dielenbereich bietet Zugang zu allen Räumen im Erdgeschoss. Dieses umfasst neben zwei Tageslichtbädern die hochwertige Küche, zwei Schlaf- oder Büroräume sowie den lichtdurchfluteten Wohn-Essbereich. Das Wohn- und Esszimmer begeistert mit seiner Großzügigkeit und bietet genügend Raum für einen Esstisch sowie gesellige Runden mit Familie und Freunden. Für eine behagliche Wärme sorgt im gesamten Erdgeschoss eine komfortable Fußbodenheizung. Ein echtes Highlight ist die große Glasschiebetür, die den Innen- mit dem Außenbereich verbindet: Sie führt auf die ca. 36 m² große Terrasse in mit Südwestausrichtung. Der vordere Teil der Terrasse ist überdacht und verfügt über Glasfalttüren, sodass der überdachte Bereich je nach Bedarf geöffnet oder geschlossen werden kann. In den warmen Monaten kann hier die Sonne genossen und mit der Familie oder Freunden gegrillt werden. Der großzügige Garten bietet viel Platz zum Spielen und Erholen. Über eine massive Buchenholztreppe gelangt man in das Obergeschoss des Hauses, welches über ein großes ausgebautes Studio verfügt. Der wohnlich gestaltete Keller bietet neben dem Heizungsraum weitere Zimmer, welche bspw. als zusätzliches Büro, Fitnessraum oder für Feiern genutzt werden können. Abgerundet wird das Angebot durch eine finnische Sauna, eine Dusche und ein Gäste-WC.
Gepflegte Doppelhaushälfte mit großem Garten und Blick ins Grüne
31275 Lehrte
Die vollständige Adresse der Immobilie erhalten Sie vom Anbieter.
Auf Karte anzeigen
Die vollständige Adresse der Immobilie erhalten Sie vom Anbieter.

Finanzierungszertifikat
In nur zwei Minuten zu Ihrem persönlichen Finanzierungszertifkat.
Infos
Haustyp | Doppelhaushaelfte |
---|---|
Etagenzahl | 2 |
Wohnfläche ca. | 116 m2 |
Nutzfläche | 107 m2 |
Grundstücksfläche | 638 m2 |
Bezugsfrei ab | 31.10.2025 |
Zimmer | 4 |
Schlafzimmer | 2 |
Badezimmer | 2 |
Anzahl Garage/Stellplatz | 3 |
Kosten
Kaufpreis |
420.000 € |
---|---|
Provision |
3.57 % inkl. gesetzl. MwSt. |
Finanzierungsrechner:
Kaufpreis:
600.000 €
Eigenkapital:
600.000 €
Monatliche Rate
0 €
Effektiver Jahreszins
0 %
Sollzinsbindung
10 Jahre
Bausubstanz & Energieausweis
Baujahr | 1978 |
---|---|
Letzte Sanierung | 2015 |
Objektzustand | Neuwertig |
Heizungsart | Fußbodenheizung |
Wesentliche Energieträger | Gas |
Energieausweis | liegt vor |
Energieausweistyp | Bedarfsausweis |
Energieverbrauchskennwert | 144,8 kWh/(m²*a) |
Energieeffizienzklasse | E |
144,8
kWh/(m²*a)
Energieeffizienzklasse E
- A+
- A
- B
- C
- D
- E
- F
- G
- H
- 0
- 25
- 50
- 75
- 100
- 125
- 150
- 175
- 200
- 225
- >250
Beschreibung des Objekts
Ausstattung
Einbauküche Blick ins Grüne Fliesen Vollunterkellert
Lage
Die schöne und gepflegte Doppelhaushälfte befindet sich auf einem ca. 630 m² großen Grundstück in einem sehr ruhigen und wenig befahrenen Wohngebiet von Sievershausen. Nahegelegene Feldwege laden zu Spaziergängen oder Radtouren ein. Sievershausen gehört mit seinen ca. 2.400 Einwohnern zur Stadt Lehrte. Über die Anschlussstelle Hämelerwald ist der Ort hervorragend an die Autobahn A2 angebunden. Den Flughafen Hannover-Langenhagen, die hannoversche Innenstadt und den Forschungsstandort Braunschweig erreichen Sie jeweils in ca. 30 Minuten. Mit der Bahn haben Sie vom Nachbarort Hämelerwald eine Fahrtzeit von knapp 20 Minuten nach Hannover und ca. 25 Minuten bis nach Braunschweig. Weiterhin gibt es im 3 km entfernten Arpke eine Bahnverbindung nach Wolfsburg und Hannover. In Sievershausen sind eine Krippe, zwei Kindergärten und eine Grundschule vorhanden. Im Nachbarort Hämelerwald befindet sich eine integrierte Gesamtschule (IGS), weitere Schulangebote gibt es in Lehrte. Für Sportbegeisterte bieten der örtliche Sportverein und die Tennisgemeinschaft interessante Angebote. Einkaufsmöglichkeiten und Apotheken sind in unmittelbarer Nähe verfügbar.
Sonstige Angaben
Der Makler-Vertrag mit uns kommt durch die Bestätigung der Inanspruchnahme unserer Maklertätigkeit in Textform zustande. Die Höhe der Courtage richtet sich nach den ab dem 23.12.2020 in Kraft getretenen gesetzlichen Regelungen zur Teilung der Maklercourtage. Hiernach wird die Courtage regelmäßig für beide Parteien (Eigentümer und Käufer) jeweils 3,57% auf den Kaufpreis einschließlich gesetzlicher Umsatzsteuer betragen und ist bei notariellem Vertragsabschluss verdient und fällig. Die Höhe der Bruttocourtage unterliegt einer Anpassung bei Steuersatzänderung. Grunderwerbssteuer, Notar- und Gerichtskosten trägt der Käufer. Wir stehen Ihnen mit weiteren Informationen zum Objekt sowie für Besichtigungen gern zur Verfügung. Bitte nehmen Sie unsere Verbraucherinformationen und die allgemeinen Geschäftsbedingungen, die wir Ihnen nachstehend ebenfalls zur Verfügung stellen, zur Kenntnis. Engel & Völkers Immobilien Deutschland GmbH ist Lizenzpartner der Engel & Völkers Residential GmbH. Hinweise: Alle Angaben sind ohne Gewähr und basieren ausschließlich auf Informationen, die uns von unserem Auftraggeber übermittelt wurden. Wir übernehmen keine Gewähr für die Vollständigkeit, Richtigkeit und Aktualität dieser Angaben. Zwischenverkauf bleibt vorbehalten. Sollte das von uns nachgewiesene Objekt bereits bekannt sein, teilen Sie uns dies bitte unverzüglich mit. Die Weitergabe dieses Exposés an Dritte ohne unsere Zustimmung löst gegebenenfalls Courtage- bzw. Schadensersatzansprüche aus. Im Übrigen gelten unsere allgemeinen Geschäftsbedingungen.
Grundriss
Erdgeschoss
>

Kellergeschoss
>

Adresse
31275 Lehrte
Interessante Orte
Preis- und Lageinformationen
Preistrend für Bestandsimmobilien in Lehrte