Dieses freistehende Zweifamilienhaus auf einem ca. 544 m² großen Grundstück vereint Charme, Platz und vielfältige Möglichkeiten. Es besteht aus einem Altbau von 1933 sowie einem Neubau von 1979 mit Garage und angrenzender Werkstatt.
Der Altbau verfügt rund 110 m² Wohnfläche und ist sanierungsbedürftig, bietet aber viel Potenzial. Im Erdgeschoss liegen, ein Duschbad, ein Wohnzimmer sowie ein Essbereich mit offener Küche, die Zugang zum Keller und Kriechkeller gewährt. Im Obergeschoss stehen zwei Schlafzimmer und ein stillgelegtes Bad zur Verfügung. Mit einer Modernisierung kann der Altbau entweder als eigenständige Einheit genutzt, mit dem Neubau verbunden oder als Einliegerwohnung vermietet werden.
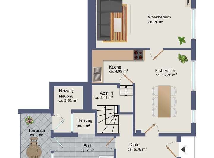
Der Neubau bietet ca. 123 m² Wohnfläche. Ein großzügiger Eingangsbereich führt am Gäste-WC vorbei, zur Küche mit Essplatz sowie in das große Wohn- und Esszimmer mit breiter Fensterfront. Von der Küche gelangt man auf die Terrasse und in den Garten. Im Obergeschoss befinden sich drei Schlafzimmer, ideal nutzbar als Elternschlafzimmer mit Balkon sowie zwei weitere Schlafzimmer nutzbar als Kinder- oder Arbeitszimmer.
Das Anwesen eignet sich hervorragend als Mehrgenerationenhaus oder zur Kombination von Eigennutzung und Vermietung. Mit einer gezielten Investition entsteht hier ein Zuhause mit viel Platz, Flexibilität und attraktivem Entwicklungspotenzial.
Zweifamilienhaus mit flexibler Nutzung - in beliebter Lage von Farmsen-Berne
22159 Hamburg
Die vollständige Adresse der Immobilie erhalten Sie vom Anbieter.
Auf Karte anzeigen
Die vollständige Adresse der Immobilie erhalten Sie vom Anbieter.
Finanzierungszertifikat
In nur zwei Minuten zu Ihrem persönlichen Finanzierungszertifkat.
Infos
| Haustyp | Mehrfamilienhaus |
|---|---|
| Etagenzahl | 2 |
| Wohnfläche ca. | 233 m2 |
| Nutzfläche | 47,1 m2 |
| Grundstücksfläche | 544 m2 |
| Zimmer | 9,5 |
| Schlafzimmer | 6 |
| Badezimmer | 2 |
| Garage/Stellplatz | Garage |
| Anzahl Garage/Stellplatz | 1 |
Kosten
| Kaufpreis |
595.000 € |
|---|---|
| Provision |
3,57 % |
Finanzierungsrechner:
Kaufpreis:
600.000 €
Eigenkapital:
600.000 €
Monatliche Rate
0 €
Effektiver Jahreszins
0 %
Sollzinsbindung
10 Jahre
Bausubstanz & Energieausweis
| Baujahr | 1979 |
|---|---|
| Objektzustand | Gepflegt |
| Heizungsart | Zentralheizung |
| Wesentliche Energieträger | Gas |
| Energieausweis | liegt vor |
| Energieausweistyp | Verbrauchsausweis |
| Energieverbrauchskennwert | 198,3 kWh/(m²*a) |
| Energieeffizienzklasse | F |
198,3
kWh/(m²*a)
Energieeffizienzklasse F
- A+
- A
- B
- C
- D
- E
- F
- G
- H
- 0
- 25
- 50
- 75
- 100
- 125
- 150
- 175
- 200
- 225
- >250
Beschreibung des Objekts
Ausstattung
Besondere Highlights:
+ Zweifamilienhaus oder Einfamilienhaus mit Einliegerwohnung
+ Flexible Nutzung
+ Grundstück ca. 544 m²
+ Verbindung zum Neubau möglich
Neubau:
+ Baujahr 1979 Neubau
+ Neubau sofort bezugsfähig
+ Garage mit Werkstatt/Geräteraum
+ Neubau: ca. 123 m² Wohnfläche
+ Großzügiger Eingangsbereich
+ Gäste-WC im Erdgeschoss
+ Küche mit Essplatz
+ Geräumiges Wohn-/Esszimmer
+ Große Fensterfront im Wohnbereich mit Blick auf den Garten
+ Küche mit Zugang zu Terrasse und Garten
+ OG: 3 Schlafzimmer
+ Elternschlafzimmer mit Balkon
+ 2 Kinderzimmer
+ Terrasse mit Gartenblick
Altbau:
+ Altbau sanierungsbedürftig
+ Baujahr 1933 Altbau
+ Altbau: ca. 110 m² Wohnfläche
+ EG: Wohnzimmer, Essbereich, offene Küche, Duschbad mit angrenzender Niesche und Heiztherme
+ Küche mit Zugang zu Keller und Kriechkeller
+ OG: 2 Schlafzimmer, stillgelegtes Bad
Nähere Details erläutere ich Ihnen gerne in einem persönlichen Gespräch.
Machen Sie sich selbst ein Bild von diesem schönen Objekt und vereinbaren Sie jetzt Ihren individuellen Besichtigungstermin.
Lage
Das Haus liegt in einer ruhigen und familienfreundlichen Wohngegend in Hamburg-Farmsen-Berne. Kindergärten und Schulen befinden sich im Umkreis von etwa einem Kilometer und sind bequem zu Fuß erreichbar. Ein Bäcker ist nur rund 400 m entfernt, ein Supermarkt etwa 550 m – kurze Wege für den täglichen Bedarf.
Die Anbindung an den ÖPNV ist ausgezeichnet: Die U-Bahn-Station Farmsen (U1) ist in rund 12 Gehminuten erreichbar und bringt Sie in etwa 20 Minuten direkt ins Hamburger Zentrum. Eine Bushaltestelle befindet sich in unmittelbarer Nähe.
Für Freizeit und Erholung gibt es zahlreiche Grünflächen und Spielplätze in der Umgebung. Besonders beliebt ist das nahegelegene Strandbad Farmsen, das mit dem Rad in wenigen Minuten erreichbar ist und Familien im Sommer ein attraktives Ziel bietet.
Mit dem Auto erreicht man die Hamburger Innenstadt in 20 bis 25 Minuten (ca. 12 km), das Einkaufszentrum Farmsen liegt nur fünf Minuten entfernt. Arztpraxen und Apotheken befinden sich in unmittelbarer Nähe, größere Kliniken in 15 bis 20 Autominuten.
So verbindet die Lage kurze Wege, gute Infrastruktur und eine schnelle Anbindung mit einem hohen Freizeitwert – ideal für Familien und Großfamilien.
Sonstige Angaben
Sie wollen Ihre Immobilie verkaufen? Sprechen Sie uns an und vereinbaren Sie einen Termin für eine kostenlose Werteinschätzung. Entsprechend Ihrer Vorstellungen erhalten Sie von uns ein für Sie maßgeschneidertes Vermarktungskonzept für Ihre Immobilie.
Dolberg & Uderstadt Immobilien GmbH, Ihr Vertrauensmakler seit 1971 – profitieren Sie von der Erfahrung aus 50 Jahren im Verkauf von Immobilien.
Nebenkosten: ca. 2 % Notar- und Gerichtskosten sowie 5,5 % gesetzlicher Grunderwerbsteuer
Käufercourtage: 3,57 % inkl. Mehrwertsteuer
Bitte haben Sie Verständnis dafür, dass auf Wunsch der Verkäufer keine Reservierungen vor Notartermin möglich sind.
Haftungsausschluss: Wir möchten Sie darauf hinweisen, dass sämtliche Angaben auf Grundlage von Eigentümerangaben, nach bestem Wissen und Gewissen, jedoch ohne Gewähr auf Vollständigkeit und Richtigkeit, erfolgen. Irrtum und Zwischenverkauf vorbehalten. Der Makler ist von jeglicher Haftung befreit.
Grundriss
EG Grundriss Neubau
>
>
OG Grundriss Neubau
>
>
EG Grunriss Altbau
>
>
OG Grundriss Altbau
>
>
Adresse
22159 Hamburg
Interessante Orte
Preis- und Lageinformationen
Preistrend für Bestandsimmobilien in Farmsen-Berne