In idyllischer und ruhiger Randlage von Wiesbaden-Igstadt erwartet Sie dieses großzügige, freistehende Einfamilienhaus mit vielseitigen Nutzungsmöglichkeiten – ideal für Familien, Mehrgenerationenwohnen sowie Wohnen-Arbeiten-Kombination. Das Haus wurde ursprünglich im Jahr 1960 erbaut und 1974 durch einen Anbau erweitert. Zwischen 2008 und 2014 erfolgten umfangreiche Modernisierungsmaßnahmen, u. a. an der Fassade sowie im Innenbereich. Der gepflegte Garten mit altem Baumbestand, zwei Terrassen sowie vier Balkone mit Ost- und Südausrichtung laden zum Verweilen ein. Große Fensterflächen sorgen für lichtdurchflutete Räume und bieten einen traumhaften Blick. Im Obergeschoss befinden sich der offen gestaltete Wohnbereich mit angrenzendem Esszimmer, die Küche, ein Bad sowie ein flexibel nutzbares Gäste- oder Schlafzimmer. Eine offene Treppe führt ins Dachgeschoss, das als privater Rückzugsort dient. Hier erwarten Sie ein großzügiges Schlafzimmer mit Bad en Suite, ein weiteres Schlafzimmer mit Balkon, ein begehbarer Kleiderschrank sowie ein Abstellraum. Besonders hervorzuheben ist der weite Ausblick bis in den Taunus – sowohl vom Schlafzimmer als auch vom Bad aus. Das Erdgeschoss bietet zwei große Räume, die derzeit als Home-Office genutzt werden. Sie verfügen über einen separaten Zugang zur Terrasse sowie über ein eigenes Duschbad – ideal für berufliche Nutzung oder ein separates Wohnstudio. Zusätzlich befindet sich im Erdgeschoss eine moderne, ca. 65 m² große Einliegerwohnung mit eigenem Eingang und Terrasse. Diese wurde vor wenigen Jahren umfassend renoviert und wurde bis vor Kurzem erfolgreich in der Kurzzeitvermietung betrieben. Abgerundet wird das Raumangebot durch mehrere Kellerräume mit ausreichend Stauraum für Haustechnik, Wäsche und Vorräte. Ihr Fahrzeug parken Sie bequem im Carport direkt am Haus. Bedarfsausweis: Endenergiebedarf kWh/(m²*a): 153,6, Baujahr: 1960, Anbau 1974, Energieklasse: E, Gas, CO2-Emissionsergebnis kg/(m²*a): 37,6
Großzügiges Einfamilienhaus mit Einliegerwohnung in Wiesbaden-Igstadt
65207 Wiesbaden
Die vollständige Adresse der Immobilie erhalten Sie vom Anbieter.
Auf Karte anzeigen
Die vollständige Adresse der Immobilie erhalten Sie vom Anbieter.

Finanzierungszertifikat
In nur zwei Minuten zu Ihrem persönlichen Finanzierungszertifkat.
Infos
Haustyp | Einfamilienhaus |
---|---|
Etagenzahl | 3 |
Wohnfläche ca. | 307 m2 |
Nutzfläche | 47 m2 |
Grundstücksfläche | 646 m2 |
Bezugsfrei ab | Nach Absprache |
Zimmer | 9 |
Schlafzimmer | 4 |
Badezimmer | 4 |
Anzahl Garage/Stellplatz | 1 |
Kosten
Kaufpreis |
785.000 € |
---|---|
Provision |
3.57 % inkl. gesetzl. MwSt. |
Finanzierungsrechner:
Kaufpreis:
600.000 €
Eigenkapital:
600.000 €
Monatliche Rate
0 €
Effektiver Jahreszins
0 %
Sollzinsbindung
10 Jahre
Bausubstanz & Energieausweis
Baujahr | 1960 |
---|---|
Letzte Sanierung | 2010 |
Heizungsart | Zentralheizung |
Wesentliche Energieträger | Gas |
Energieausweis | liegt vor |
Energieausweistyp | Bedarfsausweis |
Energieverbrauchskennwert | 153,6 kWh/(m²*a) |
Energieeffizienzklasse | E |
153,6
kWh/(m²*a)
Energieeffizienzklasse E
- A+
- A
- B
- C
- D
- E
- F
- G
- H
- 0
- 25
- 50
- 75
- 100
- 125
- 150
- 175
- 200
- 225
- >250
Beschreibung des Objekts
Ausstattung
Blick ins Grüne Dielenboden Fliesen Teppich Teilunterkellert
Lage
Igstadt, ein idyllischer Stadtteil im Osten Wiesbadens, besticht durch seinen ausgeprägten Gemeinschaftssinn und seine lange Geschichte. Mit rund 2.500 Einwohnern herrscht hier eine familiäre und angenehme Wohnatmosphäre, die den Ort besonders lebenswert macht. Die grüne Umgebung lädt zu vielfältigen Freizeitaktivitäten ein – ob bei Spaziergängen im nahegelegenen Wald oder Wanderungen in der hügeligen Landschaft. Vor Ort finden sich eine Grundschule, ein Kindergarten, eine Kirche sowie Einkaufsmöglichkeiten für den täglichen Bedarf. Dank guter Anbindung durch Buslinien, der nahegelegenen Autobahn und die Ländchesbahn, die Igstadt mit dem Wiesbadener Hauptbahnhof und Niedernhausen verbindet, ist der Stadtteil verkehrstechnisch hervorragend erschlossen. Die Innenstadt Wiesbadens ist mit dem Auto in etwa 15 Minuten erreichbar. Igstadt vereint naturnahes Wohnen, funktionierende Infrastruktur und ein starkes Gemeinschaftsgefühl – ideale Voraussetzungen für ein Zuhause für alle Generationen.
Sonstige Angaben
Der Makler-Vertrag mit uns und/oder unserem Beauftragten kommt durch die Bestätigung der Inanspruchnahme unserer Maklertätigkeit in Textform zustande, wie z.B. insbesondere die Unterschrift des Suchkundenvertrages und/oder des Objekt-Exposés. Die Höhe der Courtage richtet sich nach den ab dem 23.12.2020 in Kraft getretenen gesetzlichen Regelungen zur Teilung der Maklercourtage. Hiernach wird die Courtage regelmäßig für beide Parteien (Eigentümer und Käufer) jeweils in Höhe von 3 % zuzüglich Umsatzsteuer in jeweils geltender Höhe, derzeit also insgesamt 3,57 % des Kaufpreises einschließlich Umsatzsteuer bei notariellem Vertragsabschluss verdient und fällig. Die Höhe der Bruttocourtage unterliegt einer Anpassung bei Steuersatzänderung. Grunderwerbsteuer, Notar- und Gerichtskosten trägt der Käufer.
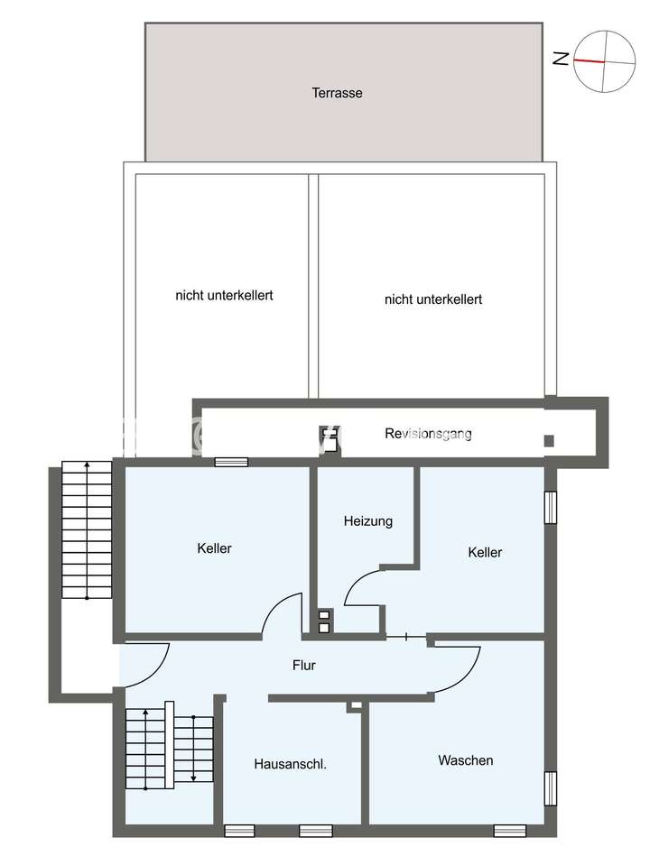
Grundriss
Keller
>

Erdgeschoss
>

Obergeschoss
>

Dachgeschoss
>

Adresse
65207 Wiesbaden
Interessante Orte
Preis- und Lageinformationen
Preistrend für Bestandsimmobilien in Igstadt